Soutěže
Výstupy
Projekty
English
Revoluční 30
O soutěži
Porota
Ocenění
Účastníci
Pro média
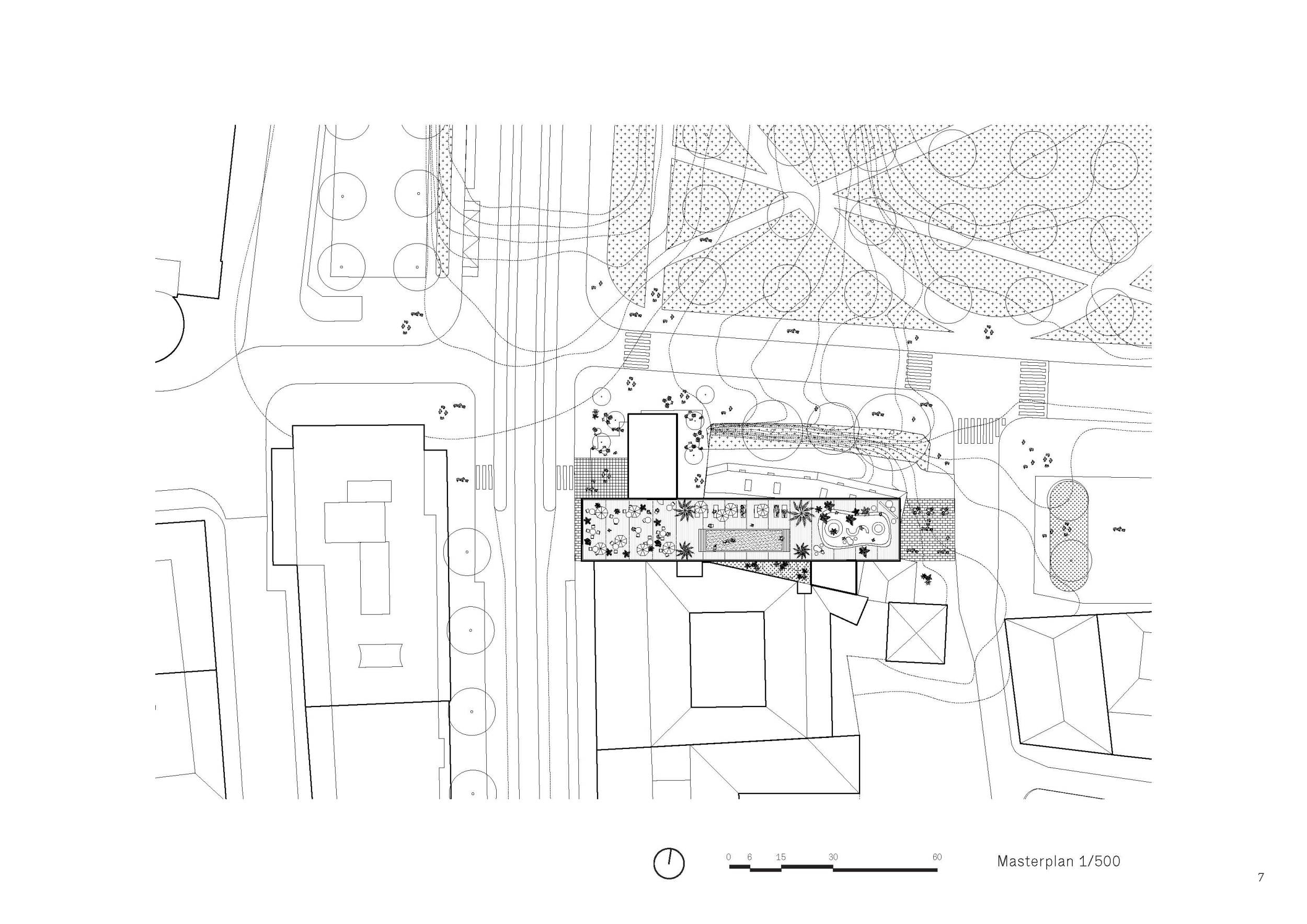
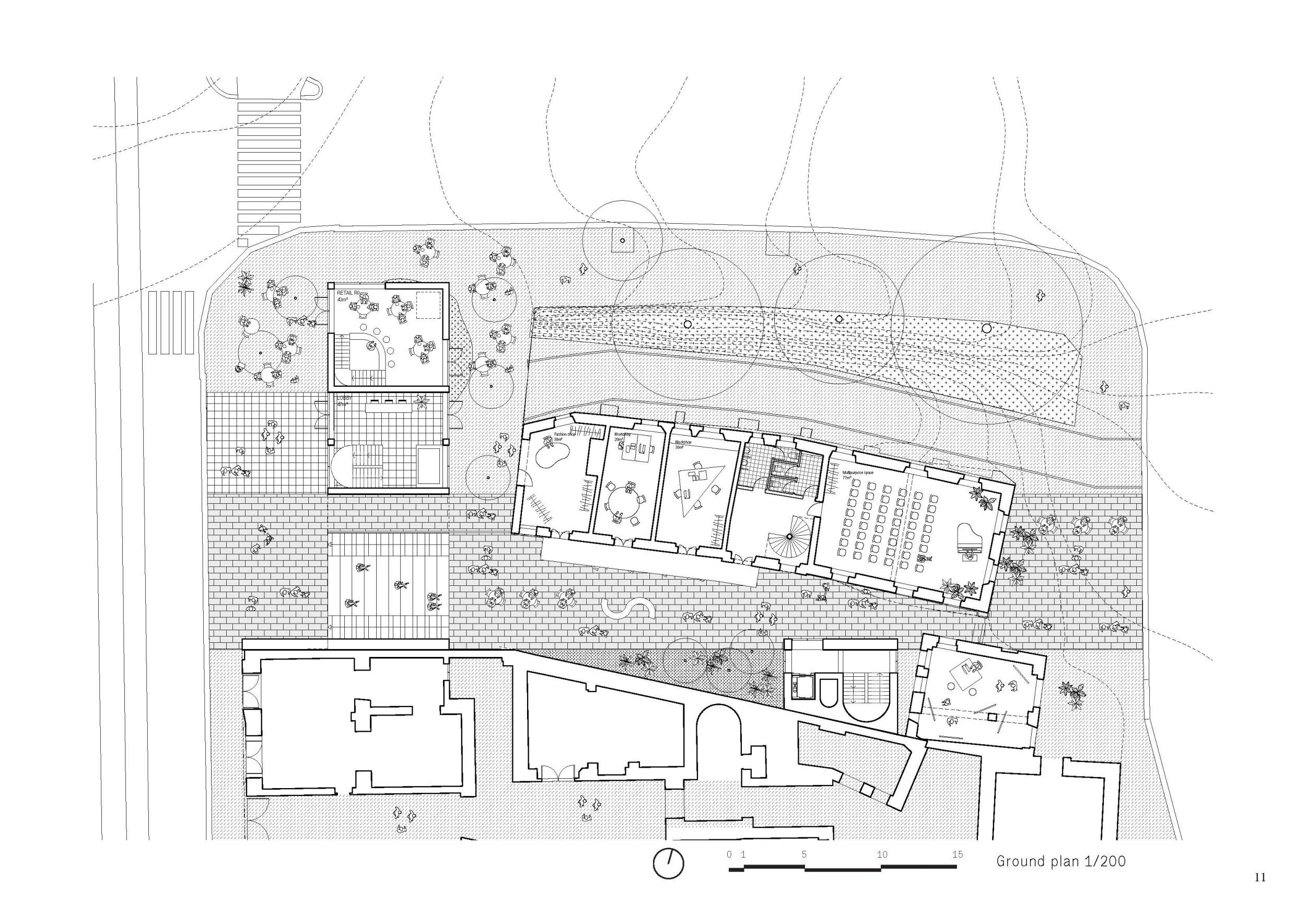
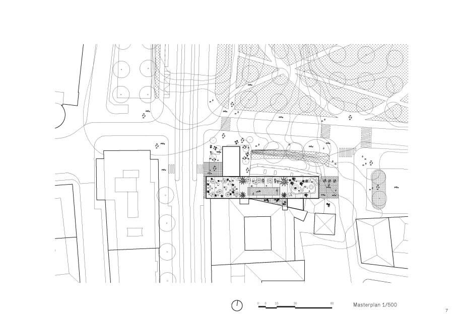
Návrh č. 4
1.místo
muoto + peer / Paříž a Brno, Francie a Česko
Zavřít
Předchozí
Další
Zoom
Download