Nástup do skalního města Adršpach

Návrh č. 1

AOSI / Ivo Stejskal, Vít Šarišský, Suzanne Pietroszová, Tomáš Babka / Brno
Návrh č. 2

Jana Kaštánková / Brno
Návrh č. 3

Kolektiv tamti_architekti a collcoll / Šimon Semerák, Ondřej Machač, Michal Liska, Vavřinec Veselý; sociální a kulturní geografie: Jan Hurda, Romen Korzec, Pavel Loriš (SocGeoStudio); krajinářské řešení: Karolina Jandáčková; dopravní řešení: Květoslav Syrový / Praha
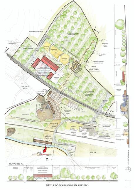
Návrh č. 4

DMNK / Petr Šikola, Hana Klapalová, Martina Šikolová, Jan Černoch, Josef Černý, Jiří Mezera, Ondřej Socha / Praha
Návrh č. 5

1.cena

M. Šrámek A.A. - architektonická kancelář / Michal Šrámek, Josef Krejčí, Ondřej Toman, Marie Blahová; Steiner a Malíková krajinářští architekti; statika: Ladislav Dvořák; doprava: Miroslav Vondřich; spolupráce: Šimon Vágner / Praha
Návrh č. 6

Jakub Kopec, Jiří Vítek, Vladimír Sitta, Michal Mačuda / Praha
Návrh č. 7

N/A / Benjamín Brádňanský, Vít Halada, Dávid Nosko, spolupráce: Kristína Betušová / Bratislava, Slovensko
Návrh č. 8

PLURAL a Ivana Čobejová / krajinářská architektura: LABAK / Bratislava, Slovensko
Návrh č. 9

ohboi a VEN.KU architekti / Jan Kubát, Julie Horáčková, Magdalena Benešová, Ondřej Valigura, Martin Jireš, Linda Kaliská / Brno a Praha
Návrh č. 10

M2AU / Filip Musálek, Linda Obršálová, David Helešic, Silvia Pajerová, Barbora Honsová, Marie Poláková / Brno
Návrh č. 11

Mókembé / Márton Kőműves, Áron Baki, Máté Gadolla, Ákos Takács, Anna Flóra Kiss, Domonkos Baki, Gréta Kátai, András Bátor Kondor / Budapešť, Maďarsko
Návrh č. 12

Rosema Architects a Offform / Tarique Ali, Thomas Rosema / Rotterdam a Delft, Nizozemsko
Návrh č. 13

JI XIANG STUDIO / Hong Kong, Čína
Návrh č. 14

Field Office a Simon Ronan Landscape Architecture a Aecom / Belfast, Londýn a Cork, Velká Británie a Irsko
Návrh č. 15

RV atelier / Mikuláš Ott, Radovan Vašíček, Jiří Příhoda / Valašské Meziříčí
Návrh č. 16

5.cena

Sulser Architektur / Erik Fichter a Khoa Vu (Studio Khoa Vu) / Curych, Švýcarsko
Návrh č. 17

ra15 / Radek Lampa (hlavní mentor), Renata Bartková (vedoucí projektu, hlavní krajinář), Max Petricov (hlavní architekt), Anastasia Lazova (architekt), Lucie Fojtíková (krajinářský architekt, design tiskovin), Tomáš Kroužil (supervize, mentoring) / Praha
Návrh č. 18

4.cena

Atelier Za Mák a Jih architekti / Michaela Zudová, Matěj Šebek, Anastázie Zemanová, Christina Thompson Guerrero, Matěj Bělohlávek; spolupráce: Filip Hauser, Tomáš Oubrecht / Číměř a Deštná
Návrh č. 19

2.cena

Lucký architects / Bratislava, Slovensko
Návrh č. 20

Ela Vrlová, Klára Mudráková / Tečovice
Návrh č. 21

kcarch / Václav Čermák, Václav Kolínský, Alexandra Zedníková / Praha
Návrh č. 22

3.cena

PROLOG a Landscape Practice / PROLOG: Mirabela Jurczenko, Bartosz Kowal, Marek Martynowicz, Wojciech Mazan, Bartłomiej Poteralski, Apolonia Slesarow, Radosława Suchowiecka, Agata Werochowska; Landscape Practice: Paulina Kalska, Emilia Piłat, Marta Przygoda, Lucyna Rydel, Jadwiga Ryczek, Marta Tomasiak; lokální architekt: Jakub Kopecký; dopravní inženýr: Adam Beneš / Vratislav a Varšava, Polsko