4.cena
PSAU - Privileggio-Secchi Architettura e Urbanistica / Nicolò Privileggio, Marialessandra Secchi, Tommaso Mazzega, Francesco Patetta / Milán, Itálie4.cena
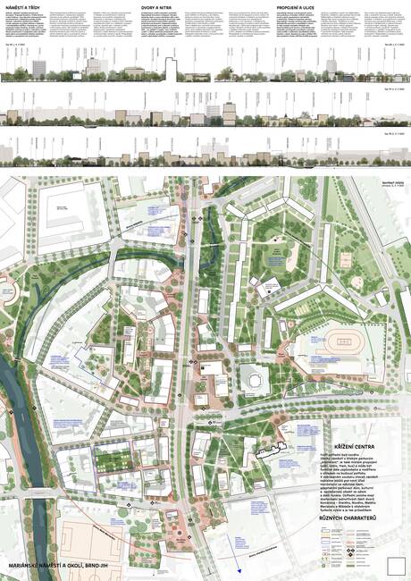
PSAU - Privileggio-Secchi Architettura e Urbanistica / Nicolò Privileggio, Marialessandra Secchi, Tommaso Mazzega, Francesco Patetta / Milán, Itálie3.cena
West 8 urban design & landscape architecture / Adriaan Geuze, Martin Biewenga, Penne Hangelbroek, Jakub Lukeš / Rotterdam, Nizozemsko5.cena
Michal Palašcak, Luděk Šimoník, Jaroslav Sedlák / Anna Kabelácová, Tereza Novotná, Kryštof Foltýn / Brno1.cena
gogolák + grasse / Ivan Gogolák, Lukáš Grasse; spolupráce: Milan Kubeš, Veronika Vávrová (architektonické a urbanistické řešení, prinicipy udržitelnosti, financování a etapizace), Matúš Berák, Karolína Řízek Čechová, Štěpán Matějka, Alexandra Nichtová / Praha2.cena
ofschem architekti / Luboš Františák, Matěj Ondruch, Viktor Schwab; spolupráce: Johana Kyselová, Lucie Roubalová, Zdeněk Navrátil / Brno