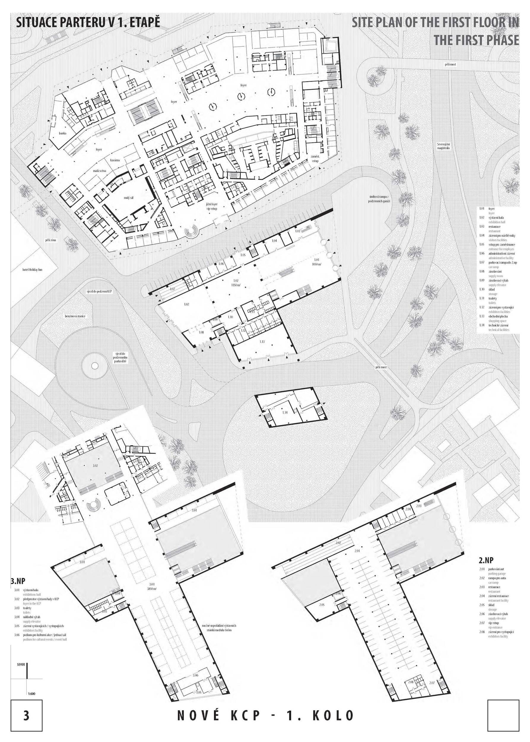
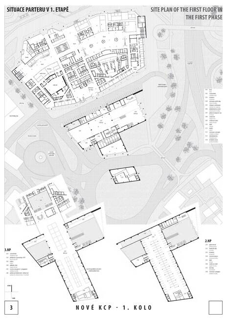
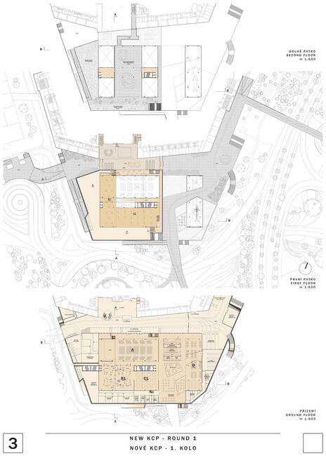
Nové KCP

Návrh č. 1

Puzzlebox / Vladimír Sekera, Monika Stábová, Margaréta Szarková, Martin Šešo, Kristína Hochsteigerová / Bratislava, Slovensko
Návrh č. 2

Vít Kándl, Luděk Přenosil, Pavel Štěpán / Spolupráce: Jan Špilar, Milan Veltiš / Praha
Návrh č. 3

Finalista

Office of Adrian Phiffer Adrian Phiffer / Spolupráce: Dimitrios Karopoulos, Liusaidh Macdonald, Saarinen Balagengatharadilak / Toronto, Kanada
Návrh č. 4

Nicolas Lombardi Architecture / Nicolas Lombardi, Cristina Ros Ballester / Paříž, Francie
Návrh č. 5

Donis / Fernando Donis / Rotterdam, Nizozemí
Návrh č. 6

Masterskaya arkhitektora Alikova / Oleh Alikov, Natalia Sycheva, Alexandr Stromov, Ruslan Alikov / Vladikavkaz, Rusko
Návrh č. 7

RED-architectes / Albin Rousseau, Gabriel de Boisriou / Paříž, Francie
Návrh č. 8

CK-Architecture / Christoph Kapeller / Los Angeles, CA, USA
Návrh č. 9

Vlastimil P. Poch / Spolupráce: Jay Nagasamy, Sharbari Sarkar, Courtney McCunney, James C. Akers, Marie Fialová, Jitka Matulová, Petr Brandejský, Grazia Mieren, Jose Rivera, Scott Steward, Alyssa Kurien / Bethesda, MD, USA
Návrh č. 10

ATELIER RENO / Jaroslav Malina, Jan Lankaš, Petr Čermák / Praha
Návrh č. 11

David Kraus, Viktor Kákoš, Michaela Kubinová, Alina Fornaleva, Pavel Nikl, Štěpán Janů / Praha
Návrh č. 12

Krill — Office for Resilient Cities and Architecture / Rotterdam, Nizozemí
Návrh č. 13

Isozaki, Aoki & Associates / Hiroshi Aoki, Ko Oono, Masato Hori, Toru Uno, Motoyoshi Sano, Uhn Choi, Sayantan Chakraborty, Ching Ming Cheung, Nishchay Pidiha, Rami Megalaa, spolupráce: Hiroki Kume / Tokyo, Nihon-koku
Návrh č. 14

Aleksandar Stolić / Bolzano, Italie
Návrh č. 15

DL studio / Tomáš Hrubý, Richard Pozdníček / Praha
Návrh č. 16

  1. cena
OCA / Bernardo García, Marc Subirana, Biel Susanna, Joaquim Sellas, Hernan Lleida / Barcelona, Španělsko
Návrh č. 17

Jan Erhard, Hermes Killer / Zürich, Švýcarsko
Návrh č. 18

Duerig / Jean-Pierre Dürig, Giulia Augugliaro, Gian Paolo Ermolli, Stefan Griesmeier / Zürich, Švýcarsko
Návrh č. 19

GSMM architetti / Giorgio Santagostino, Mónica Margarido, spolupráce: Francesco Balsarini, Tommaso Seveso, Pietro Grignani / Milán, Itálie
Návrh č. 20

Marek Janota / Spolupráce: Jakub Marek / Praha
Návrh č. 21

Fernando Menis / Santa Cruz de Tenerife, Španělsko
Návrh č. 22

AKJančina / Juraj Jančina, Jozef Bátor, The Anh Dang, Jozef Kijonka / Bratislava Slovensko
Návrh č. 23

Nele Architecture and Planning / Vinay T. S., Manu S. Kashyap, Bhargav V. / Bengaluru, Bhārat Gan. arājya
Návrh č. 24

SANE architecture / Traian Bompa, Cristina Chelarescu / Paříž, Francie
Návrh č. 25

ADNS Production / Martin Němec, Petr Dvořák, Lukáš Hes, Vít Kašpárek, Veronika Štojdlová, Alexandra Pinaeva, Tomáš Hanák, David Zelenka / Praha
Návrh č. 26

Alleswirdgut Architektur / Andreas Marth, Christian Waldner, Friedrich Passler, Herwig Spiegl, spolupráce: Ondřej Stehlík, Teresa Ricardo, Michal Stehlík, Klára Kuklínková / Vídeň / Mnichov, Rakousko / Německo
Návrh č. 27

Elena Senilova, Maxim Ivanov / Spolupráce: Natalia Goloviznina, Anna Evseeva, Dmitry Stryukov, Ekaterina Kuchatova, Gleb Kudinov / Izhevsk, Rusko
Návrh č. 28

Team22 Architects / Vídeň, Rakousko
Návrh č. 29

Raumtakt Architekten / Dario Bundi / Zürich, Švýcarsko
Návrh č. 30

Husam Akoud / Silver Spring, MD, USA
Návrh č. 31

wmar’studio / Wafa Lakelak, Meriam Fendi / Paříž, Francie
Návrh č. 32

  1. cena
Francisco Jorquera / Palma de Mallorca, Španělsko
Návrh č. 33

Rena Sakellaridou / Spolupráce: cooperation: Morpho Papanikolaou, Nikos Apergis, Aris Georgiadis, Niovi Tsompikou, Anastasia Verteouri, Giorgos Papanikolaou, Stefani Georgiou, Foteini Nevrokopli, Adamantia Karavasili, Iokasti Thivaiou, Maria-Nefeli Pantou, Alex Van Belleghem, Kostas Polychronopoulos, John Papagrigorakis / Atény, Řecko
Návrh č. 34

Antoine Kersse, Vincent Menuel, Maxime Pauzon / Paříž, Francie
Návrh č. 35

B1 DESIGN STUDIO / Svetoslav Batchev, Boitcho Boitchev, Veselin Serkedzhiev, spolupráce : Georgi Trenchev, Aleksandra Hranov, Raya Partenova
Návrh č. 36

Apsis / Claude Boullevraye de Passilé, Guillaume Chouinard-Décarie, Spolupráce: Franz Knoll, Natalie Boulet, Tateo Nakajima, Dider Roux, David Rezek / Montréal, Kanada
Návrh č. 37

Zvi Hecker Architect / Zvi Hecker, Spolupráce: Daria Kurowska, Katarzyna Wolinska, Marcin Roznowski, Paolo Fontana, Oliver Scheffler / Berlín, Německo
Návrh č. 38

Josep Miàs - Miàs arquitectes / Barcelona, Španělsko
Návrh č. 39

Tiago Freitas / Porto, Portugalsko
Návrh č. 40

Finalista

FAR frohn & rojas / Marc Frohn, Spolupráce: Treibhaus Landschaftsarchitektur Berlin / Berlín, Německo
Návrh č. 41

TAKENAKA Corporation / Masahiro Morita, Kwang-joon Bae, Ryou Sano, Pennisi Fiammetta / Ōsaka-shi, Nihon-koku, Japonsko
Návrh č. 42

Edgar Eduardo Ruiz Patiño / spolupráce: Diego Fernando Ruiz Patiño, Efrain Martinez Ramirez, Luis Fernando Rodrigez Quintero / Cartago, Kolumbie
Návrh č. 43

Kohki Hiranuma Architect & Associates / Ōsaka-shi, Nihon-koku, Japonsko
Návrh č. 44

ELA: Edu Lopez Architects Eduardo Lopez Morales / spolupráce: Fernando Lopez Arjona, Josefa Maria Morales / Madrid, Španělsko
Návrh č. 45

eka architects / Lubor Gavalec / Criccieth, Velká Británie
Návrh č. 46

KAVA / Jonáš Krýzl, Jan Novotný, Jakub Koňata, Tomáš Novotný, Jan Krupička / Praha
Návrh č. 47

RadaArchitekti / Pavel Rada, Mirko Lev / Brno
Návrh č. 48

Finalista

Szymon Rozwałka, Rudolf Müller, Martin Křivánek / Spolupráce: Matej Halinár, Katarína Falathová, Luboš Zbranek / Brno
Návrh č. 49

PLURAL / Martin Jančok, Michal Janák, Spolupráce: Eva Štrocholcová, Ľubomíra Blašková, Monika Krčméryová / Bratislava, Slovensko
Návrh č. 50

Grido, architektura a design Peter Sticzay-Gromski + MS arch / Spolupráce: Jan Doubek / Černošice
Návrh č. 51

ov architekti / Jiří Opočenský, Štěpán Valouch, Vojtěch Kratochvíl, David Balajka, Anna Schneiderová, Romana Bedrunková, Klára Pohlová, Magdalena Havlová / Praha
Návrh č. 52

Akira Yamanaka Architect / Londýn, Velká Británie
Návrh č. 53

ATELIER CMJN / François Lepeytre, Gaël Brulé, Hector Hernandez Spolupráce: Marisa Benedetti, Maria Grazia Matarozzo, Pedro A. Pallas, Jana Sochorová, Aleš Marek, Martin Vojtek / Paříž, Francie
Návrh č. 54

NAUTILA Architekti / Petr Marušiak, Spolupráce: Jaromír Flegr, Magdalena Hort / Praha
Návrh č. 55

Finalista

TAKENAKA EUROPE / Václav Sobolík, Peter Mulík, Haruka Fuji, Lenka Marečková, Eliška Křížová, Peter Chládek, Tomáš Jelínek, Ivana Jedrzejková, Martin Šťastný Spolupráce: Katarína Greco, Jiří Petlach, Ivana Otevřelová, Martin Honc / Praha
Návrh č. 56

JEMS Architekci / Jerzy Szczepanik-Dzikowski, Paweł Majkusiak, Marcin Giemza, Tomasz Trzupek, Katarzyna Kuźmińska / Varšava, Polsko
Návrh č. 57

Mangado y Asociados Francisco J. Mangado Beloqui / Spolupráce: Rubén Labiano Novoa, Alberto Rodríguez Indave, Richard Kráľovič, Martina Forejtová, Martina Havlová, Radek Prokeš / Pamplona, Španělsko
Návrh č. 58

FaktJedovatýKobry / Jan Kubát, Norbert Obršál, David Helešic, Kateřina Miholová, Linda Boušková / Brno
Návrh č. 59

ATP architects engineers / Christoph Achammer, Paul Ohnmacht, Jose Cervantes, Stefan Kainzwaldner, Johanna Babel, Verena Santer + Realgrün Landschaftsarchitekten Wolf D. Auch, Lynn Hennies / Innsbruck, Rakousko
Návrh č. 60

se.g architekten / Christina Gresser, Philipp Eichstädt Spolupráce Michaela Ohrová, Alexander Heinrich, Martin Ďuriš, Jiří Kazda / Berlín, Německo
Návrh č. 61

Anne-Sereine Tremblay, Jan Kudlička / Den Haag, Nizozemí
Návrh č. 62

Hana Petrik, Martin Kropac / Spolupráce: Hana Hučíková, Tullio Polisi, Beatriz Garcia Lapaz, Karolina Hahn / Praha
Návrh č. 63

BREAK POINT / Tomáš Veselý, Martin Hajný, Klára Vorlová / Praha
Návrh č. 64

ABM architekti / Petr Bouřil, Pavel Suchý, Lukáš Lipert, Martin Burian, Tomáš Vlasák, Filip Fišer Spolupráce: Lukáš Mrázik, Barbora Blagoevová, Jan Sochor / Praha
Návrh č. 65

D-PLUS PROJEKTOVÁ A INŽENÝRSKÁ / Tomáš Štajnc, Kateřina Vetešníková, Jan Šmolík, Marek Blaha, Mikuláš Daník, Marek Doubravský, Anna Kocourová / Praha
Návrh č. 66

Jasný architekti / Eduard Sojka, Jakub Sládeček, Martin Josek / Praha
Návrh č. 67

Ting / Štěpán Toman, Tereza Cihlářová, Spolupráce: Ondřej Strejček / Praha
Návrh č. 68

Peter Stec, Ján Studený, Maroš Bátora, Marián Počúch / Spolupráce: Miro Búran, Lukáš Lečko, Gabriela Smetanová, Labak architekti, European transportation consulting / Bratislava, Slovensko
Návrh č. 69

CMC ARCHITECTS / David R. Chisholm, Vít Máslo, Václav Malina, Adriano Ferrer Spolupráce: Ivan Němec, Yulia Pozynich, Marta Kyiashko, Eduard Mosieienkov / Praha
Návrh č. 70

Lam Yuk Shui Francis, Tsang Aron Wai Chun, Ho Siu Ting Etain, Tsui Chun Shing, Ho Hung Lai Wesley / Londýn, Velká Británie Hong Kong, Čína
Návrh č. 71

Kunz und Mösch Architekten / Philipp Kunz, Renato Mösch Spolupráce: Melchior Füzesi / Basel, Švýcarsko
Návrh č. 72

Padrevecchi / Oscar Padrevecchi Spolupráce: Socorro Sanchez Janeiro, Sebastian Garcia Escudero, Juan Rebizzo, Rongxing He, Alberto Saiegh / Buenos Aires, Argentina
Návrh č. 73

Alfonso Díaz Prats / Tapachula, Mexiko
Návrh č. 74

Vihar Pchelarov / Saint Louis, MO, USA
Návrh č. 75

Stelmach i partnerzy / Bolesław Stelmach, Marek Zarzeczny, Rafał Szmigielski, Zbigniew Wypych, Piotr Gniewek / Lublin, Polsko
Návrh č. 76

DZ architectes / Dominique Zanghi