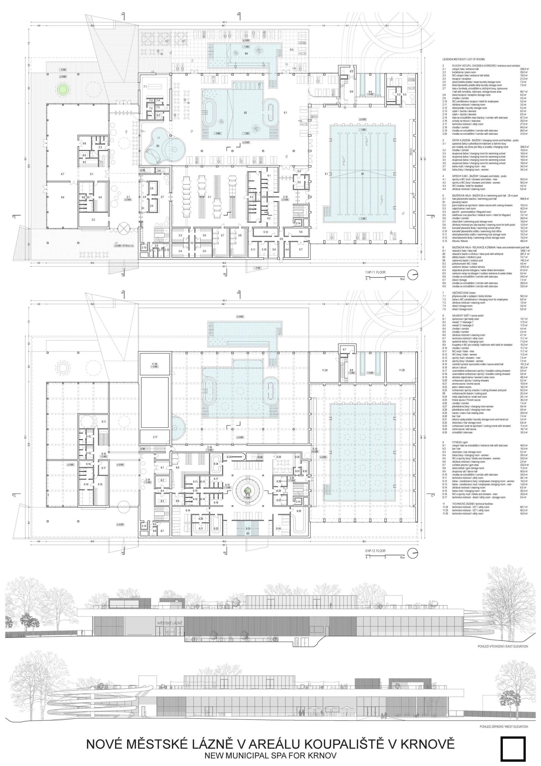
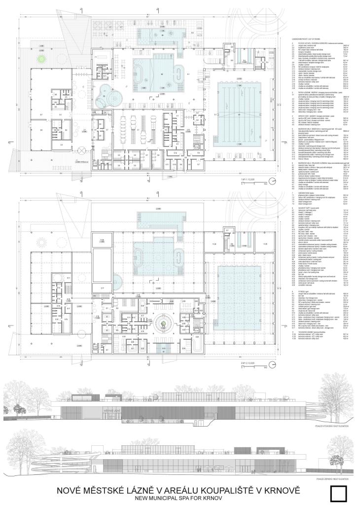
New Municipal Spa For Krnov

1st Prize
  • Author Aoc architekti
  • Team Ondřej Císler, Josef Choc, Filip Rašek, Natálie Kristýnková, Jonáš Mikšovský, Barbora Lopraisová, Emily Hillová, Mikoláš Vavřín (landscape), Klára Kvízová, Matyáš Bartoň (graphic design)
  • Prague
Annotation

The landscape, urban and architectural concept of the city spa in the park has been optimized primarily in terms of internal operation - a major change for the better is the barrier-free solution for the entrance to the building, changing rooms and swimming pool. Another qualitative shift is the connection of the complex to the roundabout and the increase in parking capacity. We have come up with a unique concept of a sauna world with a high degree of intimacy and an immersive, calming atmosphere, enriched by views of the meditation gardens.

Jury Evaluation

The design considers multiple layers in both landscape scale and detail and is unique in its strong urban design concept. Landscaped in a unique way, the space of the "spa park" has a relaxed, natural, pleasant feel. It leaves maximum open space for a common park and unifies the swimming pool and pool area, the connection between the two parts of the site is synergistic, opening to the south along the entire length of the site. The dialogue with the river Opavice is also positive. Here, it would not be necessary to stick to a single bank solution. The location of the new building in the northern part has created a green pocket, which is the biggest benefit of the proposal. The house is operationally clear and legible. The jury appreciates the location of the pool halls to the park and the maximum visitor contact within the site. The compactness and conciseness of the design also work with the subtle curvature of the plan, the light and the structure of the house. The expression of the house, on the other hand, is rather schematic and this, together with the solution to the western corner, weakens the overall concept. A sense of spa-like intimacy may be lacking. Slight mistrust is raised by the timber trees on the roof structures (their size in relation to the strength of the plant substrate).

Previous Next
2nd Prize
  • Author WMA architekti
  • Team Martin Materna, Vendula Bažová, Adam Weczerek, Zdeněk Strnadel (landscape), Jan Homola (construction), Natálie Balková, Adéla Kudlová, Markéta Káňová, Renata Valentová, Janoušek & Havlíček (visualization)
  • Opava
Annotation

The urban plan is defined by the perimeter lines, the compositional perpendicular to the river and the longitudinal communication axis. The concept is based on the mass of the block, which encloses the entire site from the east, inside which a central meadow is created, into which the side grassy terraces slope. The house stands on a single raised platform roofed by a massive slab. The site is at the interface between the city and the countryside, the concept connects both planes. The urban layer slips into the building in the form of an operational structure, while the landscape layer overlays the building with a roof garden.

Jury Evaluation

The design is distinguished by a clear concept of a large roof and the swimming pool and pool area are connected into one whole and oriented towards each other. The disadvantage is the large volume of the house occupying the green area of the park and the common meadow is thus significantly reduced. Despite this, the design manages to landscape harmoniously in its wider relationships and detail. It is a pleasingly considered proposal. The permeable parterre with sensitive incorporation of existing trees is a positive feature. The consideration of the design of the River Opavice is very positive, the revitalisation is fresh, welcoming, inspiring. The house-roof could work very well if it allowed the greenery and landscape from the surrounding area to penetrate as close as possible to its roof. The solution of the roof as a separate landscape with a sauna world promises a cleverly designed and inviting spa-like intimacy, and should also allow more of the park to be left open. Operationally, the house has pools facing north and west. The large pool to the north is supported by views into the future orchard but is not significantly connected to the site. It also lacks a direct link between the entrance hall and the swimming pool. Conversely, the fitness centre benefits somewhat questionably from its convenient position at the entrance. The jury would have appreciated a more varied atmosphere in the interior of the different facilities.

Previous Next
3rd Prize
  • Author Studio Perspektiv
  • Team Martin Stára, Ján Antal, Sebastian Sticzay, Tomáš Pavlakovič, Silvia Snopková
  • Prague
Annotation

The city of Krnov represents two faces - the preserved historical architecture and the newly built buildings in the public space. One of these is to become the site of the new town spa. The inhabitants of Krnov and surrounding towns, including Polish ones, have been waiting for a similar building. The new sports and relaxation landmark of the town supports the development of the area and becomes an attractive tourist destination for all groups of inhabitants. We propose an urban spa expanded with a sports and relaxation area connected to the sports infrastructure of the town along Petrovicka Street. The newly created area responds to the completion of the summer swimming pool by Projektil studio and at the same time reflects the surrounding landscape adjacent to the Opavice River. In the design, we emphasized maximum comfort for visitors and a representative form of the building that influences the local community.

Jury Evaluation

The jury considers the densification of the entire designed area to be very drastic in relation to the summer swimming pool. It is the park area of the swimming pool that is considered to be dominant and the proposal completely removes it. The connection to the Opavice river does not offer the potential of the site. The landscape design is based on the overall architectural concept, completing it with a spatially refined form of mass and detailed scale. From a landscape point of view, it is a comprehensive design that addresses the individual parts of the area in a free and pleasant way. On the other hand, the actual design limits the generous opportunity for the area to be freed up and made more permeable. The composition of the masses makes it possible to create quite different spaces and environments that the visitor can perceive as very attractive. The overall character of the building gives a rational impression. This is also supported by the material solution, which relates to the industrial identity of the city. In contrast to the rational outer shell, the interior offers warm natural materials suitable for a spa environment. However, the overall appearance of the building is robust and very insulated. The project works with generous spaces, but these are not suitable for the operation of the building itself on the scale of a border town. In the operational design, the jury perceived the location of the changing rooms on a different floor from the main attractions of the spa to be a major problem.

Previous Next
Finalist
  • Author MEZI and DOXA
  • Team Ivo Stejskal, Maroš Mitro, Tomáš Boroš, Ondrej Jurčo, Jan Rolinc, Pavel Bakajsa, Jasmín Al-Husseinova
  • Brno and Košice
Annotation

We enter a large plot of land with clearly organized and significant greenery with a coherent and compact urbanism. The circular form supports the idea of a centre, a hub around which the water areas with their utilitarian facilities are composed. The large circle invites people to enter and immerse themselves. In addition to belonging and democracy, the circular form thematizes the unchanging geometry of the propagation of waves. The layout of the building surprises with its orthogonal interior, in which water surfaces and other functions are organized around a central atrium. We also work with an inventory of skylights that bring diverse architectural qualities to the space. Although our design feels introverted and maintains its own integrity, we also make a statement to the surrounding designed area. An example of this is the promenade with an avenue, starting in the parking area and flowing into the baths. We cultivate the extensive parking area with sequences of trees. We add to the absent greenery, creating baths immersed in the landscape.

Jury Evaluation

The simple shape, the interlocking grid and the use of penetration is an excellent approach that led the jury to select the design for the second phase. Formally, the strong concept of the circular spa building creates a clearly legible structure at the centre of the site. It is a house that has the ambition to complement the existing situation with a new partner. However, the lapidary form ultimately proved to be a constraint, both for the internal layout and its surroundings. In fact, the architecturally interesting solution with its varied interior scenery did not stand up to the level of the urban approach even within the floor plan. There are many unnecessary corridors and unused spaces. The landscape design accepts the recommendations of the first phase. The jury is positive about the effort to retain mature trees and incorporate them into the design, the simple form of planting and the gravel lawn in the car park. However, the graphic representation is schematic and does not convey mass. Overall, this is an average landscape design. The jury's biggest criticism is that the design of the new spa blocks the most valuable area of the site and stops a substantial part of it.

Previous Next
Finalist
  • Author monom works
  • Team Michal Bernart, Igor Hobza, Jakub Vašek, Tomáš Kočař, Marie Záhorová, Matěj Ševela, Michal Zapletal, Christina Vergopoulou Efstathiou
  • Prague
Annotation

Greenery. Mature trees. Basic elements of life determining the character and spatial arrangement of a place. The urban spa building will become an integral part of the natural environment. Synergy between the work of man and nature. Sensitive relationship with mature trees. The relationship between architecture - landscape, architecture - human body, are the basic design principles. Nature grows through utilitarian volumes, which in their arrangement offer diverse spaces, half natural half man-made, from intimate atriums, panoramic treetop views to public urban space.

Jury Evaluation

An architecturally clean to minimalist design that encloses itself. It is a very compact solution that offers all the necessary functions. However, the design has more the character of a private spa than a public urban spa. The jury's main criticism is the orientation of the glass surfaces of the main pool towards the car park and the expressway. From the visualisations, the proposal looks convincing, but the jury expressed concern about the demanding and costly maintenance of the outdoor areas. Among the other proposals, the building probably gives the most massive/larger impression. Landscaping-wise, the proposal appears balanced, pleasant, harmonious at first glance. Specific decisions raise questions, e.g. edging the sauna garden with an understorey of shrubs or Mediterranean/Mediterranean planting.

Previous Next