General Financial Directorate - Brno Dislocation: Příkop no. 25

1st Prize
  • Author Kuba & Pilař architekti
  • Country Česko
  • City Brno
Annotation

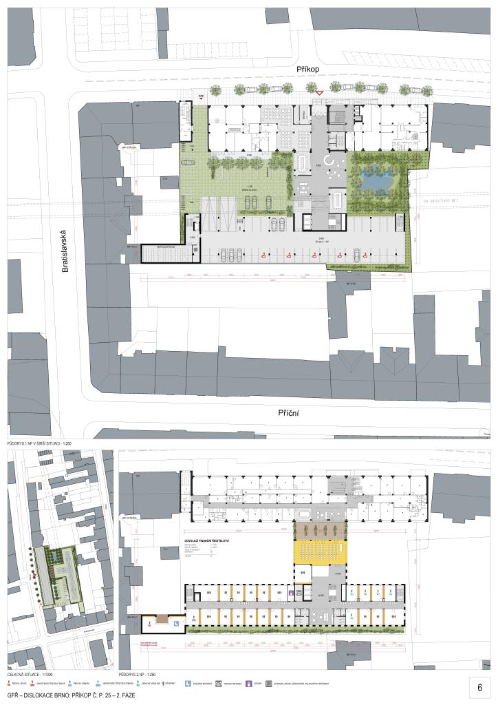
The extension has a common base at the level of the second above-ground story on the entire plot - this defines the block of new development. Above this horizontal mass, there are two 5 and 7 story parts. Both buildings are architecturally designed analogously - along the perimeter there are horizontal concrete ceiling slabs, between which are horizontal strips of windows with a regular grid of wooden windows and vertical guides of shade blinds. The common base is a fixed base with a horizontal window, the roof of the base is a rest area of ​​the tax office staff with terraces and greenery. Part of the base is an outdoor atrium with greenery and garden furniture. Below, there are floors with parking spaces designed as an outdoor space, the facade of the parking floors is designed as a transparent steel network with climbing greenery. We designed a new facade for the original building that respects the current proportions and rhythm of the windows. The original monolithic mass was divided into two parts by recessed vertical strip in the place of stairs and elevators. The facade is lined with a durable and maintenance-free ceramic band, the windows are wooden.

Jury Evaluation

The jury found this proposal to be of the best quality in terms of operational and functional aspects, but also in terms of professional processing.

Previous Next
2nd Prize
  • Author M2AU
  • Country Česko
  • City Brno
Annotation

GFŘ Příkop is a building concept based on the standards of contemporary office buildings in connection with the modern state administration. The built-in courtyard naturally thickens the city and at the same time draws on all the advantages of being centrally located: high-quality transport infrastructure, short walking distance and a variety of nearby services. Thanks to the solitary location of the new building in the courtyard, the house provides a quality working environment on all floors, thus meeting the strict hygienic requirements for lighting office space. The current house of the Tax Office forms a dignified entrance area of ​​both buildings through a common reception. The entrance areas are easy to clean and clear. A new quality and physical link of both objects is the connecting tract, which is created by multifunctional space. The tract can be used as a larger meeting room for 120 people with separate entrance to the new building, or the space can become an expanded lobby with a connection to the reception and dining room on the 1st floor of the existing building. The conference room is directly followed by courtyard greenery, which creates a valuable relaxation area for both visitors and employees of the General Financial Directorate. Thanks to the reinforced concrete structure, the building offers considerable flexibility. The interior partitions of the office rooms are non-load-bearing, easily removable if necessary. The mass was prototyped within the scale of the whole block and wider surroundings. The result is a seven-story building in the open building concept. Emphasis was also placed on a quality office environment both within individual rooms and in the shared space of the central wing.

Jury Evaluation

An ambitious proposal that responded well to the jury's comments from the first stage.

Previous Next
3rd Prize
  • Author Radko Květ
    Radko Květ
  • Country Česko
  • City Brno
Annotation

Frankly, do you know someone who likes to visit a hospital, police or tax office ??? In the field of designing buildings for the aforementioned typological purposes, there has been a long-term effort to humanize them, to make them transparent and environmentally friendly. This follows the motto of the proposal: ELEMENTARY KINDNESS TO PEOPLE AND THE ENVIRONMENT. The “environment” encompasses not only aspects of the working environment of employees and customer-friendliness, but also wider environmental impact in the urban context. To accomplish this task, there are already technological means (although not yet systematized citywide and nationwide) that can help to some extent. So where else should it start than with government institutions? Within the given spatial and financial possibilities (the demands on the number of employees are considerable, the expected investment means are not so great on the other hand) we strive for a relatively balanced economic-environmentally advantageous solution.

Jury Evaluation

Formally well-designed design with a rather demanding facade, which would not really correspond to the idea expressed by visualizations. The fundamental interference with the existing building was perceived in a questionable way.

Previous Next
Finalist
  • Author RUDIŠ - RUDIŠ architekti
    Martin Rudiš
  • Country Česko
  • City Brno
Annotation

The subject of the proposal is the administrative building of the Financial Administration of the Czech Republic for 370 employees. Functional content is divided into two parts. The Appeal Directorate and the Ministry of Finance of the Czech Republic are located in the new building situated in the courtyard, the Department of Economic Administration and the Department of Special Activities is situated in the superstructure of the existing building in Příkop Street. The building land is the courtyard area of ​​the current Tax Office Brno I., which is part of a large city block. The architecture and overall expression of the building are intentionally minimalist austere, it expresses a rational construction system, modular solution of cladding and system solution of repeating layouts of office floors. The six-floor T-shaped mass built on the airbase is located at the eastern boundary of the building parcel in parallel with the main existing building of the Institute of Physics. The voluminous design and formal design clearly reflect the function of the object. The newly designed main entrance to the building from Příkop Street is connected to the entrance hall, which connects the existing and designed building operationally. The entrance hall with a gatehouse, reception desk, access to the dining area with increased capacity and meeting rooms creates a clear central entrance area with access to the communication core of the existing building and the new building. A total of 94 parking spaces situated on the courtyard and in the building meet the standard requirements for the number of parking spaces. Common areas of corridors and day rooms are characterized by easy orientation, individual floors are interconnected by openings. The layout of office floors into offices for one to three employees, a large meeting room for 120 seats and suitably situated meeting rooms, together with the technical equipment parameters, meet the spatial and surface standards of a modern office building.

Jury Evaluation

Previous Next
Finalist
  • Author Ateliér Velehradský
  • Country Česko
  • City Brno
Annotation

By consistently respecting the area requirements of individual offices, the volume of construction increased. We kept the concept chosen in the round I, but we changed the heights. Only one story (statics) is set on the existing building and the mass of the wing is raised to 14 above-ground floors. The change in the mass ratio required a different approach to the static concept, and we now include the restoration of the main communication vertical in the design. We modified the office areas according to the notice in the call to round II. We also verified that we meet the capacity requirement of 370 jobs beyond the existing capacity.

Jury Evaluation

Previous Next