Český Brod: Husovo náměstí & Náměstí Arnošta z Pardubic

Návrh č. 1

TŘI.ČTRNÁCT architekti / Ondrej Palenčar, Patricia Pecková, Hanka Pinďáková, Denis Orinčák; zahradní architekt: Tomáš Babka; dopravní inženýr: Rostislav Košťál / Brno
Návrh č. 2

Anna Laubová / František Laub / Jihlava
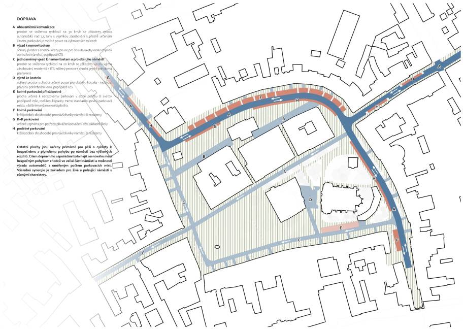
Návrh č. 3

Episode II / Paul van den Bergh, Julio Manuel Gil Farina / Rotterdam, Nizozemsko
Návrh č. 4

MARTÍNEZ MORERO RECABARREN ESTUDIO / Manuel Alberto Martinez Catalan, Carlos Nahuel Recabarren, Rocio Palacios / Barcelona, Španělsko
Návrh č. 5

BY architects / Markéta Zdebská, Marek Žáček, Tomáš Vojtíšek, Andreea Alexandra Bajan, Michal Šefránek, Jan Kubelka (konzultace dopravního řešení) / Praha
Návrh č. 6

1.cena

ATELIER 111 architekti / Zuzana Johanidesová, Barbora Weinzettlová, Jiří Weinzettl; spolupráce: Michaela Zudová (krajinářská architektka), Ondřej Zenkl (dopravní inženýr) / Praha
Návrh č. 7

MAAUS / Miroslava Zadražilová, Jakub Czapek, Karolina Wojtek, Barbora Čekalová, David Dubáň, Martin Všetečka (dopravní specialista) / Brno
Návrh č. 8

Jakub Vašek / Igor Hobza / Hlinsko
Návrh č. 9

finalista

Jan Pohludka / Marek Vávra, Petr Dušek / Sedliště
Návrh č. 10

Aleš Kubalík / Josef Kocián, Veronika Sávová / Plzeň
Návrh č. 11

Marialuisa Prestini / Marta Marcocci / Milano, Itálie
Návrh č. 12

2.cena

M2AU / Filip Musálek, David Helešic, Linda Obršálová, Eliška Horáčková, Marie Poláková, Michaela Kirnerová / Brno
Návrh č. 13

STUDIO BISTRO / Vojtěch Benedikt, Kristýna Drápalová, Šimon Jiráček, Rozálie Kašparová, Štěpán Špoula / Praha
Návrh č. 14

Jan Votoček / Eliška Nováková, Antonín Pokorný / Ústí nad Orlicí
Návrh č. 15

Ormigon / Alena Popelová, Jakub Popela / Praha
Návrh č. 16

DANU / Eszter Dávida, Bálint Kádár, Barbara Bozsik, András Mudra, Eszter Horváth, Katalin Papp, Tamás Farkas, Tamás Kertes / Budapešť, Maďarsko
Návrh č. 17

Dagmar Janů / Jana Janů / Karlovy Vary
Návrh č. 18

3.cena

gogolák + grasse / Ivan Gogolák, Lukáš Grasse, Martina Havlová, Radek Prokeš, Štěpán Matějka / Praha
Návrh č. 19

ofschem architekti / Luboš Františák, Matěj Ondruch, Viktor Schwab / Brno
Návrh č. 20

Přemysl Jurák / Jana Poupětová / Zlín
Návrh č. 21

MS architekti / Michal Šourek, Pavel Hřebecky, Linda Svobodová, Martin Jandera, Yana Tkachuk / Praha
Návrh č. 22

Ting Zhu / Toronto, Kanada
Návrh č. 23

drawING project / Jan Lipovčan, Karel Musil, Lenka Holasová, Jakub Pleiner, Klára Vrančičová, Jozef Pitte / Kolín
Návrh č. 24

Architektura srdcem / Martin Kožnar, Radka Kurčíková, Miroslav Kurčík, Jiří Sobol, Ema Soukupová, Kornélia Dousková, Kornélia Dousková, Sandra Chlebovská / Cizokraje
Návrh č. 25

finalista

archworks / Jiří Rákosník, Tereza Rákosníková, Ruby Pavoučková, Petra Peterková, Martin Valášek / Praha
Návrh č. 26

Építész Stúdió / Zsolt Felix, Gergely Kenez, Csenge Kitraly, Bori Vizi, Sandor Palfy / Budapešť, Maďarsko