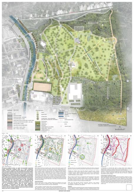
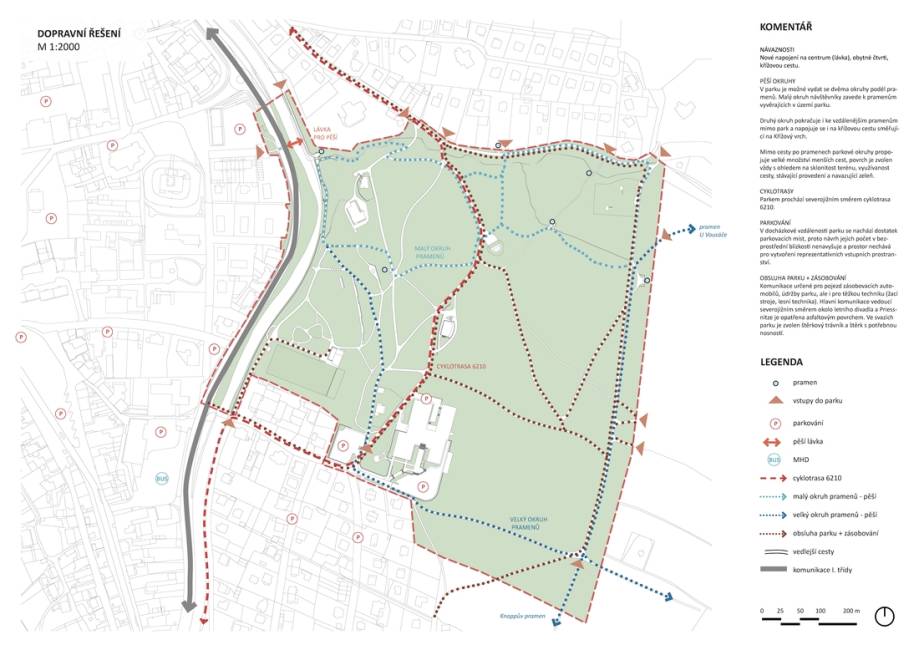
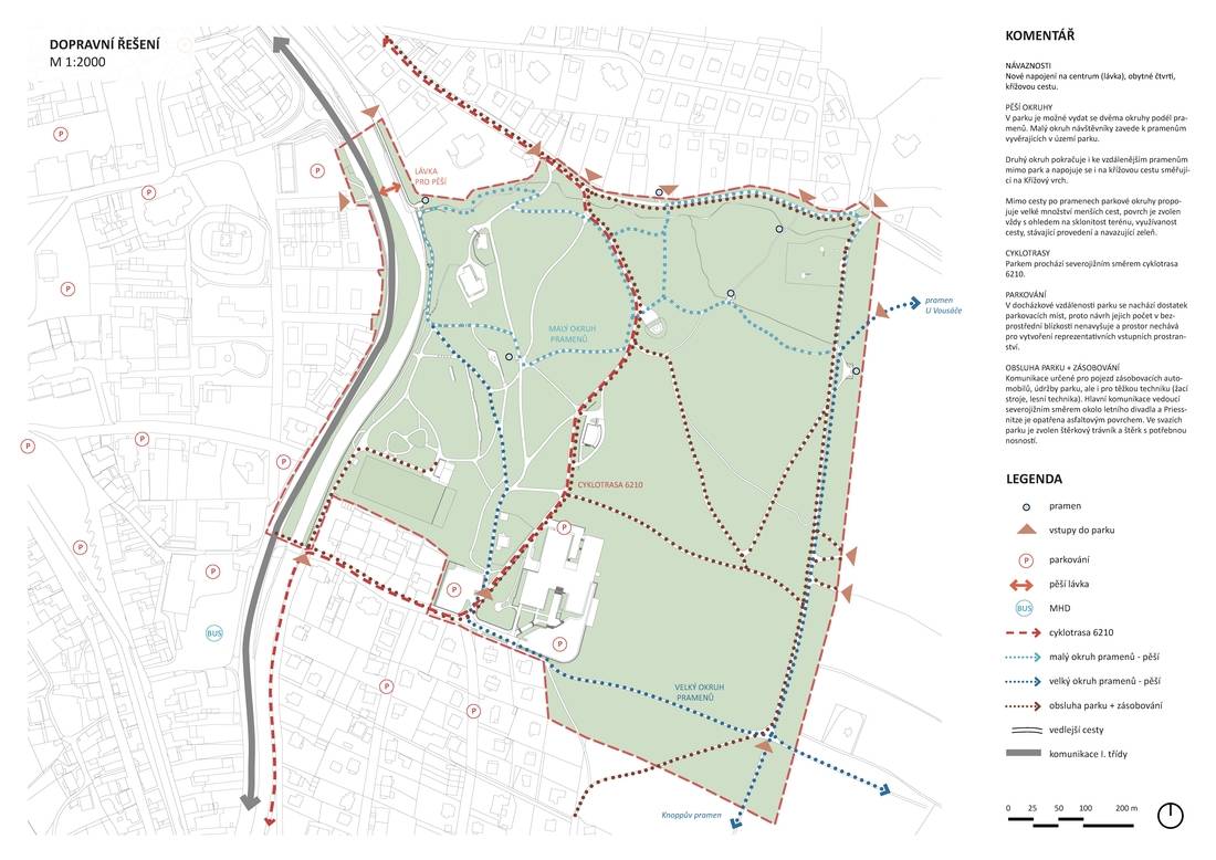
Smetanovy Sady Jeseník

Návrh č. 1

1.cena

Barbora Kubická, Júlia Bobríková / Barbora Kubická, Júlia Bobríková / Nové Město na Moravě a Brno
Návrh č. 2

Ela Vrlová / Ela Vrlová, Jiří Červený, Klára Končáková / Tečovice
Návrh č. 3

GuldanArchitects / Eugen Guldan, Alexandra Macholová, Adelina Belinska / Bratislava, Slovensko
Návrh č. 4

JUNG architekti / Adam Jung, Barbora Jung, Jana Zuntychová, Matyáš Černík / Brno
Návrh č. 5

finalista

Shromáždilová Fišer Radilová / Lukáš Fišer, Kristýna Shromáždilová, Lucie Radilová, Michaela Olejárová, Barbora Černá / Brno
Návrh č. 6

Studio reaktor / Jan Kačer, Kateřina Klapková, Lenka Dřevjaná, Veronika Kučerová, Michal Fousek, Gabriela Udrea / Praha
Návrh č. 7

ofschem architekti / Luboš Františák, Matěj Ondruch, Viktor Schwab, Lucie Roubalová, Zdeněk Navrátil, Tomáš Brokeš, Gabriela Svobodová / Brno
Návrh č. 8

2.cena

ADEA projekt / Aleš Vojtasík, Petra Vojtasíková, Metthew Paul Oravec / Ostrava
Návrh č. 9

finalista

LBNK architekti / Pavlína Řmotová, Vojtěch Rudorfer, Eva Dzurillová, Eliška Chrtková, Josef Matyska, Karel Schwarz / Praha
Návrh č. 10

finalista

Klára Concepcion / Klára Concepcion, Zuzana Grečnárová, Kateřina Vrbacká / Praha
Návrh č. 11

M&P architekti – krajinářská architektura / Markéta Veličková, Petr Veliček, Tomáš Popelínský, Daniela Růžičková / Velké Meziříčí
Návrh č. 12

kodet architekti / Tomáš Kodet, Martina Kodetová / Kutná Hora