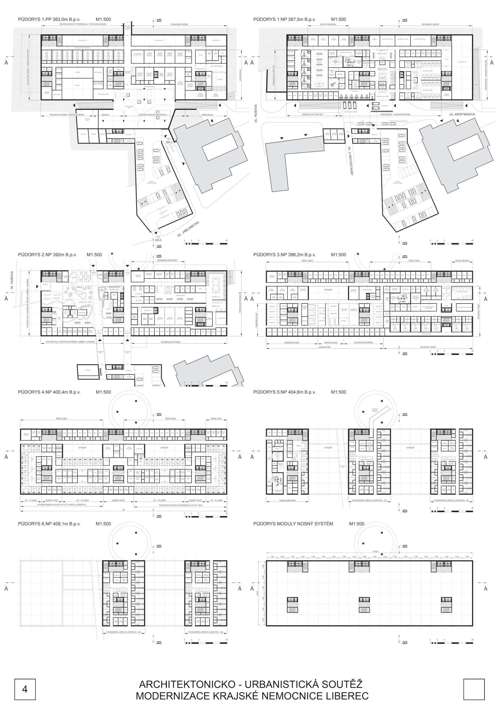
Modernizace krajské nemocnice Liberec

1. cena
  • Autor SIAL architekti a inženýři
  • Team Jiří Buček, Iva Matějovská, Filip Horatschke, Jan Duda, Libor Šenekel, Jiří Chmelík, Ondřej Košina, Josef Franc, Vít Šrámek
  • Liberec
Anotace

Vize rozvoje stávajícího areálu nemocnice počítá s koncentrací plošného rozvoje na lokalitu vymezenou ulicemi Kristiánova, Husova, Arbesova a Klášterní. Funkční plocha má dostatečný potenciál pokrytí nároků postupné transformace v moderní flexibilní nemocnici. Urbanistický koncept areálu jsme založili na typické liberecké charakteristice zástavby, kterou tvoří jednotlivé stavby obklopené zelení – toto rozhodnutí podporuje i výrazná morfologie terénu areálu nemocnice se severojižní orientací staveb po vrstevnici. Samozřejmostí konceptu je vzájemná provázanost staveb zabezpečující vnitřní areálovou dopravu. Předpokládáme postupnou rehabilitaci areálu, ve kterém kromě výstavby nových pavilonů počítáme i s rekonstrukcí vhodných stávajících pavilonů. Zvolená půdorysná osnova areálu i Centra urgentní medicíny spojuje ekonomii a flexibilitu funkčních celků. Předností modulu je i výhodnost pro podzemní parkování v dalších etapách.

Hodnocení poroty

Návrh je hodnocen pozitivně z technických, funkčních i provozních hledisek. Architektonicky je zřejmá jeho dominantnost, kterou však porota nevyhodnocuje problematicky, ale spíše jako nositele symboliky významu nemocnice. Porota vznesla několik připomínek k řešení dopravní obslužnosti a celkovým investičním nákladům. Zároveň však návrh shledává dostatečně flexibilní a snadno umožňující případné úpravy, což rovněž dokazuje kvalitu předloženého konceptu. Návrh efektivně a logicky využívá a uspořádává vnější i vnitřní prostory. Porota také shledala, že při jeho následném dopracování bude možné nalézt prostorové i materiálové úspory vedoucí k řešení vyhovujícímu finančním možnostem investora, aniž by byl ohrožen architektonický koncept návrhu. Také z pohledu výše provozních nákladů a nákladů životního cyklu je návrh hodnocen velmi pozitivně. Tento návrh porota shledala v rámci soutěže jako nejkvalitnější a doporučila jej tak k dopracování a realizaci.

Předchozí Další
2. cena
  • Autor ATELIER PENTA
  • Team Jaromír Homolka, Jiří Pecha, Jan Sedlák, Tomáš Bačík, Dušan Lédl
  • Jihlava
Anotace

Krajská nemocnice Liberec představuje město ve městě. I. etapa – Centrum urgentní medicíny (CUM) dotváří uliční frontu, prorůstá do Husovy ulice pasáží, ze které jsou hlavní vstupy do emergency a budoucí haly nemocnice. Objekt CUM v sobě zahrnuje celé spektrum prostor z pohledu hygienické čistoty. Z těchto důvodů jsou provozy seskupeny od spodních běžných prostor až po prostory čisté, jako jsou operační trakty a lůžka intenzivní péče. Samostatně jsou řešena lůžková oddělení na 5. a 6. nadzemním podlaží s možností výstupu na terasy zelených střech. Výstavba CUM jako úvodního objektu celé přestavby vyvolává i další potřeby nového řešení technických rozvodů, vnitřní dopravy. Pro tyto funkce jsou navrženy kolektory a podzemní chodby, které budou po etapách objekty postupně přepojovat. V závěrečné etapě dojde k uvolnění prostoru centrálního parku.

Hodnocení poroty

Architektonicko-urbanistický koncept návrhu pro porotu představuje dobré a čisté řešení; fungovat však bude až ve finální fázi. Dopravní obslužnost, zajištění provozuschopnosti nemocnice po dobu rekonstrukce, stejně jako ekonomickou přiměřenost, ať už z investičního nebo energetického a provozního hlediska, použitých konstrukcí i materiálů porota hodnotila veskrze kladně. Vnitřní dispoziční řešení je navrženo logicky s důrazem na bezbariérovost a nekřížení provozů. Obzvláště pozitivně je hodnoceno propojení pavilonu D s celkem nemocnice, ačkoli diskutabilní zůstává dostatečnost osvětlení laboratoří. Porota vyhodnotila návrh celkově jako jeden z nejkvalitnějších, jehož nedostatky se dají dopracováním napravit.

Předchozí Další
3. cena
  • Autor DOMY
  • Team Jan Topinka, Lukáš Haller, Michal Juha, Petr Uhlíř
  • Praha
Anotace

Jednotlivé etapy přestavby nemocnice tvoří nízkopodlažní monobloky s kompaktní podnoží, na které jsou příčně uložené lůžkové jednotky. Tyto monobloky jsou propojeny ve více úrovních do jednoho funkčního celku. Hranice bloků vytvářejí ulice, které navazují na historickou strukturu zástavby. Ty v severojižním směru se liší významem a oddělují dopravní funkce, koridory na ně kolmé jsou především spojovací a z hlediska veškerého provozu páteřní. Osa ulice U Novostavby je protažena celým areálem a mírně narušuje pravidelný rastr. Lůžkové jednotky ve druhém směru vymezují zahrady, které postupně z rostlého terénu v nejvyšším místě areálu přechází na střechy. Jednotlivé etapy jsou dimenzovány tak, aby postup výstavby v každém časovém bodě zachovával stávající provoz bez omezení a aby etapy bylo možné dělit nebo naopak slučovat. V cílovém stavu se areál nemocnice z kompaktního uspořádání rozpouští do rozvolněné vilové zástavby. Architektonicky kvalitní objekty a heliport budou zachovány.

Hodnocení poroty

Porota u tohoto návrhu hodnotí pozitivně zvolený urbanistický a architektonický koncept, stejně jako navržené provozní a funkční řešení, zachování provozuschopnosti nemocnice po dobu realizace první etapy a dopravní obslužnost. S ohledem na použité konstrukce i materiály je energetická náročnost návrhu přijatelná. Diskutabilní je v daném případě udržovatelnost fasády, ale stejně jako problémy z pohledu památkové péče se porotě jeví jako řešitelná. Dispoziční řešení je uvažováno logicky a unese dopracování a úpravy. Porota vyhodnotila návrh jako celkově jeden z nejkvalitnějších, jehož nedostatky, včetně nutnosti hledání investičních úspor, se dají dopracováním napravit.

Předchozí Další
Finalista
  • Autor di5 architekti inženýři
  • Team Petr Lošťák, Tereza Vaňková, Martin Votřel, Pavel Kabíček, Lucie Procházková
  • Praha
Anotace

Nemocnice může být svébytným elementem svým měřítkem a strukturou více či méně narušujícím organismus města – a vzhledem k její důležitosti je ono narušení zřejmě obhajitelné. Nemocnice může ale také s organismem města souznít a dokonce jej podporovat a stimulovat jeho správný vývoj. Problém rozdílného měřítka a odlišné struktury řešíme tak, že s jednotlivými objekty nemocnice nepracujeme jako s domy, ale jako s městskými bloky, které tvarujeme a umisťujeme tak, aby navazovaly na okolní urbanistickou strukturu. Mezi jednotlivými bloky vznikají jasně definované prostory kompozičně a prostorově navazující na okolní ulice. Toto řešení vytváří v areálu důvěrně známé a fungující archetypy (ulice, náměstí), dotváří okolní neúplné uliční prostory, posiluje jejich správné fungování a iniciuje budoucí dostavby okolních rozbitých bloků. Kompaktnost a intenzifikaci bez vytváření nedefinovaných ploch považujeme za základní principy udržitelného rozvoje měst.

Hodnocení poroty

Dle názoru poroty se jedná o urbanisticky zajímavý městotvorný návrh, který by vhodně doplňoval stávající libereckou strukturu. Kladně bylo rovněž hodnoceno řešení dopravní obslužnosti a zajištění provozuschopnosti nemocnice po dobu realizace první etapy. Za nedostatečnou však porota považovala provozní a medicínskou funkčnost předloženého řešení, stejně jako komunikaci mezi jednotlivými provozy. Malokapacitní návrh by bylo možné dle názoru poroty upravit, ovšem za cenu výrazného navýšení finančních nákladů.

Předchozí Další
Finalista
  • Autor SIADESIGN Liberec
  • Team Radim Kousal, Richard Černý, Marek Prchlík, Josef Trakal, Tomáš Rudolf, Jana Jachanová, Jana Růžičková
  • Liberec
Anotace

Nemocnici nové generace ideálně vyhovuje architektonické řešení, které je založeno na principech „horizontálního modelu“ a „bioklimatického konceptu“. Jedná se o ortogonální prostorovou strukturu, která vychází z principů „lean design“ a je schopna absorbovat současné, očekávané, ale i neočekávané požadavky kladené na moderní zdravotní péči. Nemocniční „monospace“ prokazuje čitelnost a jasnost komplexních nemocničních programů a požadovanou flexibilitu, která odpovídá nepřetržitému vývoji medicíny, techniky a předpisů. Je to pravoúhlé plató uspořádané kolem dvorů a vrstvené do pater. Dovoluje dvojitou cirkulaci pro toky medicínsko-technické a toky pro veřejnost. Koncept využívá volných úrovní podlaží bez určení definitivní funkce. Nemocnice se stává celkem, kde hranice mezi medicínsko-technickými provozy a ubytováním mohou fluktuovat. Adaptabilita budovy vyhovuje systému jednotlivých oddělení s mobilní hranicí a s flexibilním lůžkovým oddělením a nebo je možné budovu adaptovat na funkční vícemodulární systém zdravotní péče se zcela sdruženým lůžkovým fondem, kde jednomu oddělení v nemocnici „nepatří“ ani prostor, ani lůžka, ani přístrojová technika.

Hodnocení poroty

Návrh pro porotu představuje zajímavý a neotřele zpracovaný architektonicko-urbanistický koncept. Jako přínosné je hodnoceno i řešení dopravní obslužnosti Krajské nemocnice Liberec z ulice Jablonecká. Zachování provozuschopnosti nemocnice po dobu výstavby je ovšem diskutabilní, neboť není plně zachován provoz heliportu po dobu realizace první etapy. Otázky rovněž budila dostatečnost osvětlení ve spodních částech budovy a výhrady porotců zazněly také k výši investičních nákladů a energetické náročnosti provozu.

Předchozí Další
Finalista
  • Autor OBERMAYER HELIKA
  • Team Ondřej Míčka, Aleš Nedvídek, Tereza Drahošová, Tomáš Janeček, Josef Kříž, Jana Pražáková, Zdeněk Sůva, Petr Vašina
  • Praha
Anotace

Moderní nemocnice není budova, ale živý organismus, který se neustále vyvíjí. Nemocnice má své srdce, urgentní příjem, které pulzuje bez ohledu na den či noc. Má hlavní tepnu, která zásobuje nemocnici, je nositelem energie a rozvádí ji po celém areálu. Má páteř, která je cestou pro pacienty i zaměstnance. V návrhu je srdce, urgentní příjem, umístěno v krajním podélném objektu. Na něj postupně navazují další provozy propojené novou páteří vedenou středem nemocnice. Objekty na sebe vážou jako dva od sebe obrácené hřebeny, propojené středovou osou s polouzavřenými krajními bloky. Hlavní vstup je řešen z čtvercového náměstí se zelení. Pro plynulost provozu je příjezd sanitek řešen odděleně od zásobování a aut návštěvníků, které jsou směřovány do podzemních garáží. Nemocnice je živý, vyvíjející se organismus, jehož funkci umíme ovlivnit jasnou koncepcí logistických toků. Nová Krajská nemocnice Liberec má předpoklad být funkčním celkem a zároveň příjemným prostředím pro pacienty i zaměstnance.

Hodnocení poroty

Porotci hodnotili návrh jako funkčně i konstrukčně zvládnutý, nicméně urbanisticky fádní. Částečné výhrady má soutěžní porota k řešení dopravní obslužnosti: ačkoli vhodně využívá všechny tři vstupy – ulici Husovu, Jabloneckou a Kristiánovu, umístění čela parkovacího domu v ulici Jablonecké se jeví s ohledem na hustotu dopravy jako provozně nevhodné.

Předchozí Další