Zbuzany – nové předměstí Jindřichova Hradce

Návrh č. 1

Tomáš Pavlík / Praha
Návrh č. 2

KLASKA / Jakub Klaška / Londýn, Velká Británie
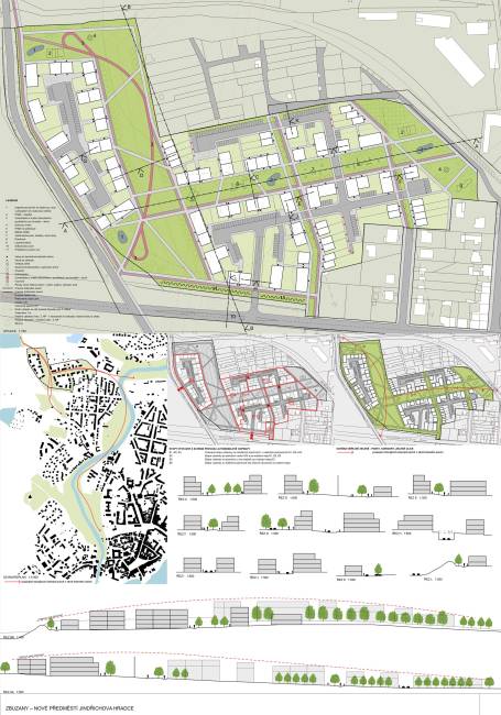
Návrh č. 3

Studio Sanctuary / Hong Kong, Čína
Návrh č. 4

Václav Mašek / Vonoklasy
Návrh č. 5

2.cena

ika.architekti / Tomáš Dvořák, Lenka Bažík, Zbyněk Šlahůnek / Brno
Návrh č. 6

JI XIANG STUDIO / Hong Kong, Čína
Návrh č. 7

1.cena

ateliér tečka / Benešov
Návrh č. 8

ofschem architekti / Luboš Františák, Viktor Schwab, Matěj Ondruch, spolupráce: Lucie Roubalová, Zdeněk Navrátil, Johana Kyselová, Markéta Faryová / Brno
Návrh č. 9

Landa Ruhmkorf / Lukáš Landa, Simona Rühmkorf, Petr Sulan / Kostelec u Křížků
Návrh č. 10

architektonický atelier Arkáda / Martin Řehák, Lucie Laubová, Anežka Vávrová / Praha
Návrh č. 11

MS plan / Michal Šourek, Pavel Hřebecký, Labbé Minte Juan Pablo, Petr Dajbych, Alžběta Vaštová, Tatiana Ondrejková / Praha
Návrh č. 12

Blanka Amelie Kulovaná / Jihlava
Návrh č. 13

3.cena

Office of Adrian Phiffer / Mo Bayati, Angela Cho, Adrian Phiffer; Transsolar KlimaEngineering / Erik Olsen, Viola Zhang / Toronto, Kanada
Návrh č. 14

Studio Alma / Jitka Alešová, Dominik Aleš / Praha
Návrh č. 15

Anna Ryabova / Amsterdam, Nizozemsko
Návrh č. 16

UPSTRUCTURE / Martin Žatečka, František Bosák, Pavel Paseka, Jolana Bosák Macháčková, spoluautorka: Daniela Haladová / Praha
Návrh č. 17

Urban (Beijing) Architectural Design Institute / Yuan Su, Lele Li, Xinpeng Huang, Juying Liu, Ruipeng Hu / Peking, Čína
Návrh č. 18

4.cena

gogolák + grasse / Ivan Gogolák, Lukáš Grasse / Praha
Návrh č. 19

Mókembé / Marton Kumuves, Aron Baki, Mate Gadolla, Akos Takacs / Budapešť, Maďarsko
Návrh č. 20

5.cena

PATA & FRYDECKÝ ARCHITEKTI / Luboš Pata, Pavel Svoboda, Barbora Svobodová Medová / Praha
Návrh č. 21

kodet architekti / Martina Kodetová, Tomáš Kodet / Kutná Hora