Zbuzany – New Quarter of Jindřichův Hradec

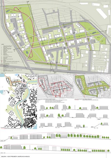
Project num. 1

Tomáš Pavlík / Prague
Project num. 2

KLASKA / Jakub Klaška / London, UK
Project num. 3

Studio Sanctuary / Hong Kong, China
Project num. 4

Václav Mašek / Vonoklasy
Project num. 5

2nd Prize

ika.architekti / Tomáš Dvořák, Lenka Bažík, Zbyněk Šlahůnek / Brno
Project num. 6

JI XIANG STUDIO / Hong Kong, China
Project num. 7

1st Prize

ateliér tečka / Benešov
Project num. 8

ofschem architekti / Luboš Františák, Viktor Schwab, Matěj Ondruch, collaboration: Lucie Roubalová, Zdeněk Navrátil, Johana Kyselová, Markéta Faryová / Brno
Project num. 9

Landa Ruhmkorf / Lukáš Landa, Simona Rühmkorf, Petr Sulan / Kostelec u Křížků
Project num. 10

architektonický atelier Arkáda / Martin Řehák, Lucie Laubová, Anežka Vávrová / Prague
Project num. 11

MS plan / Michal Šourek, Pavel Hřebecký, Labbé Minte Juan Pablo, Petr Dajbych, Alžběta Vaštová, Tatiana Ondrejková / Praha
Project num. 12

Blanka Amelie Kulovaná / Jihlava
Project num. 13

3rd Prize

Office of Adrian Phiffer / Mo Bayati, Angela Cho, Adrian Phiffer; Transsolar KlimaEngineering / Erik Olsen, Viola Zhang / Toronto, Canada
Project num. 14

Studio Alma / Jitka Alešová, Dominik Aleš / Prague
Project num. 15

Anna Ryabova / Amsterdam, Netherlands
Project num. 16

UPSTRUCTURE / Martin Žatečka, František Bosák, Pavel Paseka, Jolana Bosák Macháčková, co-author: Daniela Haladová / Prague
Project num. 17

Urban (Beijing) Architectural Design Institute / Yuan Su, Lele Li, Xinpeng Huang, Juying Liu, Ruipeng Hu / Beijing, China
Project num. 18

4th Prize

gogolák + grasse / Ivan Gogolák, Lukáš Grasse / Prague
Project num. 19

Mókembé / Marton Kumuves, Aron Baki, Mate Gadolla, Akos Takacs / Budapest, Hungary
Project num. 20

5th Prize

PATA & FRYDECKÝ ARCHITEKTI / Luboš Pata, Pavel Svoboda, Barbora Svobodová Medová / Prague
Project num. 21

kodet architekti / Martina Kodetová, Tomáš Kodet / Kutná Hora