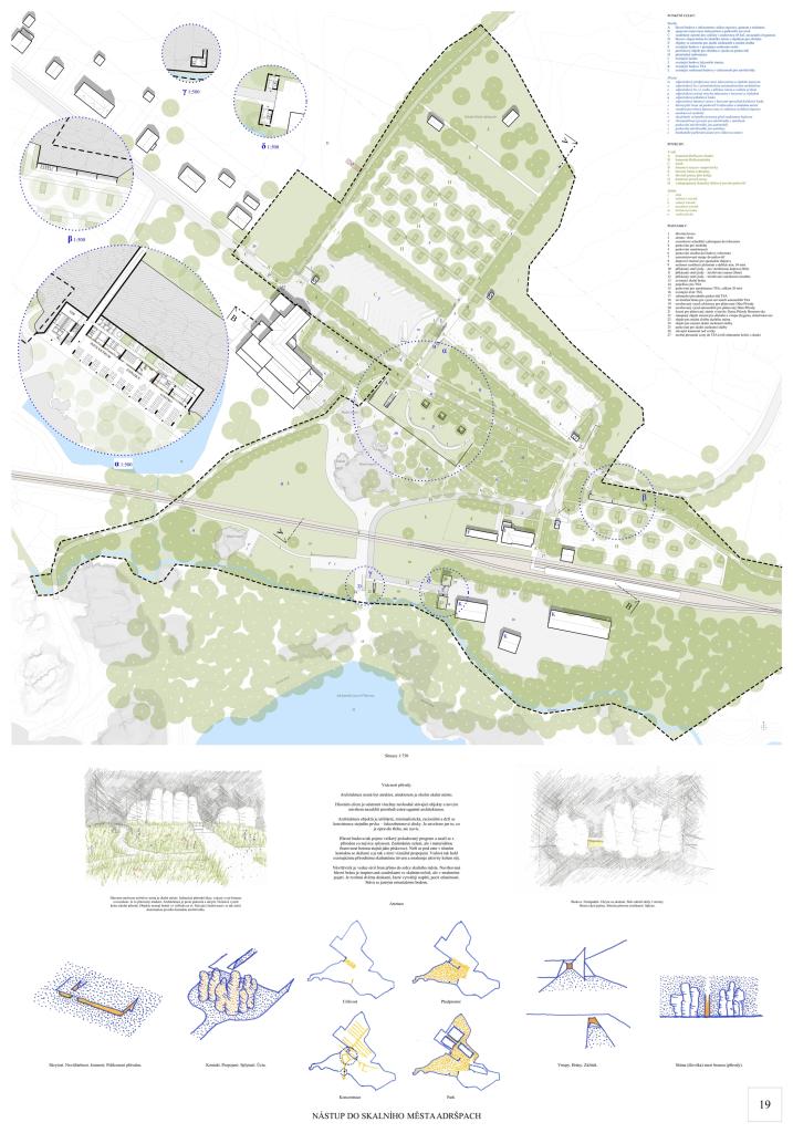
Entrance to the Adršpach Rocks

1st Prize
  • Author M. Šrámek A.A. - architektonická kancelář
  • Team Michal Šrámek, Josef Krejčí, Ondřej Toman, Marie Blahová; Steiner a Malíková krajinářští architekti; structural engineering: Ladislav Dvořák; traffic: Miroslav Vondřich; collaboration: Šimon Vágner
  • Prague
Annotation

The sandstone towers of Adršpach, with their gorges and crevices, testify to the dramatic formation of the landscape. Into this unique environment, we enter with humility and admiration for the place. The motto of the design is to merge with the landscape and not compete with the visually powerful character of the surroundings. We make use of the network of paths that wind between the rocks, eroding the surface and revealing three service buildings – a restaurant, an information center, and a souvenir shop. These structures appear to emerge from the underground, as if “cut out” from the fractures of the terrain. Their glazed façades encircle the first sandstone cluster, which—after the removal of surrounding structures and the reduction of excess greenery—becomes the symbolic center of the open entrance space and at the same time the emblem of the entire rock city.

Jury Evaluation

For the winning design, the jury appreciated the sensitive urban arrangement of the entrance building, divided into three volumes. The proposal responds thoughtfully to the natural context, the morphology of the terrain, and the scale of the surrounding development as well as the natural landmarks of the rock city. It is simple, comprehensible, and demonstrates high-quality work with scale and the character of the place. The buildings, embedded below the terrain, do not compete with the rock massif and instead create a pleasant public space between the structures and the Indian rock. From a landscape perspective, the design is humble yet clearly defined, supported by quality architecture. It is flexible, with clearly articulated areas and their hierarchy, and it offers a well-conceived user program.

Previous Next
2nd Prize
  • Author Lucký architects
  • Bratislava, Slovakia
Annotation

The Rarity of Nature. The main goal is to remove all unsuitable existing structures and to avoid overloading the environment with extravagant architecture. The architecture of the buildings is utilitarian, minimalist, and rational, maintaining consistency through a single element – the reinforced concrete slab. Only what is truly necessary is proposed, nothing more. Architecture is not meant to be the attraction; the attraction is the surrounding rock city. The main building accommodates the entire required program while striving to merge as much as possible with nature – by becoming overgrown with greenery, and through materiality (the color of the concrete matching the sandstone). It sinks into the ground in close contact with the rocks, creating a strong visual connection with them. In doing so, it pays tribute to the existing natural rock formation and moderates the activities around it. Visitors are guided by a sequence of gates directly into the heart of the rock city. The proposed main gate is inspired by the gorges of the rock city, yet interpreted in a contemporary way. It is formed by two slabs that generate tension and a sense of constriction. It becomes a clear landmark.

Jury Evaluation

The jury appreciates the clear urban concept of the proposal, its well-organized layout, and the appropriateness of the architectural intervention within the natural environment of the site. Concentrating the functions into a single compact building rationalizes both investment and operational costs. From a landscape perspective, the concept is simple, clear, and legible. The work with scale is well handled, and safe passage through the site is ensured. Questions remain regarding the character and use of, for example, the rooftop recreational areas or the functioning of the flower meadows in light of the anticipated load. Also worth consideration is the proportion of the entrance gate in relation to the surrounding rock massif.

Previous Next
3rd Prize
  • Author PROLOG and Landscape Practice
  • Team PROLOG: Mirabela Jurczenko, Bartosz Kowal, Marek Martynowicz, Wojciech Mazan, Bartłomiej Poteralski, Apolonia Slesarow, Radosława Suchowiecka, Agata Werochowska; Landscape Practice: Paulina Kalska, Emilia Piłat, Marta Przygoda, Lucyna Rydel, Jadwiga Ryczek, Marta Tomasiak; local architect: Jakub Kopecký; traffic engineer: Adam Beneš
  • Wrocław and Warsaw, Poland
Annotation

The project establishes a hierarchy of shared spaces to improve visitor navigation, making use of existing site conditions. A blue-green promenade is proposed to link the parking areas in the north with the entrance pavilion located to the south. After crossing the road, visitors are provided with direct visual access to the Rock City entrance, reinforcing spatial orientation. The entrance complex is positioned south of the railway line, preserving the central landscape area for public use.

Jury Evaluation

The urban concept presents a strong compositional approach. The main building is located directly at the entrance to the rock city and is complemented by smaller architectural interventions within the site’s natural environment. The jury appreciates the innovative approach to traffic organization and car parking. The architectural design of the main building is commended for uniting the required operational functions under one roof and for the effective organization of their interrelationships. From a landscape perspective, the proposal is of high quality. The use of materials is interesting, and the environmental aspect of the concept is well elaborated. Questions remain regarding the quantity and character of the accompanying program and its subdivision. However, the scale and extent of the proposed solution weaken the overall concept.

Previous Next
4th Prize
  • Author Atelier Za Mák and Jih architekti
  • Team Michaela Zudová, Matěj Šebek, Anastázie Zemanová, Christina Thompson Guerrero, Matěj Bělohlávek; collaboration: Filip Hauser, Tomáš Oubrecht
  • Číměř and Deštná
Annotation

The Adršpach Rocks are an exceptional phenomenon, a place visitors approach with great expectations. The aim of our design is to guide visitors comfortably through the heavily burdened entrance area without unnecessary operational conflicts. A clear and generous pedestrian route leads visitors through the site, with individual functions unfolding in logical sequence – from arrival, through the visitor center, to the entrance into the rocks. The spatial arrangement of these functions and their ability to respond to seasonal fluctuations prevent stressful situations and support the smooth flow of movement. Our vision is a return to the site’s original forest character. The new buildings are therefore low, with green roofs and minimalist design. They are logically distributed across the area and intentionally do not compete with the monumental rock formations; instead, they recede from them and frame attractive views of the landscape.

Jury Evaluation

A strong urban composition connects the parking areas with the entrance complex through a designed axis. The jury values the expression and quality of the architectural solution, but is not convinced about its spatial placement. From a landscape perspective, the concept of the axis is interesting, with a clearly defined entrance to the rock city. However, the scale and material of the axial path are open to discussion, as is the suitability of this concept in relation to the overall character of the site. The parking area is designed in an interesting way. On the negative side, the loss of the meadow and the diminished view of the fundamental panorama of the rock city are perceived as problematic. In this way, the solution shifts the site’s strong natural character into an urban expression…

Previous Next
5th Prize
  • Author Sulser Architektur
  • Team Erik Fichter and Khoa Vu (Studio Khoa Vu)
  • Zurich, Switzerland
Annotation

The project proposes a singular architectural gesture: a continuous, unified ring that encircles a forested courtyard—establishing a clear threshold to the Adršpach Rocks. This form organizes movement, frames nature, and enhances the visitor’s journey. Rather than scattering buildings across the site, the ring creates clarity, efficiency, and intimacy— offering an infrastructural framework that is both practical and poetic. At its core, the project is about balance: between architecture and landscape, between culture and nature, between the everyday and the extraordinary. By consolidating programs into three distinct clusters—Information and Welcome Center, Refreshment Pavilion with café and restaurant, and Cultural Pavilion with exhibition and multipurpose space—the ring allows for a legible visitor experience while enabling porous access and visual connection to the surrounding forest. While the form remains a closed loop, its density is thoughtfully reduced by preserving and extending select existing buildings to the south. This strategic integration allows the ring to serve as the public front-of-house, while the southern edge becomes a service-oriented spine—offering both operational efficiency and architectural coherence. The open, flexible strategy also anticipates future growth without compromising the integrity of the original gesture.

Jury Evaluation

A strong concept was developed into a generous architectural gesture. The jury discussed the appropriateness of this intervention within the given natural context. The proposed solution for parking areas does not fit into the surrounding landscape. From a landscape perspective, we perceive the design as a misunderstanding of the overall character of the site and its hierarchy. Although integrating the rocks into the center of the building may be an interesting concept, the proposed solution undermined the true value of the rock formation and the character of the landscape in question.

Previous Next