THE WORK – Homage of Jiřina Hauková and Jindřich Chalupecký

1st Prize
  • Author Vojtěch Tecl, Tereza Brussmannová, Savka Marenić, Adam Šustek
  • Team Jakub Rajnoch
  • Chotěboř
Annotation

The tribute to Jiřina Hauková and Jindřich Chalupecký is a synthesis of both - "together." It speaks through a new hybrid billboard. Using existing technology, it can create new texts through the texts of both authors. By connecting these two personalities, endless variations of intelligent generated text are born. It is invented by a neural network system, taught by all available texts and archives left behind by both authors. A combination of two approaches to creating written text is created, creating new immortal poetry and ideas that are constantly being updated.

Jury Evaluation

An interesting project of a "hybrid auto-intellectual billboard" - technologically, formally, and content-wise. The automatic generation of new texts corresponds to several current procedures thematizing the limits and possibilities of artificial intelligence and automation (Chalupecký also wrote with some apprehension in his canonical text The World We Live In). An interesting part of the work is the creation of an archive of generated texts. The project works interestingly with the legacy of both authors. It uses a simple display, common for public space, but typically for a nearby train station rather than a park. A kind of living archive based on the generation of new texts using a neural network system relates both authors' work to the present. At the same time, it is an attractive element for the users of the place. Straightforwardly, it also evokes a slightly inappropriate, unpathetic "retro" atmosphere of a kind of drive-in cinema.

2nd Prize
  • Author Radek Talaš
  • Zlín
Annotation

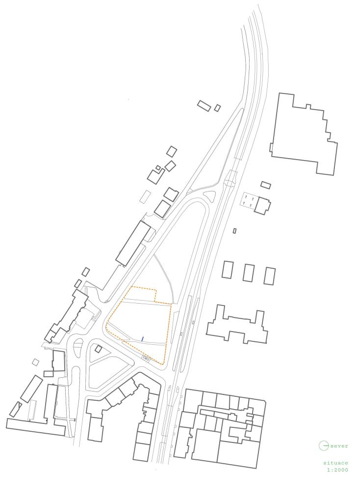
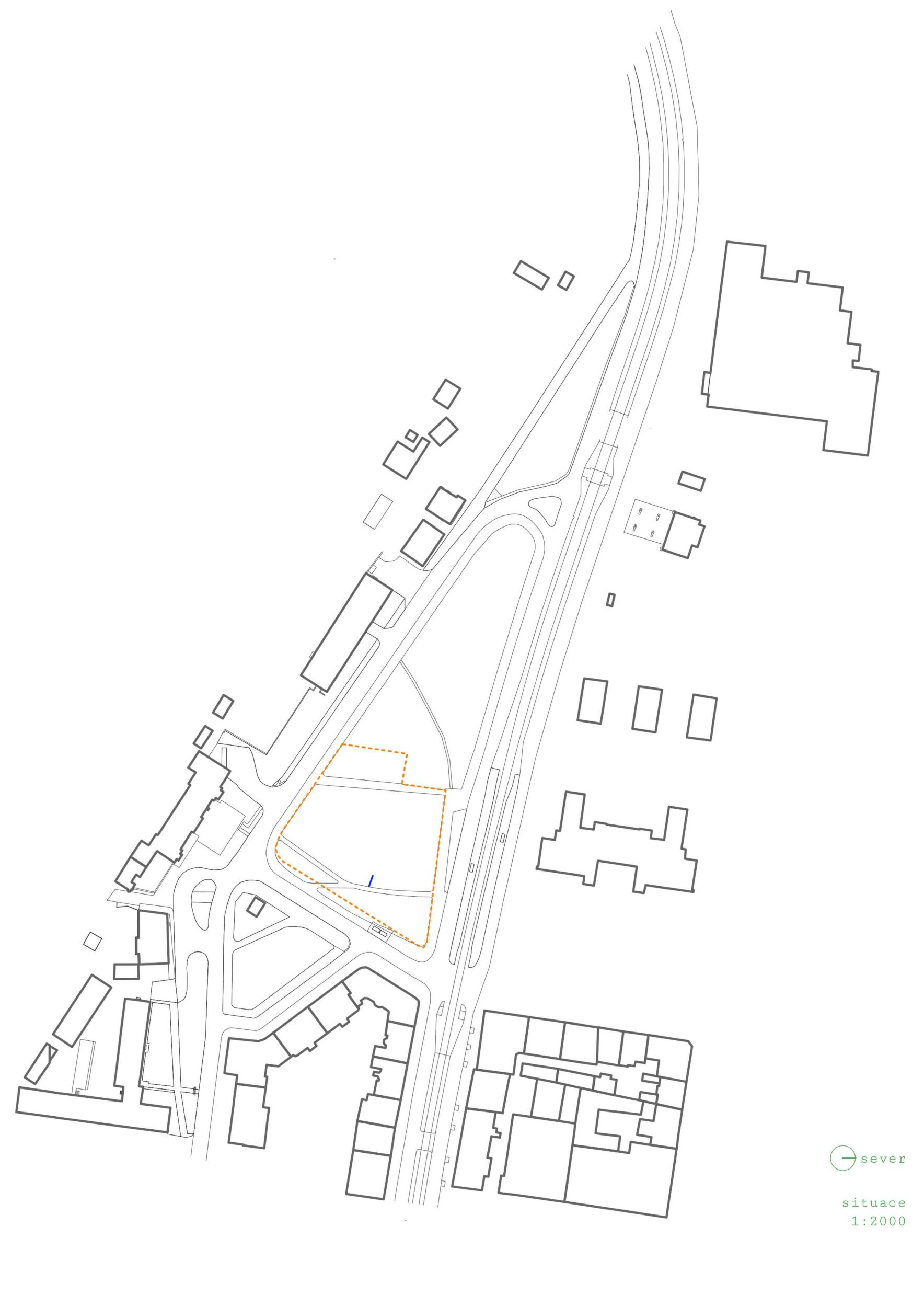
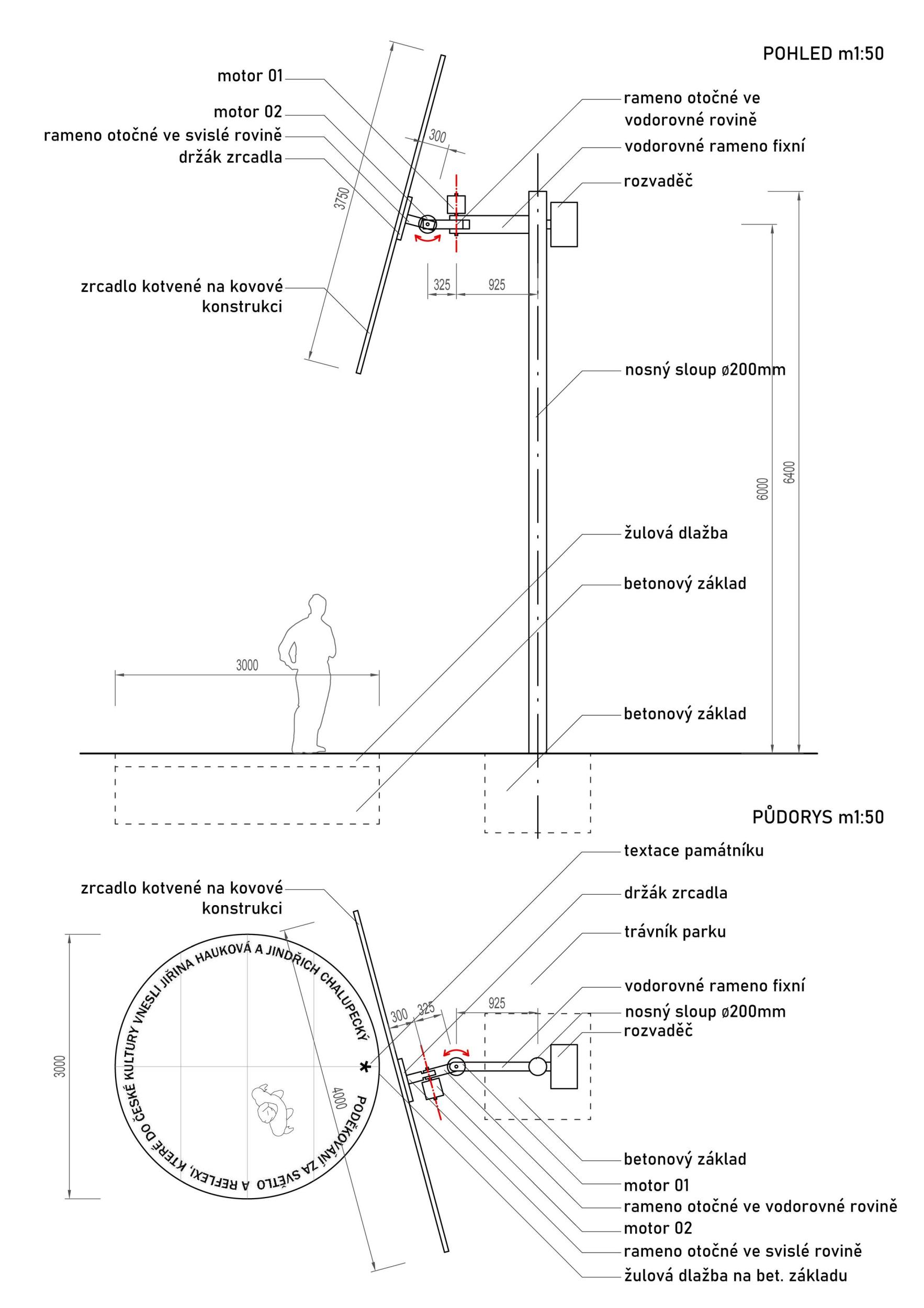
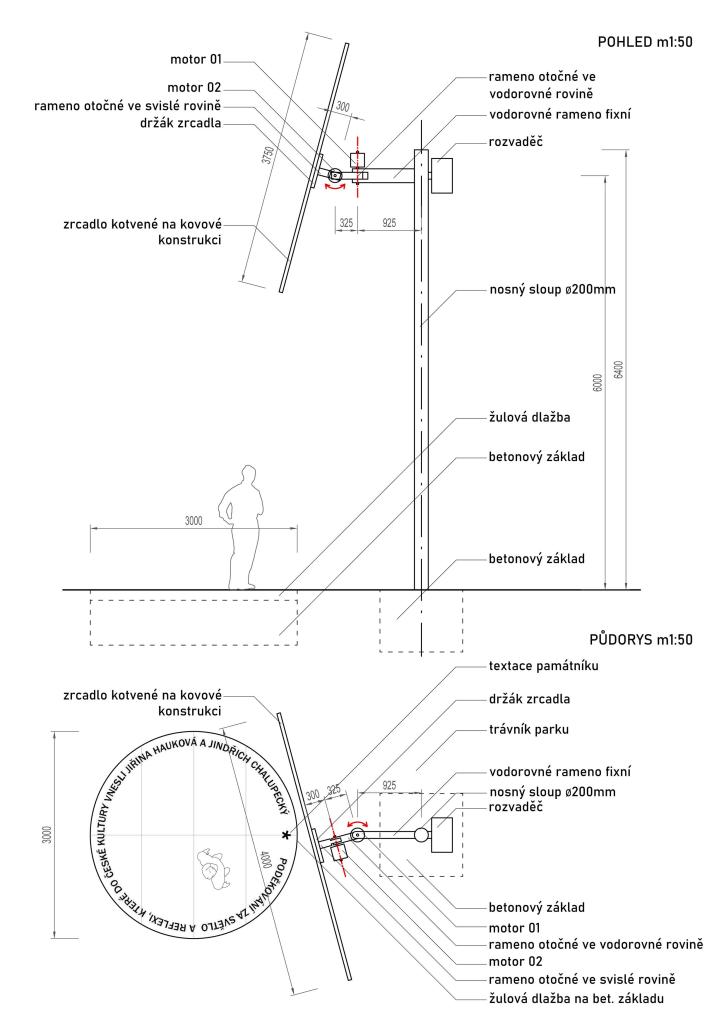
The design subject is a memorial to two personalities of Czech culture who spent most of their life together in Vršovice. Jindřich Chalupecký and his clear, uncompromising, precise, and core considerations and reflections not only on the Czech cultural scene and Jiřina Hauková, with his sensitive, deep, and penetrating poems. In addition to living together, two personalities were united by literary work and who left their society a significant legacy with their work. The monument tries to give thanks for this significant legacy and, at the same time, in its spirit, tear the viewer out of the mundaneness of everyday life and let him see this mundaneness with a new perspective.

Jury Evaluation

A playful interactive design that draws the station environment into play. The kinetics of the object and work with the reflection of sunlight are attractive. The object asks for ordinary curiosity - what it actually is, how it works, why an asterisk, and why it throws a light reflection on the station facade. At the same time, however, it lacks a clearer reference to Hauková and Chalupecký - a clearer explanation of the choice of the given shape and placement in context. The text link on the ground is quite "on the nose" in this respect.

Previous Next
3rd Prize
  • Author Studio COSMO
  • Team Jiří Kabelka, Tereza Kabelková, Marie Kubátová, Petr Moschner
  • Praha
Annotation

Circle framing the ordinary reality of the park. Children playing, birdsong, a long way, bench, lamp. A stage for the everyday drama of a person and reality. The lush shade of a tree in arid summer, bare branches in winter. The ideas of Chalupecký and Hauková are delicately inscribed on the edge of the intervention and in the park.

Jury Evaluation

The insertion of a natural pedestal, which seems to emphasize the importance of an otherwise ordinary place inadvertently, is on the verge of banality; nevertheless, the concept of raising the park level by a few decimeters is quite attractive. A very sympathetic design emphasizing the place itself and life draws attention to everydayness in a simple yet poetic and thoughtful way.