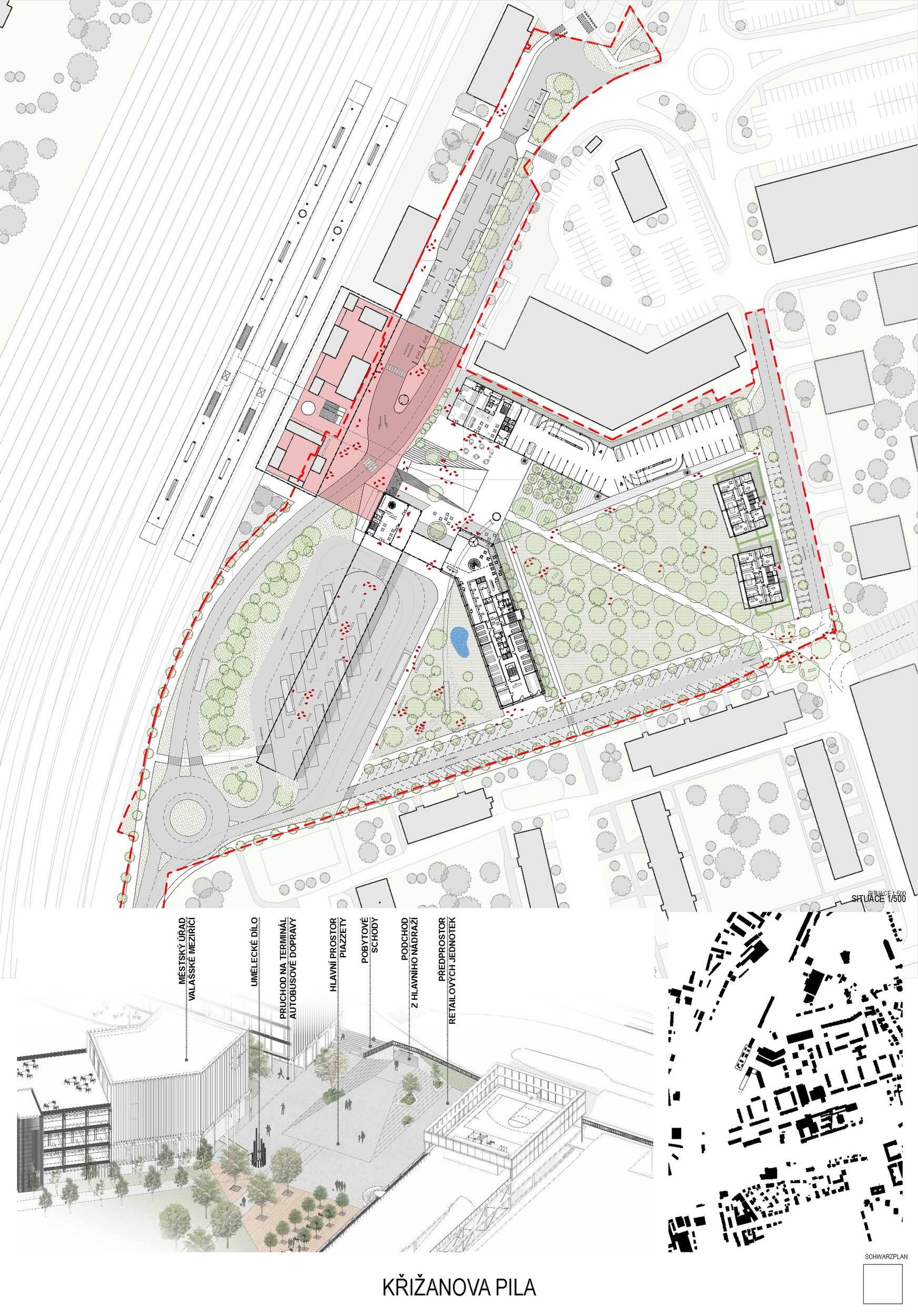
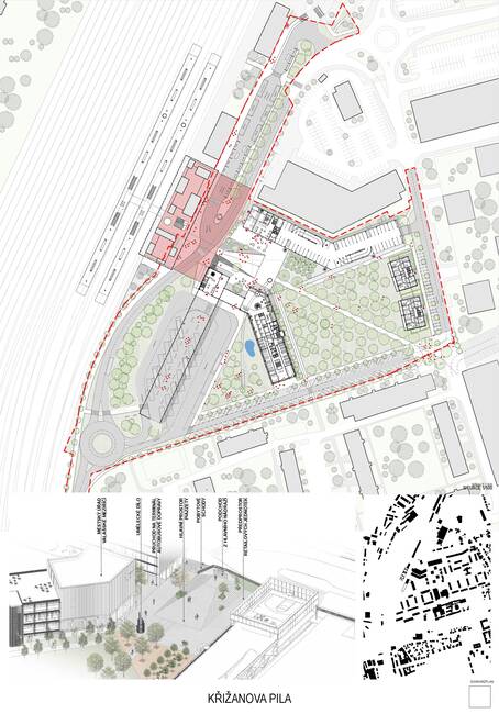
Křižanova pila

Project num. 1

atelier EMIL / Prague
Project num. 2

3rd Prize

RV Atelier / Jiří Příhoda, Radovan Vašíček, Lucie Kapustová, Mikuláš Ott, Ondřej Sejkora, Petra Šoborová / Valašské Meziříčí
Project num. 3

2nd Prize

2M ateliér architektúry / Miroslav Michalica, Tomáš Pozdech, Filip Hečko, Jana Bozáňová / Bratislava, Slovakia
Project num. 4

Finalist

Miroslav Kurčík / Radka Kurčíková, Andrej Kurčík / Ratboř
Project num. 5

LBNK architekti / Pavlína Řmotová, Nela Vicanová, Vojtěch Nejeschleba / Prague
Project num. 6

P.P. Architects / Brno
Project num. 7

Office Ou / Toronto, Canada
Project num. 8

UYO architekti / Šumperk
Project num. 9

ENDORFINE / Žilina, Slovakia
Project num. 10

Settanta7 and Ramboll / Turin and Copenhagen, Italy and Denmark
Project num. 11

Finalist

Mókembé / Marton Komuves, Aron Baki, Mate Gadolla, Akos Takacs / Budapest, Hungary
Project num. 12

1st Prize

MACH Office + Aramé Studio / Marc Subirana, Laia Gelonch + Adrián Mellado, Andrea Arriola / Barcelona, Spain
Project num. 13

Fabrizio Arrigoni / Řím, Itálie