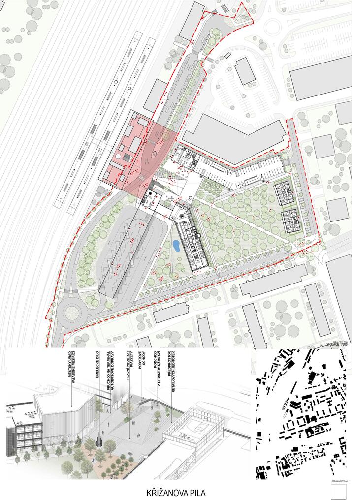
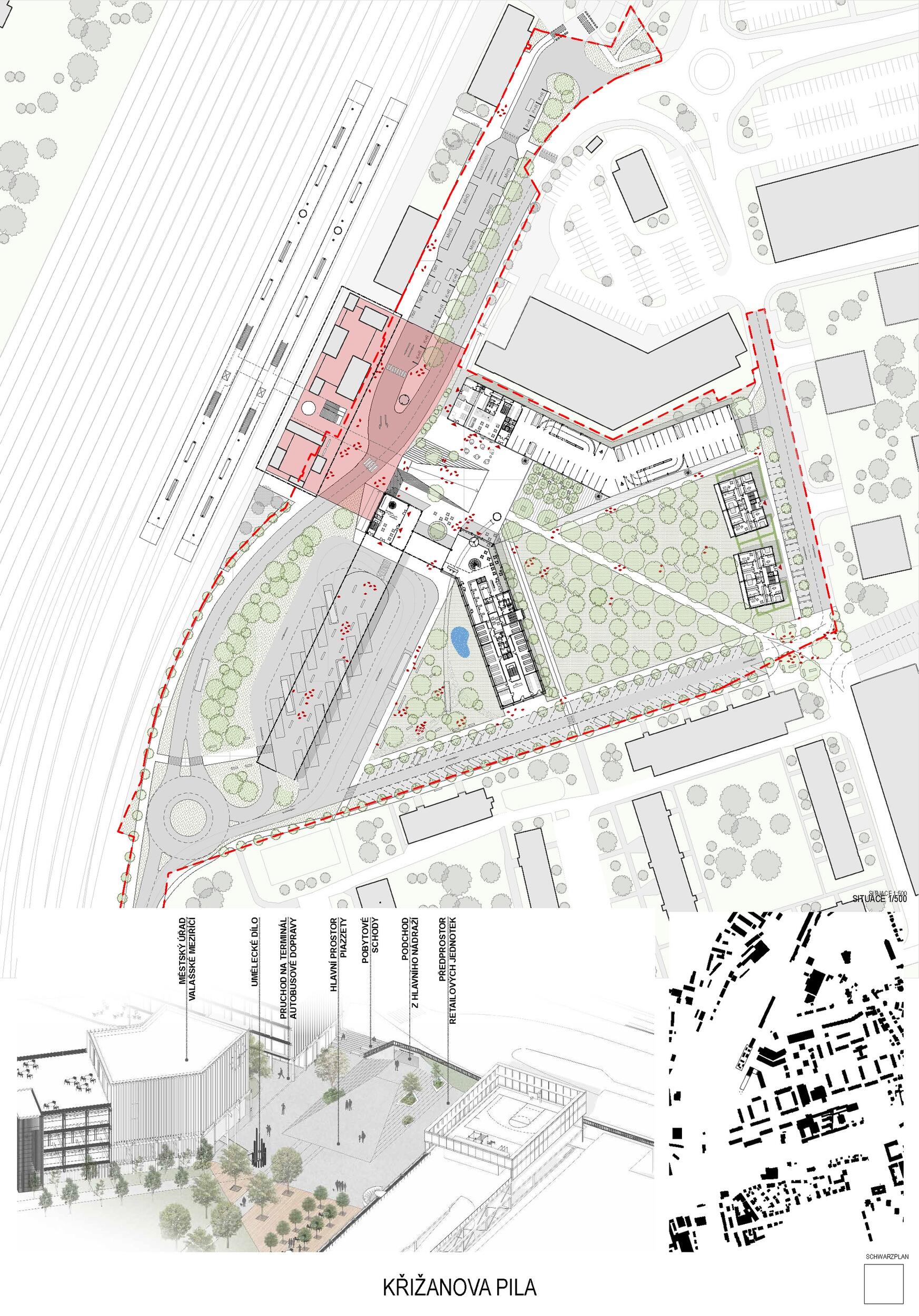
Křižanova pila

1st Prize
  • Author MACH Office + Aramé Studio
  • Team Marc Subirana, Laia Gelonch + Adrián Mellado, Andrea Arriola
  • Barcelona, Spain
Annotation

Situated at the convergence of mobility infrastructure and the everyday life of the city, the project site is both a point of arrival and a place of transition. Our approach responds to this complexity through a strategy rooted in phasing, addressing the immediate functional needs outlined in the competition brief, bus terminal, municipal offices, parking garage, public spaces, and residential buildings, while also creating a robust, adaptable structure capable of supporting future transformations. This means creating infrastructure that is resilient, inclusive, and responsive to shifting patterns of use, technological change, and the needs of future generations.

Jury Evaluation

The jury appreciates the clear and well-articulated urban and architectural concept, convincingly presented by the proposal. It values the critical reassessment of the original urban study, which the design reflects upon in the context of the city’s real needs, taking into account both the current situation and the future development potential of the area. The proposal offers a contemporary approach with standalone buildings set in a park landscape, sensitively responding to the surrounding urban fabric and allowing for a straightforward phasing of construction. The clarity and architectural character of the individual buildings are seen as appropriately aligned with their intended function. The jury was particularly impressed by the bold design of the City Hall building, which successfully meets the brief’s ambition for a new identity of the site, while also fulfilling the symbolic and representative role of a major municipal institution. The building's design demonstrates energy efficiency and thoughtful sustainability strategies, aligning with today’s standards for performance and environmental responsibility. The proposal shows a high level of graphic quality and thoroughness throughout, reflecting the authors’ careful and professional approach. The landscape design is also carefully considered, especially in the clear structure and hierarchy of pedestrian routes and the integration of small-scale architectural elements. The residential buildings are well resolved and sensitively integrated into the overall character of the site. The jury further commends the consistent attention to environmental aspects across the entire proposal. The spatial layout of all buildings appears clean and functional, contributing to user comfort and overall clarity of the design. Among all submitted proposals, this entry stood out with its complex, balanced, and ambitious approach, best fulfilling the competition brief while offering a strong and inspiring vision for the site’s future development.

Previous Next
2nd Prize
  • Author 2M ateliér architektúry
  • Team Miroslav Michalica, Tomáš Pozdech, Filip Hečko, Jana Bozáňová
  • Bratislava, Slovakia
Annotation

Křižan’s Sawmill – a New Section of Valmez The transit zone is transformed into a layered urban space. The design is structured around a clear axis of movement, accompanied by an alley, public spaces, and greenery – from the piazzetta with its active ground floor to the climate park. The space acquires the rhythm of the city, with places for meetings, relaxation, and short pauses. Ecological principles are applied on multiple levels – from surfaces to rooftops to water management. Křižan’s Sawmill thus becomes a sustainable urban gateway that connects functionality with atmosphere, and history with future perspective.

Jury Evaluation

The jury appreciates the proposal’s urban design, particularly for its clear spatial organization and well-considered hierarchy of functions, resulting in a functional and legible arrangement of public spaces. A major strength of the design lies in the high-quality treatment of the main piazzetta and the strong spatial termination of the main alley, which together create a clear compositional point and natural conclusion to the public axis. The integration of retail functions into the ground floor of the parking structure is also commended, as it significantly contributes to the long-term vitality and daily activation of the piazzetta. The arrangement of the residential buildings is seen as another key strength: it offers a distinct and functional layout of shared semi-private outdoor spaces, with clear potential to support community life among future residents. The design also includes thoughtful traffic-calming strategies — such as one-sided parking combined with tree-lined streets and raised intersections — which help create a more comfortable and pedestrian-friendly public realm along new streets. The proposal stands out for its unified visual and architectural expression across the entire development, which adds to its overall clarity and cohesion. This entry was awarded second prize for its balanced urban strategy, strong integration with surrounding structures, and clear spatial organization that together provide a solid foundation for future development.

Previous Next
3rd Prize
  • Author RV Atelier
  • Team Jiří Příhoda, Radovan Vašíček, Lucie Kapustová, Mikuláš Ott, Ondřej Sejkora, Petra Šoborová
  • Valašské Meziříčí
Annotation

The architectural study addresses the transformation of the former Křižan’s sawmill brownfield in Valašské Meziříčí into a new, vibrant local city center. The proposal combines public, transport, residential, and commercial functions, creating a comprehensive, functionally balanced, and urbanistically coherent environment. At the heart of the site lies a new civic square, serving as a natural social and orientational landmark. In its immediate vicinity are the new municipal office building, the bus terminal, a parking garage, and spaces for community services and retail. The direct connection to the adjacent railway station makes the site an important transport hub of the city. The design also includes a park belt with residential buildings, bringing a calm, residential atmosphere into the area and ensuring high-quality living conditions for everyday life. The overall concept is based on the principles of sustainability, functional integration, and the creation of high-quality public space that fosters community life and strengthens the identity of the place.

Jury Evaluation

This proposal naturally follows existing urban axes and preserves key spatial and functional connections within the site. The jury appreciates the vitality of the proposed piazzetta, which offers a high-quality, shared public space with the potential to become a natural focal point for social life and activity. A significant contribution lies in the sensitive handling of the site’s historical memory, which is reflected in both material choices and architectural detailing. The bus terminal design, with a central island layout, is functional, intuitive, and well-integrated into the overall composition of the project. The design of the main alley is also commendable, with a spatially logical and natural ending. The layout of the City Hall is seen as functional and well thought out, including a direct connection to the terminal, a vertically accentuated entrance on the corner, and a representative hall on the top floor. The jury awarded this proposal third prize for its balanced approach that combines a strong sense of place with functional clarity and spatial quality.

Previous Next
Finalist
  • Author Miroslav Kurčík
  • Team Radka Kurčíková, Andrej Kurčík
  • Ratboř
Annotation

The main objective of the proposal is to preserve as much green space as possible. The Emilie and Jan Křižan Alley is emphasized by a “colonnade” with an active ground floor. The municipal office is located on the northern edge of the designated area, with most of the offices oriented toward the triangular park. Storage facilities are placed on the northern side. The entrance floor of the municipal office is elevated above the 100-year flood level. The parking garage is situated in the least valuable part of the designated area, in the northeastern corner, and is concealed by the “colonnade.” The bus terminal is defined by the separation of roadways and pedestrian routes, ensuring that they do not intersect at any point. The bus bays are designed to reflect boarding through the front right doors. Two residential buildings are located along the southern edge of the park.

Jury Evaluation

The jury appreciates the design of the City Hall building, whose functional layout is operationally logical and easy to navigate. Its vertical accent naturally creates a strong visual landmark within the area. However, the proposal also presents several critical shortcomings that significantly limit its overall quality and functionality. A key issue is the placement of the City Hall on an upper level, which reduces its accessibility and spatial clarity. The different elevation levels between the City Hall entrance and the bus terminal hinder smooth connectivity between these two essential components. The design of the piazzetta, conceived as a sunken space, is problematic — it reduces usability and limits engagement with the surrounding public areas. The City Hall is oversized in terms of capacity, negatively affecting both the building’s proportions and the efficiency of space use. Additional major concerns include residual spaces behind the City Hall and oversized traffic areas, which unnecessarily consume valuable public space. The landscape design appears schematic, and the fragmentation of park areas, along with the inappropriate placement of residential buildings, diminishes the overall quality of the public realm. The absence of a clearly defined termination point for the main alley and the schematic nature of the urban layout further highlight the lack of a coherent urban concept. Due to these substantial shortcomings, the proposal did not sufficiently convince the jury in comparison with other submissions.

Previous Next
Finalist
  • Author Mókembé
  • Team Marton Komuves, Aron Baki, Mate Gadolla, Akos Takacs
  • Budapest, Hungary
Annotation

The proposal defines a coherent urban ensemble that both guides in time and represents in form the densification of the station area. The station forecourt with the new piazzetta and park constitutes a continuous urban armature that is spatially framed by a composition of recognisable urban figures: the curved colonnade of the bus terminal, the stepped volume of the municipal offices both converging on the piazzetta, the expressive roof of the parking garage the perimeter threshold formed by the multi-unit urban villas towards the town center. The park is a layered urban garden with differentiated vegetation and a water system that follows the geography of the location and is centered on a pond. The general aim is to develop an accesible multi-modal transport hub that is at the same time and at equal measure a welcoming public space, and to gradually establish the Kirizanova Pila site as a complementary urban center anchored in the civic consciousness of Valašské Meziříčí trough its legibility and spatial quality.

Jury Evaluation

The jury acknowledges the functional layout of the City Hall, which offers a solid foundation for further development and practical use of the building. Nevertheless, the overall impression of the proposal is diminished by several notable weaknesses. The architectural expression of individual buildings is marked by an eclectic formal language, resulting in stylistic inconsistency and a lack of coherence across the site. The traffic infrastructure is oversized, leading to inefficient use of space. The area around the piazzetta lacks an active ground-floor interface, which undermines its potential to become a vibrant public space. Further issues include the unusable space in the centre of the bus terminal and a leftover area behind the parking structure, both of which create unpleasant and dysfunctional zones. The placement and footprint of the residential buildings are also suboptimal, reducing their connection with the surrounding urban fabric. Due to these fundamental shortcomings, the proposal did not stand out among the competing projects.

Previous Next