Reconstruction of the former prison in Uherské Hradiště

Project num. 4

Honorable mention

FVA / Bratislava
Project num. 3

2nd Prize

Múčka Veselý architekti / Radomír Feňo, Ivona Uherková / Brno-Maloměřice
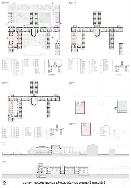
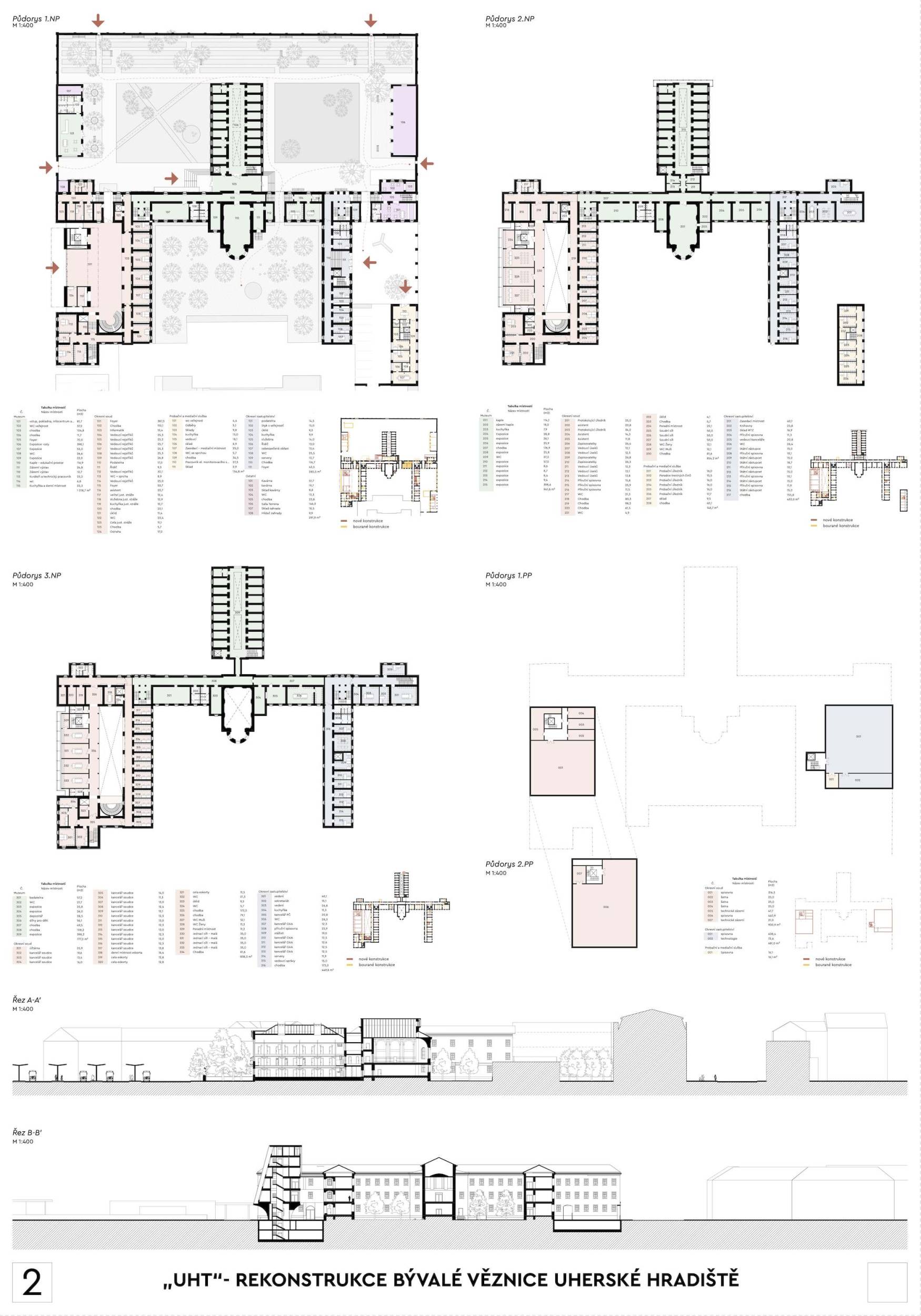
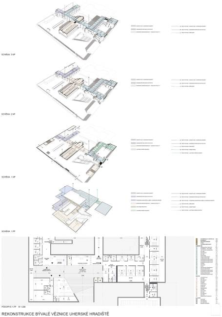
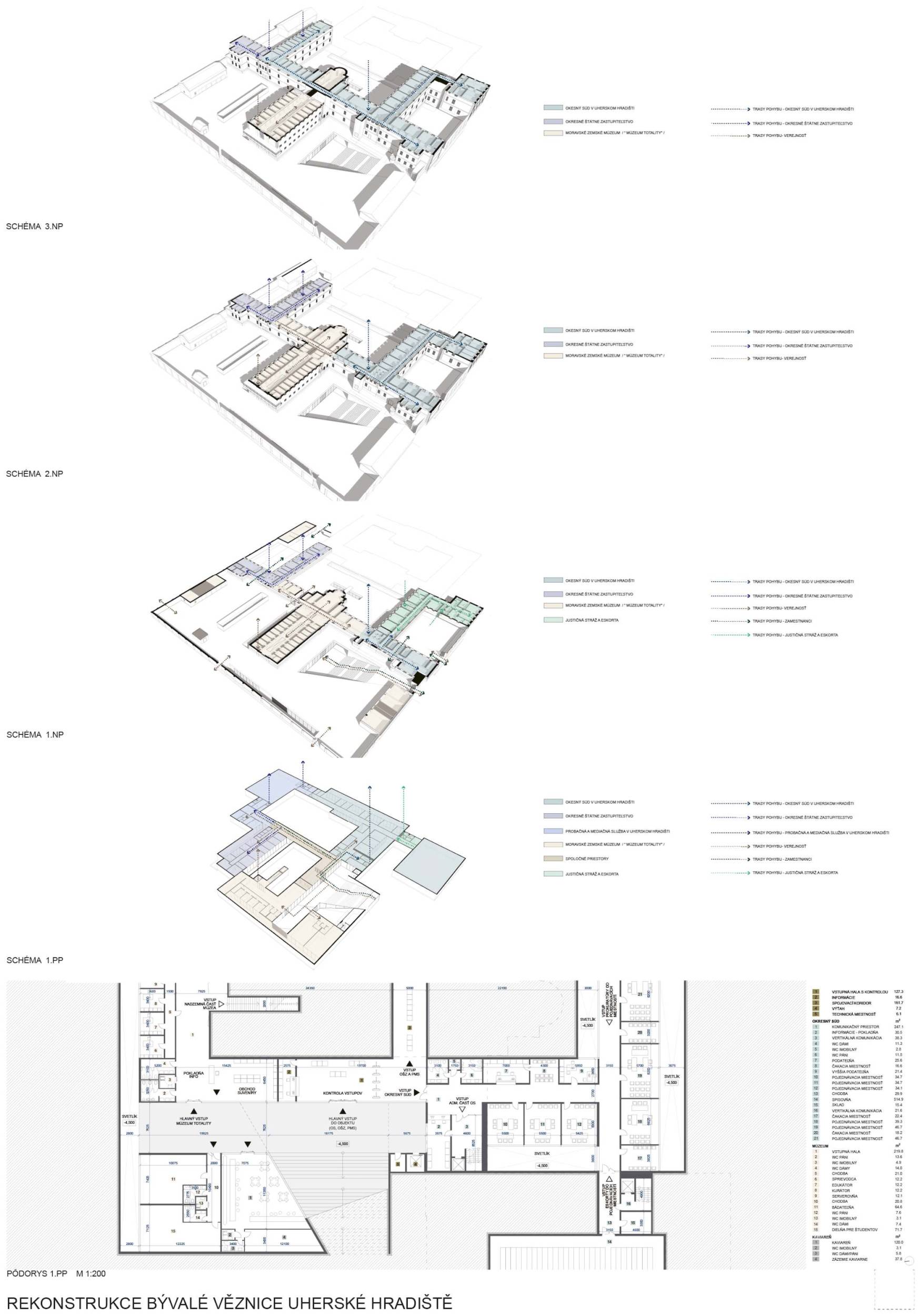
Project num. 2

Honorable mention

Radka Kurčíková / Radka Kurčíková, Collaboration: Martina Gregorová, Lujza Lehocká / Ratboř
Project num. 1

1st Prize

ov architekti / Jiří Opočenský, Štěpán Valouch, Ondřej Králík, Author of the landscape design: Jan Sulzer, Co-authors: Viktor Žák, Anna Blažková, Kateryna Bondarenko / Praha
Project num. 5

Honorable mention

Michal Kutálek a Arch. Design / Uherské Hradiště
Project num. 6

Honorable mention

PEER COLLECTIVE
Project num. 7

3rd Prize

re:architekti studio / Ondřej Synek, Jan Vlach, Jiří Žid, David Pavlišta, Cooperation: Tereza Psotková, Štěpán Psotka, Alžběta Widholmová, Michaela Hudečková, Martin Kunc, Marie Gelová, Sandra Chlebovská, Cooperation: Pavla Drbalová / Symbio studio / Praha
Project num. 8

Honorable mention

DKarchitekti / David Kudla, Zdeněk Navrátil, Xeniya Pulkrab, Lucie Klepárníková, Jana Raticová, Petr Ciprys, MISS3 / Brno
Project num. 9

Honorable mention

Ondřej Pecháček, Matouš Pluhař, Jaromír Pecháček / Uherské Hradiště