The Great Cinema of Modern Zlín

1st Place
  • Author re:architekti studio
  • Country Česko
  • City Praha
Annotation

The building in its original form from 1932 was simplest in both its interior and exterior. This simplicity is the most valuable feature we want to preserve and strengthen. We are achieving this by removing all of the latter construction layers and returning to the prime volumetric simplicity as well as recognising the greatness of the original hall. The Great Cinema contains two halls – the large hall accommodates 900 seated spectators within the original volume, and the small hall is designed for 210 spectators. Both halls have levelled floors, are divisible, and have great acoustics and wide usability. The two halls can be used separately or they can be connected to the foyer to create one flowing space of the Great Cinema. We retained the possibility of accessing the large hall with a lorry. The sliding windows are supported by the new construction to not overload the existing building structure. With the respect to their weight, the system of counterweight is added. The manipulation of the windows will be provided by electric motors. We designed a sufficient service programme within the institution. This constellation allows continuous operation, where everyday small events occasionally alternate with large events. Life within the Great Cinema is ensured by a generous café in the foyer, which opens onto the terrace in front of the cinema during the summer months. The Great Cinema also provides several studios for recording, animation, photography, and offices for employees or for rent. The space in front of the cinema encourages movement and life within the square. People are sitting on the edge, looking out at Tomas Bata Avenue. There is a café on the terrace offering a space to play as well as views across the city. This would be a unique space for Zlín. Architects: Michal Kuzemenský, David Pavlišta, Ondřej Synek, Jan Vlach, Jiří Žid, Michaela Hudečková, Vojtěch Ružbatský, Dušan Sabol, Alžběta Widholmová Landscape Architects: Symbio studio (Pavla Drbalová, Marie Gelová, Sandra Chlebovská) Structural Engineer: Excon (Vladimír Janata, Jindřich Syrovátka) Acoustics: Petr Novák Transportation Engineer: Květoslav Syrový Fire Engineer: Jan Trafina Cultural Management: Jiří Sulženko

Jury Evaluation

A bold and imaginative contemporary reinterpretation of the legacy of modern Zlín architecture. A consistent universalistic concept with great flexibility of use for cultural and commercial programs. In this sense, it follows the original meaning of Gahura’s construction. The building is a programme-creating machine – it offers two main spaces, a smaller hall for common (everyday) use, and a universal large hall for more space-demanding events. The main mass of the hall is reduced by the inserted mass of the second hall which reduces the overall size of the space but retains its width proportions, including the entire span of the monument-valued structure. The design is well thought out regarding the load-bearing structure and successfully enables variations, while maintaining the load-bearing function of the existing structure. The operation and supply of the building are well designed. The possibility of opening a large hall to the exterior further enhances the original intention of the building as a covered public space. The main hall will therefore be directly involved in the events happening in the square which fundamentally opens up the spectrum of possible uses. The generous opening of the entrance facade appropriately articulates the intention to create an accessible public space for everyday use, and to communicate with the Práce Square. Levelling the terrain in front of the main entrance to the building creates an adequate entrance forecourt, formally defined, but at the same time still part of a typical large area north of the Great Cinema. The design actively approaches monument preservation in the sense of a dialogue between the old and the new: the new layer represents a solution of construction or functional innovation – the lift and opening/glazing of the ground floor of the front and side facades. Such an ambitious project also places demands on the operator, as it requires active participation. From the point of view of stage technology, the design represents a well-thought-out and functional solution for arranging spaces and establishing technology for production. The large hall has an adequate and effective solution to sliding elevation. The small hall is proportionally an ideal space for small theatrical productions of all genres, conferences, etc. The elevation of the small hall is built of Rastra which can be rather time-consuming. The design is realistic in terms of technological equipment and technology cost budget.

Previous Next
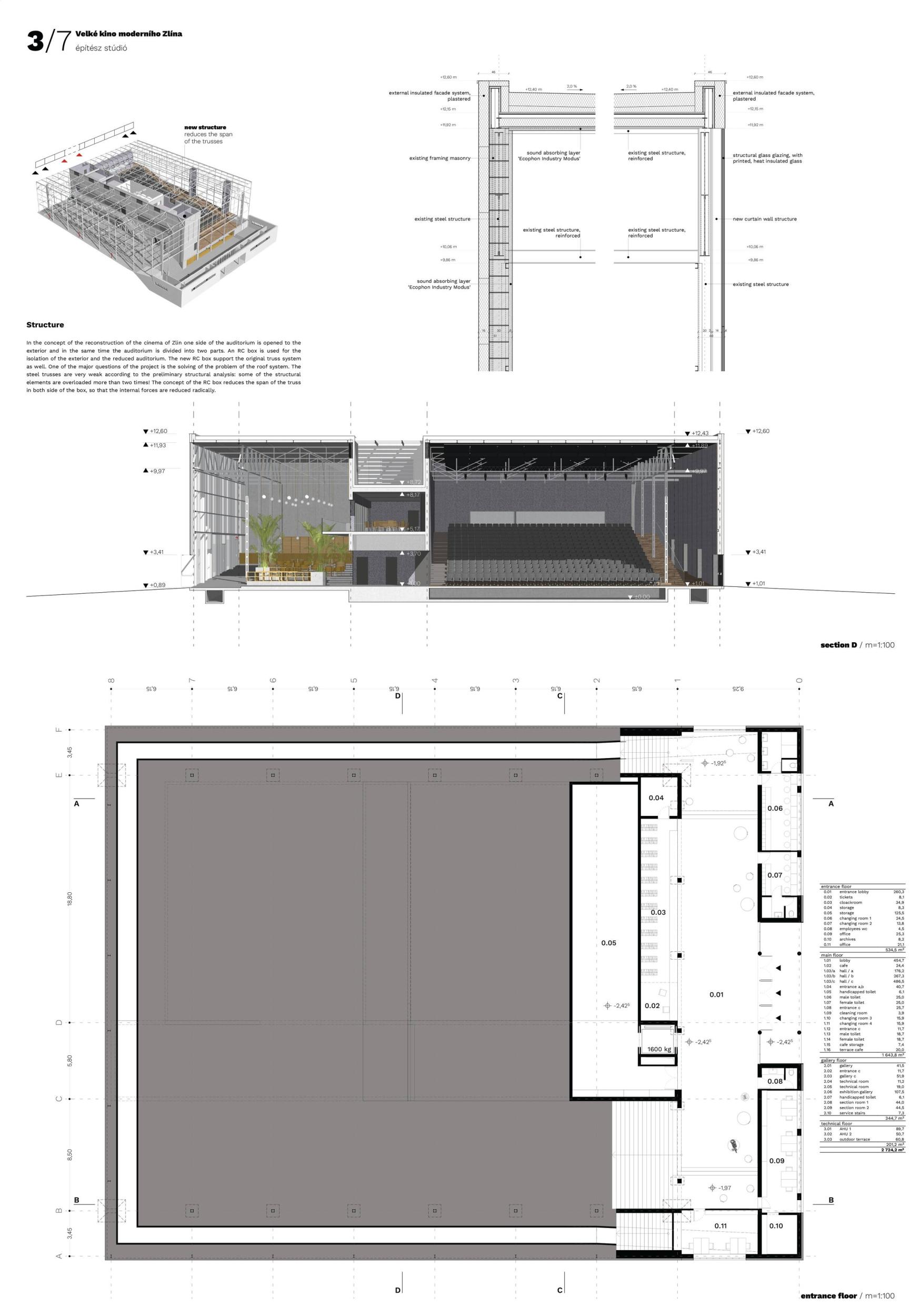
2nd Place
  • Author Építész Stúdió
  • Country Hungary
  • City Budapest
Annotation

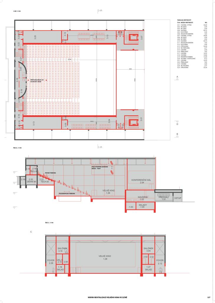
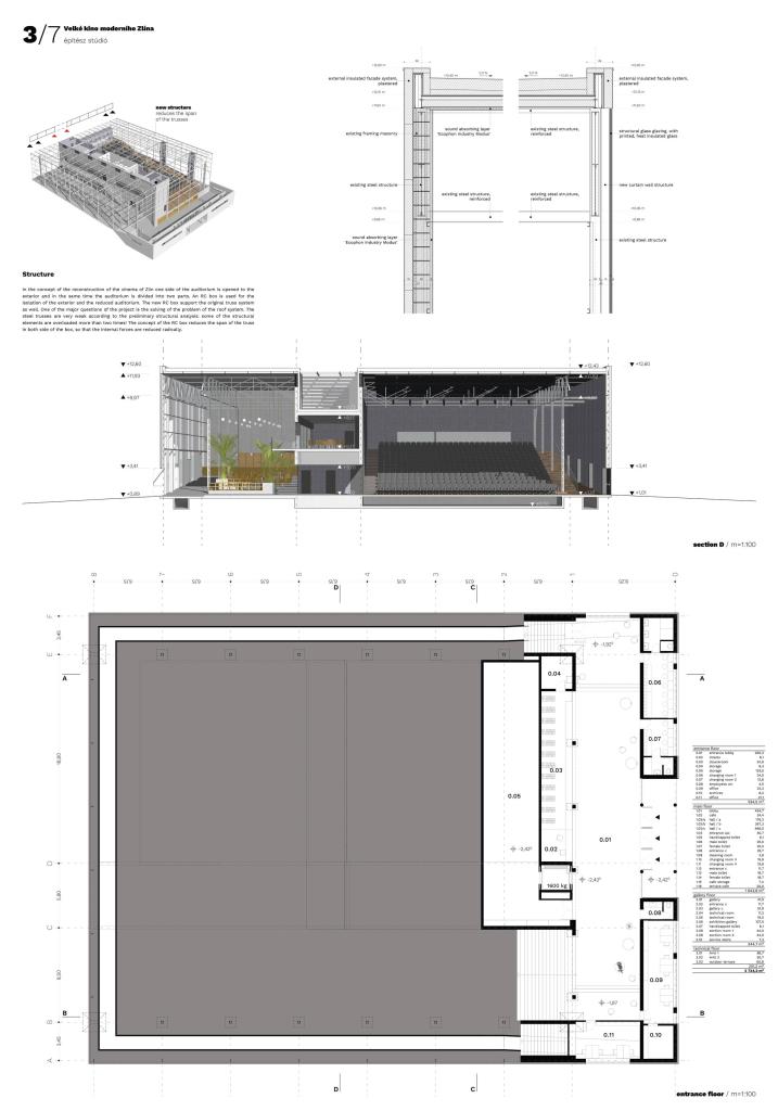
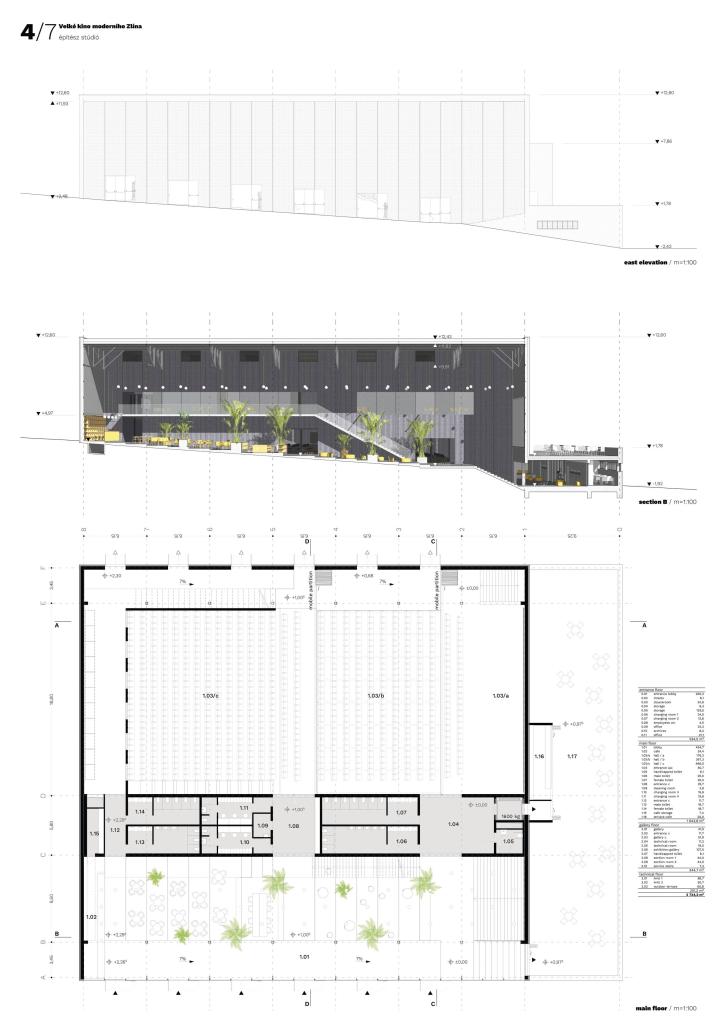
The original austere Gahura building was almost as simple as a mathematical formula. After the renovation, the Great Cinema should be a much more complex venue, a place of encounters, where citizens are not only entertained, but sometimes surprised or even provoked. The most important element of this proposal is a new elongated volume that divides the space asymmetrically into two parts. Both of them are multipurpose halls, however, they are different in size and they offer different possibilities. The character of them is distinct also, the first one is open (translucent), and the second is closed. Both newly created areas have direct access from the original lobby. This should remain the normal, everyday entrance, while the second should serve the more formal events and work as a “festival entry”. The inserted volume has three floors and the main vertical circulation core is located within. The first floor includes the inner entrances of the main auditorium. The second level is multipurpose and can be divided as the main auditorium. The top floor is entirely a service area. While we cut the interior into two parts to create the event hall, the open lobby extends towards the city with a new public space under the pine trees. The existing pine trees create a unique atmosphere for the terrace. Below the pines the different sections of the lobby create various uses of space from the terrace for the café to a playground and outdoor auditorium for the children. The new open space – “urban living room” – is a space of communication with the city. Architects and Landscape design: Tamás Fialovszky, Gergely Kenéz, Iván Nagy, Katalin Varga Structural Engineer: Dezső Hegyi Mechanical Engineer: Zoárd Mangel Acoustics: Csaba Huszty, Tamás Illy Fire Engineers: György Decsi, Endre Ihnátisin

Jury Evaluation

The design pragmatically inserts a solid block into the cinema space which divides it into two parts: new entrance spaces and a longitudinal hall which can be further divided as needed. In the context of other designs, a specifically asymmetrical approach offers a very attractive foyer which is operationally and visually connected with the eastern forecourt of the cinema. The creation of a cascading covered “living room” is perceived very positively from the point of view of everyday use of the building. A great benefit of the design is the revival of the adjoining outdoor space towards Hotel Moskva and the Department Store. The generous glazing of the eastern facade also draws attention to what is happening inside the house. The blending of the terrain from the exterior to the interior encourages the expansion of activities from the interior of the foyer to the exterior. However, the new organization results in undesirable spatial and user asymmetry of the object. The preference for a new entrance from the east side conflicts with the importance of the original entrance to the building from the north side of the Práce Square. The proportions and depth of the large hall, whose function as a cinema is limited, as well as the reality of the current use of smaller halls after its division, also raise questions. Despite the fact that it is possible to keep the original structure thanks to the inserted reinforced concrete block, its transverse division loses the generosity of the Great Cinema and it is no longer possible to perceive the overall span of the monument status structure. In terms of stage technology, the design has a good variability of space distribution. A well thought-out and practical way of folding and sliding the auditorium seats is designed. If the auditorium seats are folded in elevation, a second set of furniture will be required for other designed arrangements which demands larger storage space, time and personnel requirements of reconstructions. The financial demands of this technological concept draft will also be high.

Previous Next
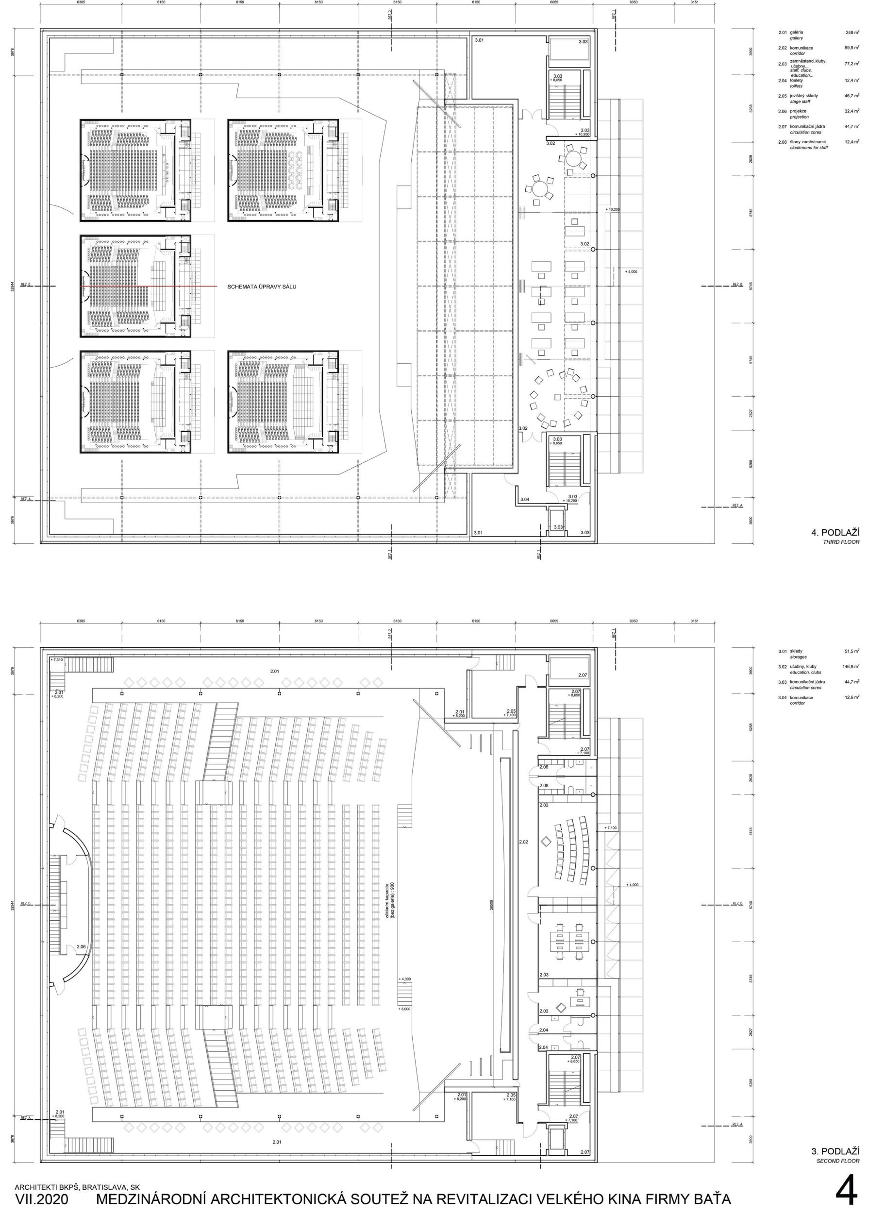
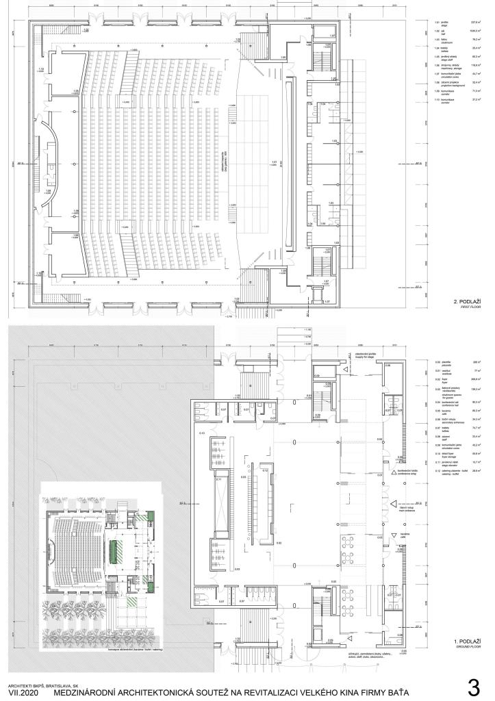
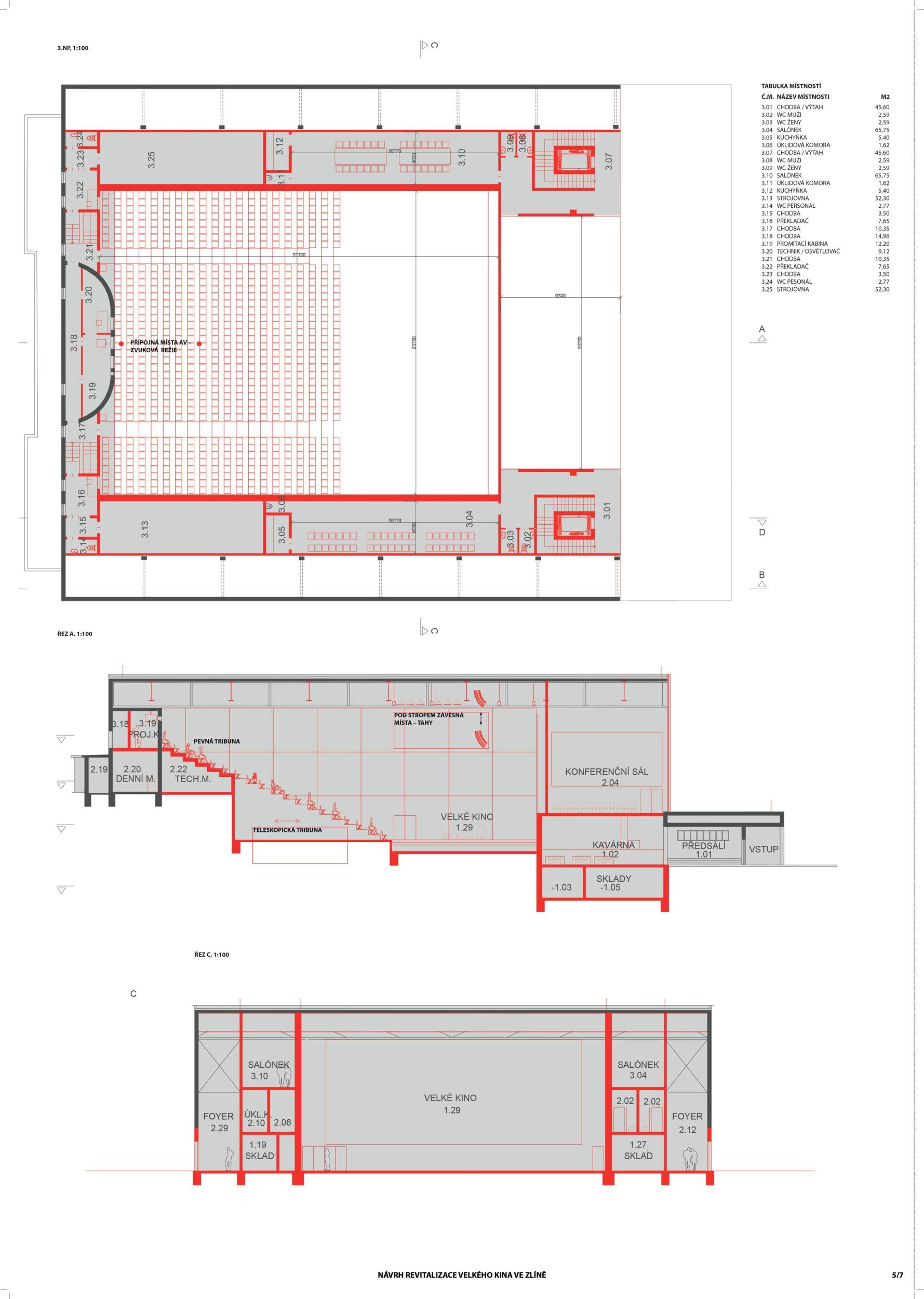
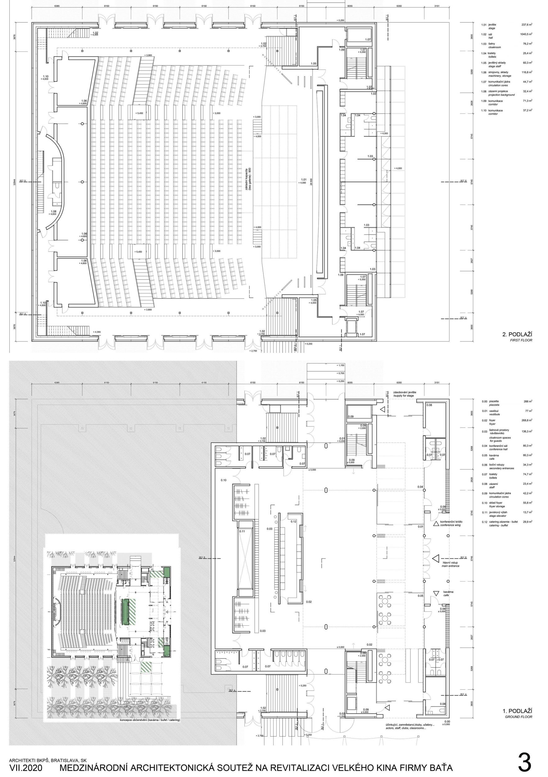
3rd Place
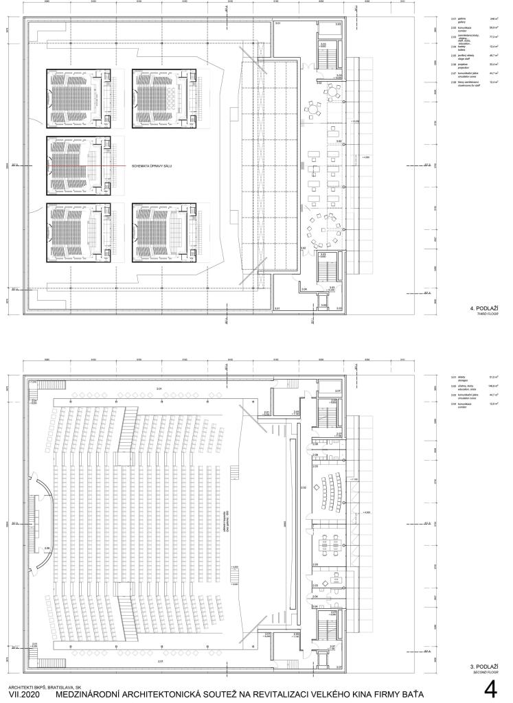
  • Author A B.K.P.Š
  • Country Slovensko
  • City Bratislava
Annotation

The first unique value of Gahura’s original concept is the outside slopes’ integration into the characteristic features of the internal space. In our proposal, the topographies of both the cinema’s exterior and interior are present. The original sloping is restored outside as well as inside the cinema hall. An appearance of the big silent volume formed by contrasting delicate steel structure is the next extraordinary value of this building. That is why the sheer structure should become the determining feature of the main hall once again. This proposal is an attempt to thematise the fact of the permanent changeability of the frontage during almost nine decades of the history of this architecture and the variability that is the essence of its new (old-new) programme. With some exaggeration, changeability can be considered the “truth” of this building. The new facade announces to the city the current events in the building and at the same time indicates the imprint of its original form. The space in front of the Great Cinema is designed as a multi-purpose area for several possible scenarios. It is both a place of stay and a transit area. The gradual penetration of walkable and grassy areas connects the entrance area of the building with its park front. Architects: Martin Kusý, Pavel Paňák, Matin Kusý ml., Róbert Bakyta Cooperation: Tatiana Kuva, Ľubomíra Blašková, Michal Pacher, Richard Kereškényi, Mária Horváthová, Dominika Húdoková, Ján Křižík, Stanislav Žaludek Structural Engineer: Elter constructions (Ladislav Tausinger) Acoustics: Euroakustik (Pater Zaťko) HVAC: Roman Kajan Mechanical Engineer: Miestor (Tomáš Horák) Fire Engineer: Satpro (Juraj Sádecký)

Jury Evaluation

The design represents a sensitive, even craftsmanship-like renewal of the Great Cinema. All new architectural entrances are consistently subordinate to the original architecture of the building. It lets the space of Gahura’s cinema resound in the entire width of its cinema hall. The benefit of the design is a generous festival cinema with adequate anteroom. After the renovation, the building has a large cinema hall and a spacious entrance foyer which, if necessary, can be divided by movable walls. The transformation of the house into a current public building is suitably pointed out by the proposed overhanging semi-transparent wall above the entrance, which becomes the main communicator of the building’s program. The surroundings of the building offer two complementary types of spaces: a generous entrance area and a chamber piazzetta, which communicates with the Department Store, hotel, and market. However, the usability of the entrance areas for some operations is questionable. Although the entrance rugged foyer has the ambition to absorb a large number of users and various activities, at the same time it does not offer a comfortable connection to the background and mainly lacks an adequate headroom for the required range of activities. The building does not offer space for screenings or smaller concerts with a capacity of up to 200 people. There is also a great risk in the uncompromising plan for the preservation, local addition, and reinforcement of the existing ceiling structure, which is now in unsatisfactory condition. The building itself and its renovation have become a priority at the expense of current social requirements. In terms of stage technology, the main hall has a good proportion and variability. The ways of transporting furniture and decorations to the stage and around the building and the solution of storage spaces are considered.

Previous Next
4th Place
  • Author Petr Hájek ARCHITEKTI
  • Country Česko
  • City Praha
Annotation

We consider the greatest quality of the Great Cinema to be its beautiful and distinctive silhouette. Our goal is to restore the historical building in its simplicity and purity of form and to complement it with a new layer of contemporary architecture, retaining as much of the original structure and details as possible. The aim is to design a building with sufficient flexibility and capacity to host the required cultural events while respecting the original architectural and urban values. After reconstruction, the cinema will have a small hall, a large hall and small conference facilities with a total capacity of around 1000 seats. The large hall is a universal space with a flexible interior and variable acoustics. The small hall will offer a breathtaking view of the city of Zlín and its landmark of Building 21. In the exterior, we propose the only significant intervention in the form of a glass wall. The wall is shielded with a canvas, which can be projected onto in the evening. In the early evening, the interior of the small hall shines through the canvas. During the day, the canvas is opaque and viewed from a distance it looks like a full wall. Outdoor modifications are reminiscent of the original historical solution. We leave the main entrance in its original place at the head of the building and above it we set up a terrace. In front of the building, there is a small rectangular square, which serves as a universal social and public space. Architects: Petr Hájek, Martin Stoss, Nikoleta Slováková, Benedikt Markel Structural Engineer: František Denk Acoustics: AVTG (Karel Motl)

Jury Evaluation

The design respects the original mass of the building and offers a relatively economic renewal of the cinema. The dominant element articulating the reconstruction and change in the use of the building in the current architectural language is a fully glazed northern facade. The authors plan to stabilize the existing structure by installing a new structure inserted into the level of the existing roof whose load-bearing function is eliminated, and after some modification, it can be preserved. A suitable combination of a small and large hall creates a precondition for optimal user comfort during normal operation but also for larger events. However, the main drawback from the point of view of everyday use is the closed nature of the building to its surroundings on the ground floor and the too deep, dark, and mono-functional foyer with a relatively low ceiling. A certain shortcoming is the blocks of toilets between the hall and the corridor, limiting the possibilities of using the space around the hall. From the point of view of stage technology, the design represents an interesting concept of variable acoustics of the main hall, with an effective solution of sliding elevation for the large hall. The design represents a possible solution to the variability of the main hall, should the retractable floor of the stage be machine-operated - it is mentioned as an alternative but it is not included in the budget. The conference hall is designed without elevation for spectators, it is necessary to take into account poorer visibility.

Previous Next
5th Place
  • Author ov architekti
  • Country Česko
  • City Praha
Annotation

The large cinema - a lapidary "box" on the slope – hides its quality in straightforwardness and efficiency and reflects Bata's idea of the right price/performance/value ratio. The task and priority of our work are to clean the house of deposits that change its essence. At the same time, however, the proposal is to prepare the cinema for operation in the coming decades, partly for a different program and in a significantly better standard of use than was ever considered for the house. In the original cleaned empty box of the building, we propose a new installation of the hall, which can be called "box in box". The new hall is smaller and can offer various forms of organization: from a large cinema through a conference to a smaller cinema space. The hall is surrounded by a round space, which includes a café, a conference room, and spaces for temporary exhibitions or seasonal markets and other events. The interface between the hall and the gallery is soft, partly formed by a solid wall, partly by curtains, which create an acoustic and light filter and at the same time allow variable use of the space. The architectural language of the added layer should be direct, uncomplicated, without effects, but with a spatial impact and generosity. Architects: Štěpán Valouch, Jiří Opočenský Collaboration: Romana Bedrunková, Marek Kohout, Ondřej Králík, Jakub Neumann, Františka Podzimková, Viktor Žák Mechanical Engineer: M3M Structural Engineer: Marcel Vojanec, Excon Acoustics: Aveton

Jury Evaluation

The design respects the original mass of the building and provides a sophisticated solution. At first glance, the remarkable “box in box” concept offers a relatively flexible spatial solution. However, the concept is too space-intensive and inappropriately occupies the original generous spaces of the Great Cinema, creating difficult-to-use corridors on both sides of the Great Hall. It is interesting to use the elevation of the main hall to expand the background of the secondary hall. The advantage of the design is the orientation of the second hall to the so far only utilitarian southern facade. On this side, however, space is significantly limited by the requirements of the supply routes of Hotel Moskva. However, the identity and spatial properties of the original architecture are lost. The elevation of the building due to the addition of a new load-bearing structure above the majority of the original roof is also debatable. With regards to stage technology, the design represents a simple solution, however, at the expense of little flexibility, especially of the lower part of the auditorium and the adjoining fixed stage.

Previous Next
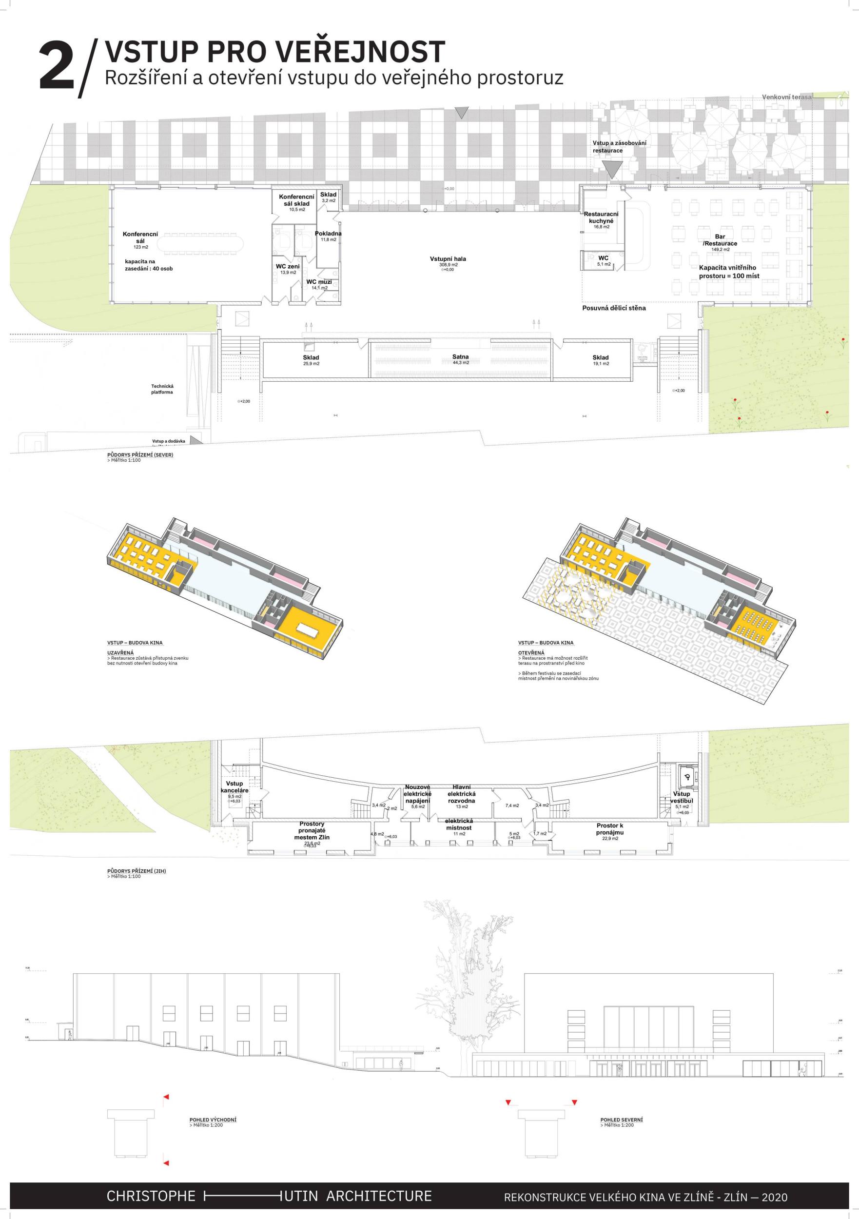
6th Place
  • Author Christophe Hutin Architecture
  • Country France
  • City Bordeaux
Annotation

Zlín cinema occupies an important place in the history of the city. Our design is based on the continuation of the distinctive history of this building. The aim of the renovation of the Great Cinema is to make this cultural place available again. The level of accessibility depends largely on the adaptability of the cinema to different programs, different capacities of visitors, throughout the year. We design the entrance for the visitor to the Great Cinema as a consecutive sequence – first, the visitor is located in front of the building, then passes under the covered entrance, and through the glass doors they enter the hall. Thanks to the enlarged entrance, a more favourable space is created for the movement of visitors between the performance and during discussions. We put great emphasis on the legacy of František Lýdie Gahura, namely the screening room. We preserved the original roof structure in its original condition, as a reflection of the radiant history and technological maturity of the time. We also respected the internal volume of the building, which we do not change, as well as its central function – the large hall. Our proposal focuses on the relationship of the building to public space and the cultural programme, and on solving technical problems in relation to the preservation of the structure. We consider the revitalization of the cinema to be the next stage in the life of the building, which is essential for the inhabitants of Zlín. Architects: Christophe Hutin, Stéphanie Gasparini, Antoine Mounier Collaboration: Eva Pavlečková Structural Engineer: CESMA Graphic design: KUBIK Quantity Surveyor: Kateřina Bačová

Jury Evaluation

The benefit of the design is a generous hall with an effective opening to the terrace above the entrance. Its quality is represented by an interesting and simple concept of arranging space within one hall with the possibility to use either the whole hall, or the chamber arrangement of the auditorium. The authors structurally solved the stabilization of the original structure thanks to a new superstructure on the roof. The disadvantage is the deformation of the original mass of the building: by raising the ceiling due to its reinforcement and widening the entrance wing. The building has a large hall, but does not have suitable spaces for smaller events. The additional programme (conference rooms) is scattered and difficult to access in different parts of the building. The spectacular opening of the northern façade above the entrance is attractive, but it would be difficult to find its active use in real operation outside of the film festival. Unconvincing placement of windows on the side facades has already been questioned during the process. From the point of view of stage technology, the design presents an interesting and simple concept of arranging spaces within one hall with the use of either the entire hall, or the chamber arrangement of the auditorium. The disadvantage is the flexibility of the lower part of the auditorium which will require a more time consuming construction.

Previous Next