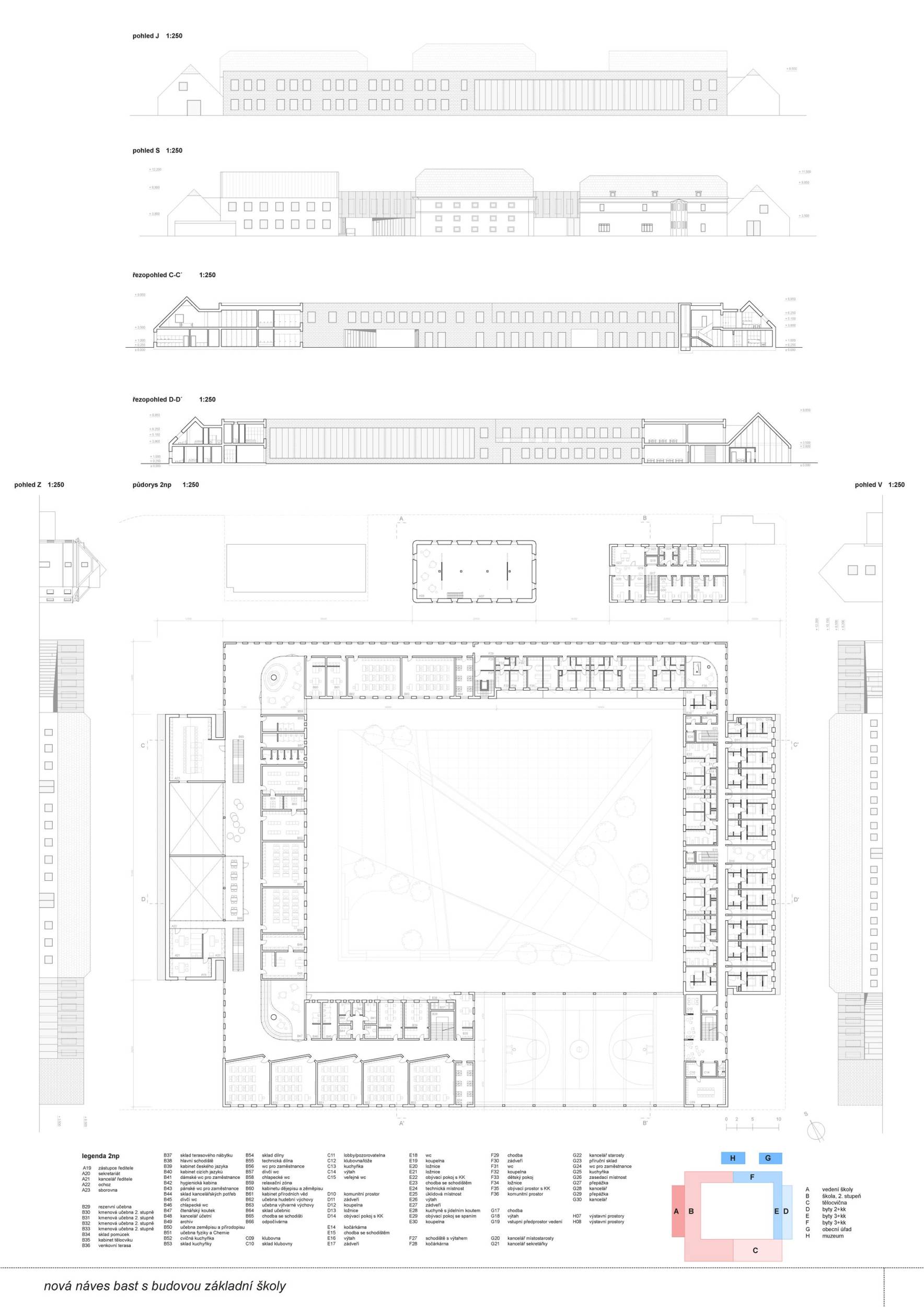
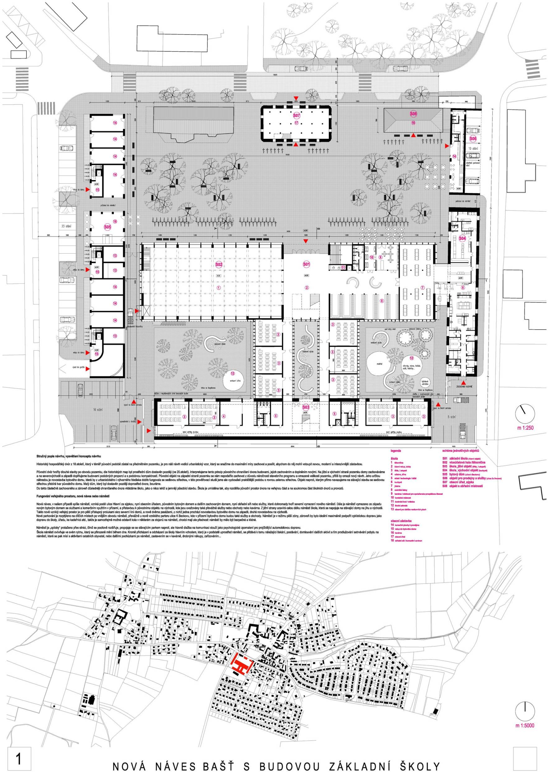
New center of Bašť with a primary school building

Project num. 1

Grulich architekti / David Grulich, Markéta Grulichová, Aleš Tuček, Ivana Mikysková, Kateřina Tichá / Kamenice
Project num. 2

MS plan / Michal Šourek, Pavel Hřebecký, Jan Novotný, Michal Stařičný, Jakub Mazur, Juan Pablo Labbé / Praha
Project num. 3

mh architects atelier / Michaela Horáková, Petr Průša, Ondřej Brych, Daniel Skočil, Tereza Kalousová / Praha
Project num. 4

SOA architekti / Ondřej Píhrt, Ondřej Laciga, Štefan Šulek, Štěpán Tomš, Kateřina Luftová, Irena Vojtová, Dalibor Dvořák, Leanid Pylila, Květoslav Syrový / Praha
Project num. 5

Jan Doubek / Soňa Minárechová / Praha
Project num. 6

BARAAK arch, Banality Studio a Dvořák & partneři / Barbora Kopečná, Kateřina Hroncová, Miroslav Dvořák, Tereza Hůrská, Marko Čambor, Karolína Myšková, Tomáš Binder, Petr Liška, Hans Hohl, Pavel Kocourek, Zbyněk Škrůtek, Jan Tománek, Jiří Samec, Martin Pulec, Pavel Jakubů, Filip Zelenka / Praha
Project num. 7

Radka Kurčíková / Martina Gregorová / Ratiboř
Project num. 8

Archsign / Petr Sobotka / Praha
Project num. 9

caraa.cz / Martina Buřičová, Štěpán Kubíček, Viktorie Dostálová / Praha
Project num. 10

Petr Synovec / Praha
Project num. 11

Karel Filsak / Přemysl Jurák / Praha
Project num. 12

Petr Bureš / Jan Skoček, Alžběta Kvasničkoová / Praha
Project num. 13

Luděk Šimoník / Kryštof Foltýn, Jiří Topinka / Brno