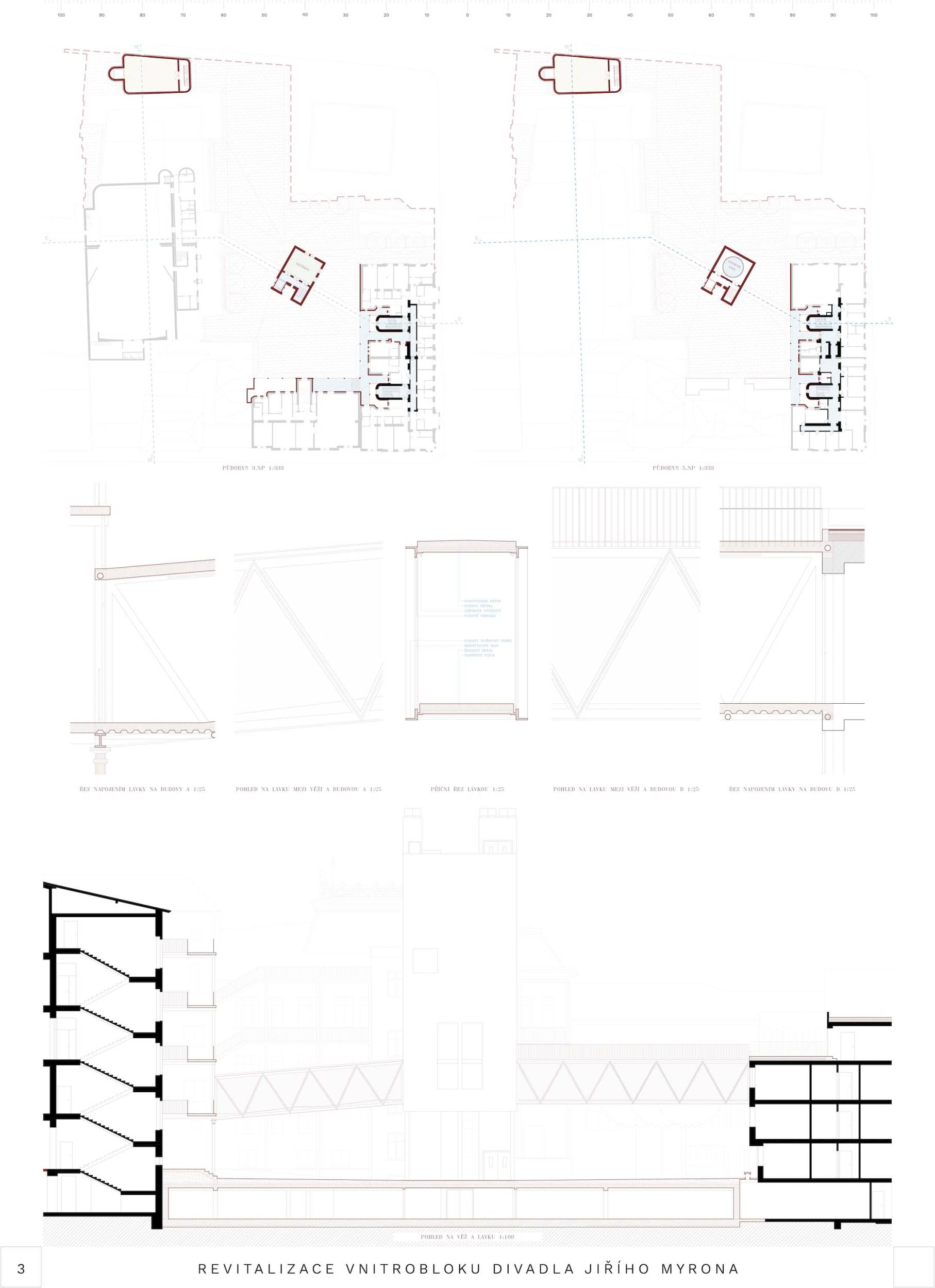
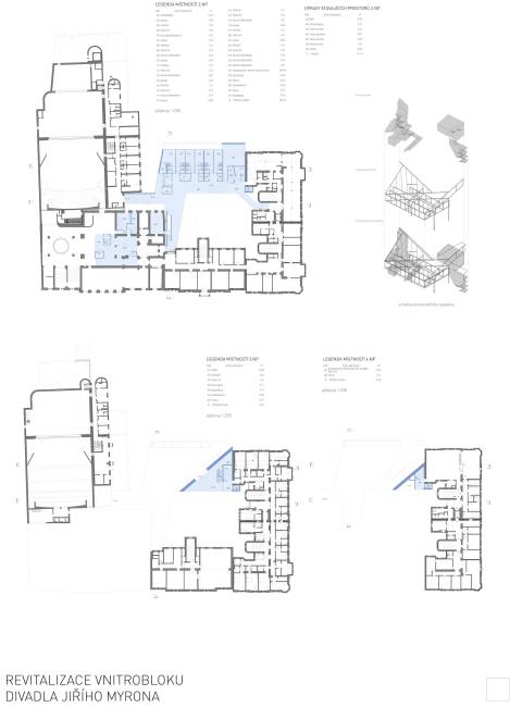
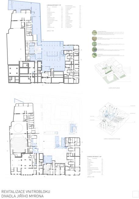
Revitalisation of the Jiří Myron Theatre courtyard

Project num. 1

1st Prize

Szymon Rozwałka, Ada Rypl-Žabčíková, Jaroslav Sedlák / Szymon Rozwałka, Ada Rypl-Žabčíková, Jaroslav Sedlák, Šimon Doubrava, Kazuhiro Okamoto, Ludmila Jankovichová, Tomáš Müller, Dušan Navrátil, Rostislav Rypl, Stanislav Šimoníček, Šarka Svobodová, garden architecture: Mirka Svorová a Jana Zuntychová / Brno
Project num. 2

3rd Prize

žalský architekti / Tomáš Nováček, Matěj Hoffman, Lenka Levíčková, Jakub Cibula, Adam Kocík, Valérie Filipová, Aneta Voženílková, Jan Žalský / Praha
Project num. 3

Finalist

MIAS ARQUITECTURA SLP / Barcelona, Spain
Project num. 4

2nd Prize

PLURAL / Bratislava, Slovakia
Project num. 5

Finalist

Laubová – Sosna / Vidonín, Praha