General Financial Directorate - Brno Dislocation: Complex Trávníčkova

1st prize
  • Author UYO architekti
    Jan Skoumal, Adam Zezula, Kamil Zezula
  • Country Česko
  • City Šumperk
Annotation

The main ambition of our proposal is to completely change the character of the area in question in this respect. Seek solutions to the General Financial Directorate's proposal in the simplicity, purity and context of the site. To make an institution from purely utilitarian buildings. An institution with a clear and generous entrance, a clearly defined pre-space and a distinctive façade. The key to this transformation is the inner court, which we use in our proposal as the central management element of the new institution. It becomes a communication node, a space for the public, absorbing virtually all “non-office” operations that would be difficult to place in existing volumes. The entrance is located from Auerswaldova Street and is thus logically directed towards the center or the tram stop. Here, the building B is open on the ground floor and the visitor passes under it into the courtyard. This expansion of the public space creates a strong entrance to an esteemed institution.

Jury Evaluation

Here, the jury appreciates the overall logic of operation and layout, as well as the moderate rendition of the facades that evoke the ethos of the First Republic.

Previous Next
2nd prize
  • Author 4DS
    Luboš Zemen, Eva Zemenová, Vojtěch Navrátil
  • Country Česko
  • City České Budějovice
Annotation

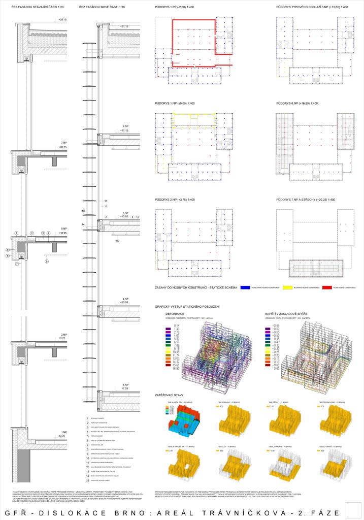
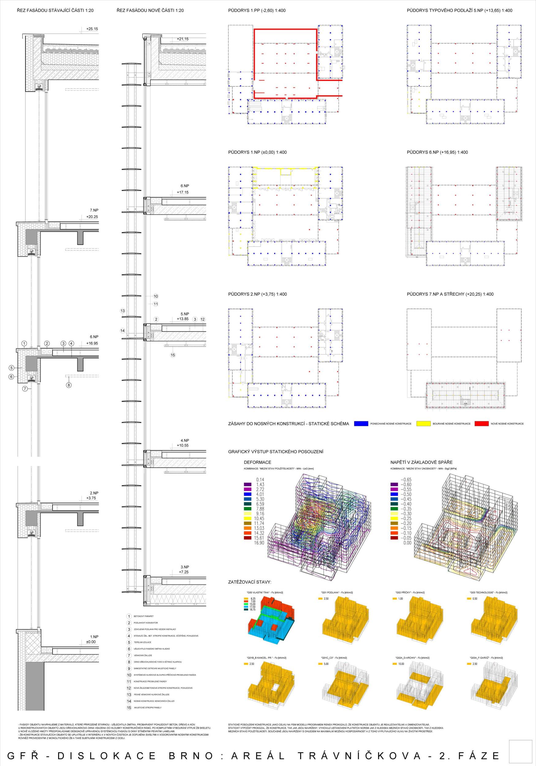
The design deals with construction modifications and completion of the former warehouse complex between the streets of Jana Svobody, Auerswaldova and Trávníčkova. A quality administrative complex that will be in symbiosis with its surroundings and suitably complement its context, is seen in the following attributes: - a lively urban parterre and good communication links in the context of wider relationships - the current, democratic and transparent expression of the building - a friendly environment for employees and the public, while respecting the dignity of the public building - an efficient and economical solution with regard to existing structures, energy efficiency and long-term sustainability

Jury Evaluation

In this proposal, the jury appreciates in particular the degree and consistency of incorporating the comments received in the 2nd call. It corresponds with the contracting authority's idea of the tax office building.

Previous Next
3rd prize
  • Author BY architects
  • Country Česko
  • City Praha
Annotation

Authors: Markéta Zdebská, Marek Žáček, Marie Čáslavská, Michaela Křižáková // Within the area under consideration, the design primarily complements the existing block - it builds up the remaining corner in a form that is an identical part of the compact reconstructed mass. The functional content in the form of a state institution is underlined by arcades formed by columns of the existing skelet. We enter the building from a clearly defined front and protected from bad weather. The barrier-free entrance to the building and the receding staircase clearly define the office space and offer a clear orientation. This moment is supported by providing space for the coat of arms and flags in the upper central part of the main facade. As part of the reconstruction of the existing block, we work with emphasis on the structure. The rhythm of the façade is further subdivided into another order which, among other things, enables the flexibility of workplaces. French windows are equipped with railings, so the rooms can be naturally ventilated.

Jury Evaluation

The jury appreciates the credible layout. The architectural expression resembling a bank was questionable.

Previous Next
Finalist
  • Author Michal Palaščak
    Michal Palaščak
  • Country Česko
  • City Brno
Annotation

"When I go by, I know I have a tax office in front of me." Abandoned army warehouses are located in a broken location on the border of residential and industrial areas. The location of the state institution is an important impulse for the development of the whole neighborhood. The three original warehouse buildings are built to function as a single unit. The diverse mass of the premises is enclosed in a solid form by a facade grid. Rigid form beyond standard office buildings accentuates the institution of the office in the context of the surrounding development. The clearly defined corners follow the block structure of the neighborhood. Behind the hanging lattice, the second plan intersects the rugged masses of the original buildings, the grid of the glazed facade and the climbing greenery.

Jury Evaluation

Previous Next
Finalist
  • Author Építész Stúdió
  • Country Hungary
  • City Budapest
Annotation

During the reconstruction of the Trávníčkova Complex, our main goal was to respect the existing architectural conditions, and only intervene where it’s a must. The structural system of the building has a nice balance with the nearly square ratios. The two main purposes of our intervention were to open up the facade in accordance with today’s office standards and find a way to divide the offices while respecting the existing system. The latter was achieved by inserting cabinets between the main structural columns and beams, so the load-bearing structure remains visible, while the divisions have a functional purpose. The newly-built structures had multiple problems to solve regarding the program. The entrance of the complex had to be defined, parking space had to be provided, and the existing buildings should have been connected. There was also a need for extending the office areas since the existing spaces were not sufficient for the needs of the program. Therefore, we split the courtyard vertically by a slab, under which - on the level of the street - the office parking spaces can be found, and on the upper level - the ground floor of the buildings - provides parking for the guests and disabled. The public areas became accessible from both the courtyard and the street, while the new annex, containing the necessary office areas connects the existing buildings on every floor.

Jury Evaluation

Previous Next