Reconstruction and Extension of the Pod Marjánkou Polyclinic

Project num. 1

Václav Škarda / Lukáš Koubek, Jiří Švehla / Prague
Project num. 2

M2AU / Daniel Struhařík, Norbert Obršál, Linda Obršálová, David Helešic, Filip Musálek / Brno
Project num. 3

3rd Prize

dkarchitekti and LT PROJEKT / Jan Kocmánek, Dagmar Pokšeftlová / Brno
Project num. 4

Finalist

SIAL architekti a inženýři / Jiří Buček, Jiří Chmelík, Helena Hlávková, Martina Kocurišinová, Jiří Lukáš; structural solution: Josef Franc, Martin Mašek; statics: Vít Šrámek; professions: Ondřej Košina, KTS / Liberec
Project num. 5

Jaroslav Trávníček / Jan Trávníček, Jiří Zimmel (HIP), Karel Peleška (SKŘ), externí konzultanti Karel Klíma, David Frej / Prague
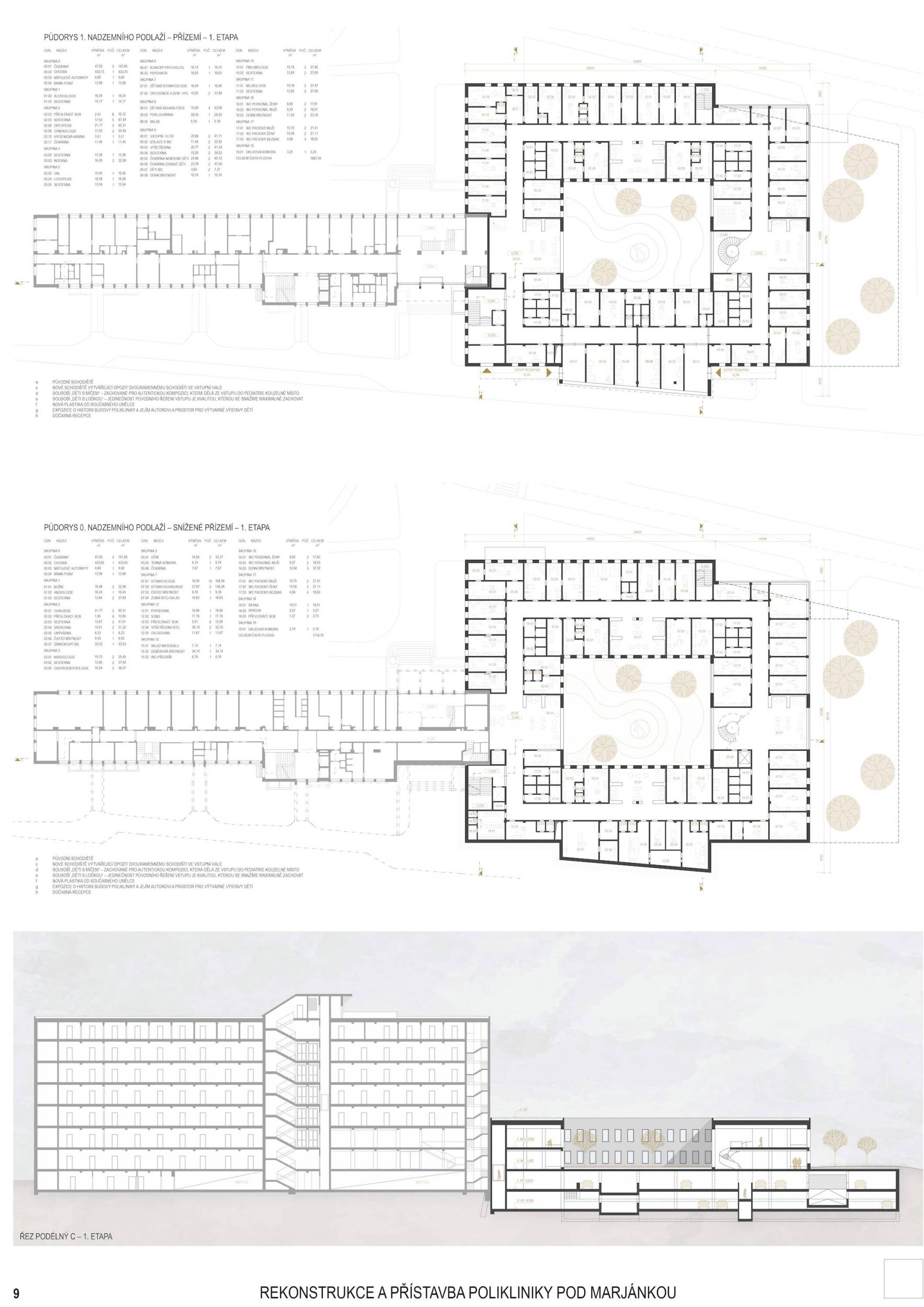
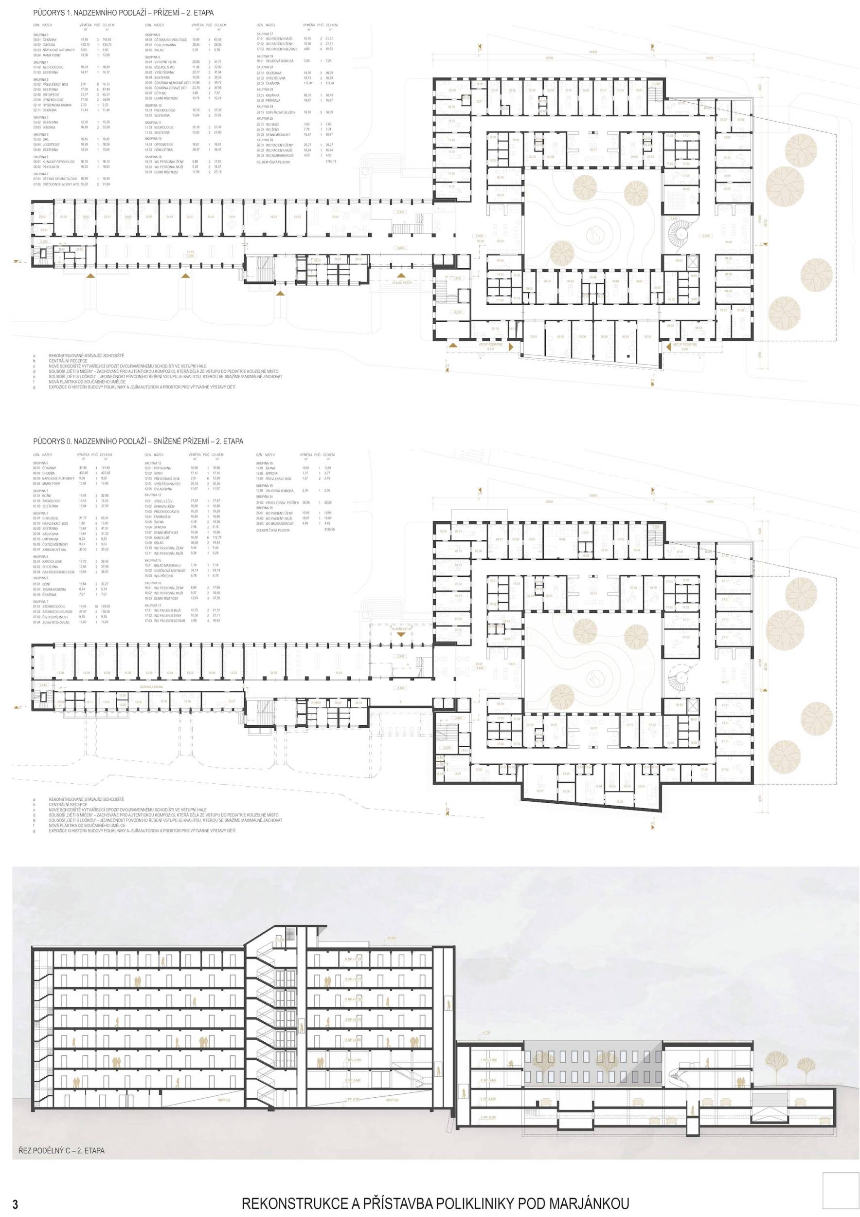
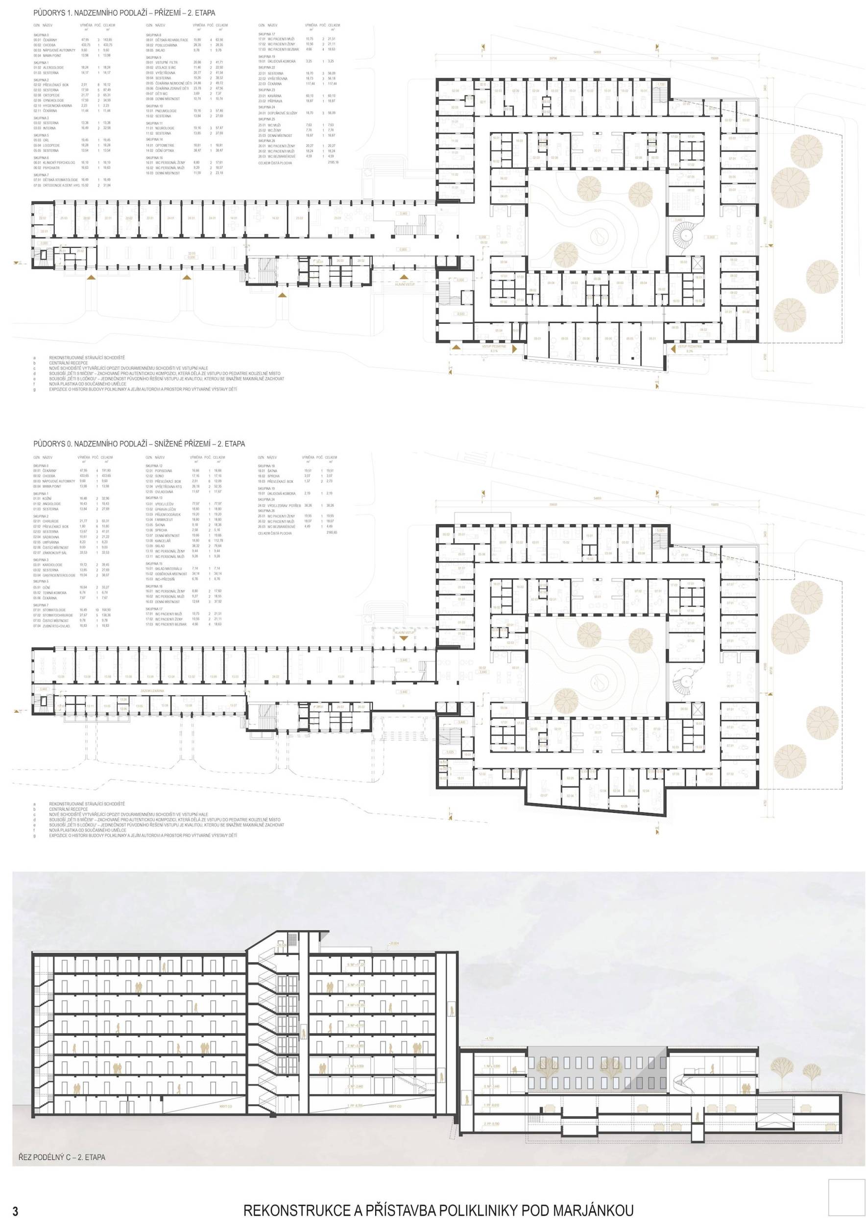
Project num. 6

1st Prize

ov architekti / Jiří Opočenský, Štěpán Valouch, Ondřej Králík, Michal Mráz, Michaela Křížáková, collaboration: Viktor Žák, Martin Hložka, Jan Hájek, Alena Richterová landscape solution: REHWALDT LANDSCAPE ARCHITECTS: Eliška Černá, Richard Labanc / Prague
Project num. 7

2nd Prize

Roman Brychta Architekti and Karlínblok / Roman Brychta, Jan Karásek, Petr Jileček, Dalibor Stejskal, Jan Žemlička (Zemlicka-Pruy - concept of indoor environment) / Statenice
Project num. 8

Finalist

ohboi + JIKA-CZ / Brno, Hradec Králové
Project num. 9

re:architekti / David Pavlišta, Ondřej Synek, Jan Vlach, Jiří Žid, RECOC (statics), symbio studio (landscape design), Syrový - dopravní ateliér (transportation) / Prague