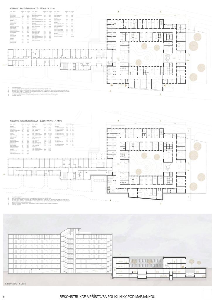
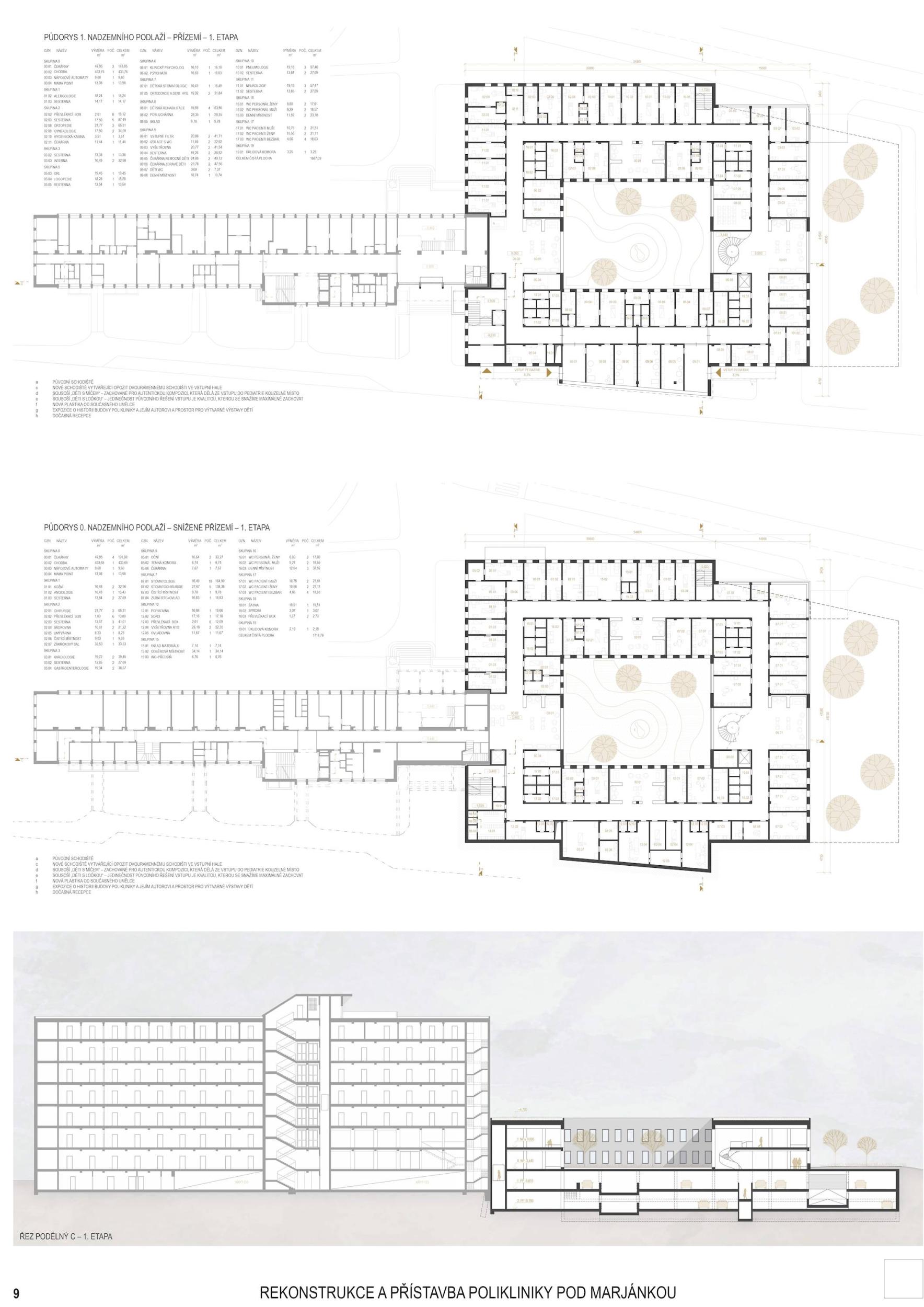
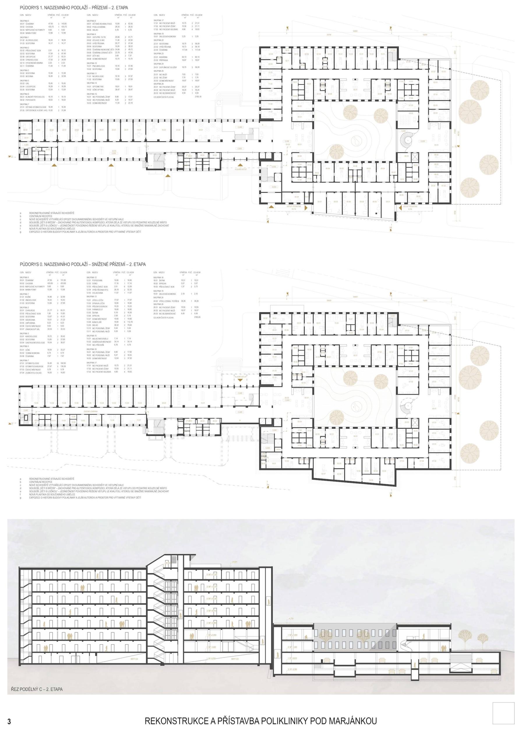
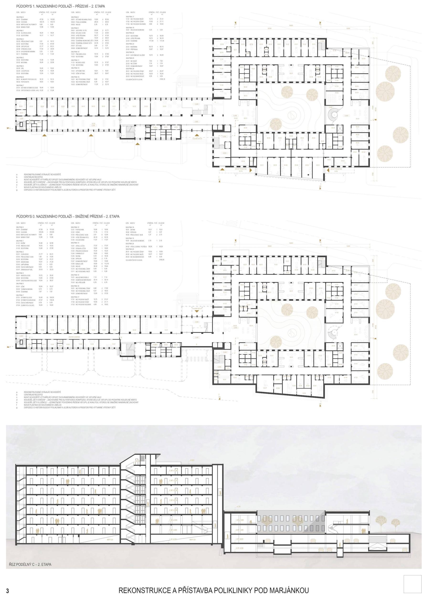
Reconstruction and Extension of the Pod Marjánkou Polyclinic

1st Prize
  • Author ov architekti
  • Team Jiří Opočenský, Štěpán Valouch, Ondřej Králík, Michal Mráz, Michaela Křížáková, collaboration: Viktor Žák, Martin Hložka, Jan Hájek, Alena Richterová landscape solution: REHWALDT LANDSCAPE ARCHITECTS: Eliška Černá, Richard Labanc
  • Prague
Annotation

The neutral extension, whose façade follows the 1960s morphology in a contemporary way, makes the main building by the architect Podzemný stand out. The strip windows are accented with rounded corners, and the bottle green ceramic facade cladding is complementary in color to the original ochre moldings. The low extension of the clinic offers a transparent and open medical facility with plenty of natural daylight and easy visitor orientation. An indoor residential exterior atrium serves the visitor and her needs. The main entrance is preserved in the street below the Marjanka. A separate entrance to the children's section is oriented towards the eastern park.

Jury Evaluation

The design provides a compact, sophisticated solution that is space-saving yet operationally comfortable and logical. The clean longitudinal massing of the addition with its prominent strip windows is a harmonious contemporary addition to the F.R. Underground building. The use of ceramic tile in a complementary color scheme is humble and semantic to the existing building. At the same time, the design represents a sustainable façade concept that can respond flexibly to changes in the internal layout and adequately compensate for the challenges of climate change. The preferred and transparent solution is offering internal atriums to which waiting rooms are oriented. At the same time, the proposal presents a sophisticated reflection on the layout of the reconstructed part. In terms of design, it is a feasible reconstruction, which is well developed and detailed in the proposal. The environmental concept of sustainable development, which is now a necessary parameter in the design of a civic building, shows the author's comprehensive approach.

2nd Prize
  • Author Roman Brychta Architekti and Karlínblok
  • Team Roman Brychta, Jan Karásek, Petr Jileček, Dalibor Stejskal, Jan Žemlička (Zemlicka-Pruy - concept of indoor environment)
  • Statenice
Annotation

The design honors the asymmetrical composition of the existing building. The new low compact mass is broken up by exterior atria of different proportions. The main urban entrance is retained and supplemented with a barrier-free entrance. Inside, everything meets at one point - the reception area. The proposed low building takes on the expression of the original building. The façade has a grid of windows allowing for a variable division of the interior spaces (surgeries). The reconstruction of the clinic building is followed by the rehabilitation of its surroundings. House in the park.

Jury Evaluation

The interesting material solution of the design is based on respect for the original building lines of the extension - the so-called claws - supplemented by another wing, enclosing together two internal atriums, which provide sufficient lighting for the internal communication areas and waiting rooms. The plan layout of the design, which responds to the irregular shape of the plot, made it possible to design the extension on only one story facing Pod Marjánkou Street, thus further confirming the link with the original material concept of the F. R. Podzemný development. The generous entrance spaces are linked to the internal spacious and, above all, clear layout evoking the impression of a high-quality internal environment with the possibility of the high variability of internal spaces. The design's strengths also include the precise technical and layout design, the environmental and landscape concept, and the operational solution itself, reflected, for example, in the design of the entrances that respond to all phases of the work's progressive realization. The negative aspect of the southern façade with its 'drowned' windows, in the repetitive rhythm of windows and walls, can be seen as an almost dull expression. The tight connection of the new part with the original slab of the polyclinic implies a significantly more complex foundation (with a retaining wall), also concerning the phasing of the work. There are also questions about the high-span construction in the central wing, the solution to the detail of the facade termination at the attic (thermal pocket), and the proposed principle of ventilation with automatic window opening. Even after the reduction after the first phase of the competition, the building program is still oversized compared to the competition brief.

3rd Prize
  • Author dkarchitekti and LT PROJEKT
  • Team Jan Kocmánek, Dagmar Pokšeftlová
  • Brno
Annotation

Since its construction, the polyclinic has grown into the organism of Břevnov, just as it has grown into the hearts of the local inhabitants. The planned demolition of the low building, caused by the practical need for parking space, will cause a visible wound in the organism of the polyclinic and Břevnov and its inhabitants. We are treating the site with our proposal so the wound will heal again. We can heal the wound in a way that preserves and elevates the local genius loci. The new addition is not a copy of the original but a paraphrase of it, designed with respect for the original building's distinctive footprint and height. The principle of restoring the original volume, but with some differences and in a contemporary morphology, whether the original building has been lost in whatever way, i.e., creating a paraphrase of it, was also applied, for example, in the reconstruction of the New Museum in Berlin by the architect D. Chipperfield or the ongoing restoration of Notre Dame Cathedral in Paris. The new building of the extension follows almost precisely the plan trace of the original building's south, west, and north facades and its original height.

Jury Evaluation

The architectural and urban expression and the compact mass are humble to the original building and interact well with it. The jury appreciates the sophistication of the rehabilitation and the structural design of the high-rise part. The connection between the two buildings, the appropriately located reception and the connection between the main axis of the high-rise part and the atrium in the extension, the appropriately designed interiors in the original building from a conservation point of view, including the preservation of the doubletract, were positively assessed. However, the chosen structural system reduces the variability of the layout of the extension. The operational design of the extension is too similar to the original and thus does not bring any innovation in terms of health architecture, rather it is a step backward. The extension made of exposed concrete is too confectionary. The entrances to the garages are not functional in terms of traffic, the access ramp is too steep, and there is no space for a check-in facility. The roofing of the garage entrance is considered by the jury to be an architecturally and landscape inappropriate solution. The thermal technical characteristics are undersized, the controlled ventilation system in the high-rise part is completely missing.

Finalist
  • Author SIAL architekti a inženýři
  • Team Jiří Buček, Jiří Chmelík, Helena Hlávková, Martina Kocurišinová, Jiří Lukáš; structural solution: Josef Franc, Martin Mašek; statics: Vít Šrámek; professions: Ondřej Košina, KTS
  • Liberec
Annotation

The Pod Marjánkou Polyclinic (Richard Podzemný, 1960-62) is one of the best functionalist architectures, but its current technical condition requires urgent reconstruction. The vision envisages the construction of a new part of the polyclinic in contact with the existing basic high mass, a compact, clean three-story prism with an inner atrium connected to the park with two floors applied from the ground floor level; the building also has three underground technical and parking floors.

Jury Evaluation

A compact form of a polyclinic extension with an internal atrium. The clean structural design of the extension is well integrated with the parking, allowing for good layout variability. The form of the facades is simple, referring to the original building, which also supports the variant placement of the internal partitions. The rating is lowered by the overly utilitarian and repetitive facades, an internal standard wide circular corridor with little contact with the atrium, waiting areas with insufficient opportunity to segregate patients, no contact with examination rooms, and a high likelihood of filling the narrow corridor outside the examination rooms with seating furniture. The offsetting of the extension from the reconstructed part is only advantageous in phasing and construction, but the extension and the original building do not form a single unit. The passage between the buildings is problematic from a safety and maintenance point of view. The atrium, freely accessible from the park, is advantageous for maintaining the greenery but loses its utility potential by choice of adjacent operations. The direct entrances to X-ray and dentistry are of no deeper significance. The hierarchy of entrances will not be apparent once construction is complete. The space for a central reception is inadequate, being limited to basic information only. The proposal to rehabilitate the reinforced concrete skeleton and insulate the existing building is also unconvincing.

Finalist
  • Author ohboi + JIKA-CZ
  • Brno, Hradec Králové
Annotation

The design of the reconstruction and extension of the Pod marjánkou polyclinic is an architectural task on several levels. The design combines technical and technological procedures that will enable quality implementation. At the same time, it reinterprets the position of the historic building and the whole area in relation to its surroundings. It opens up the new building to the park and integrates previously disconnected small pieces of green space into a well-deserved living space for the whole neighborhood. Last but not least, it meets the stringent requirements for medical operations and their limitations. The reconstruction of the high-rise section and the requirement for continuous operation place additional demands on the thoughtful design of the central hall. The central hall also creates a natural space that opens up the building to different sides and also different levels. The design, therefore, maintains the existing routes to which the district residents are accustomed but simultaneously brings new ones into the area. The shape and layout of the building respect the historic building, as well as the requirements of conservation while responding to its surroundings and redefining the street lines.

Jury Evaluation

The jury did not positively evaluate the significant change in the character of the building compared to the first phase of the competition. The jury appreciated the emphasis on the unification of the entrance areas of the new and the original building, which created a valuable front space on both the south and the north side, making it easier for visitors to find their way around. However, the lack of signage cast doubt on the feasibility of the design, particularly concerning accessibility solutions. The jury positively evaluated the generous lobby with a new staircase, which successfully connects the different levels functionally and visually. The connection to the unroofed atrium has also created a pleasant space and a new communication node that extends the original building in full accordance with its architectural expression. The unconventional concept of reinforcing and insulating the original structure in the interior would allow minimal intervention in the façade but appears to be structurally challenging and risky, as the design lacks the necessary thermal and moisture balance analyses. No attention has been paid to the expansion joint. The jury also appreciated the environmentally responsible design of the energy concept. Despite the jury's recommendation after the first phase in the competition, the design retained an atrium with a tree on the vegetated ground, which the jury assessed as unjustified and overly complicating the design and functionality of the underground garage. The internal standard wide circular corridor has little contact with the atrium, causing poorer orientation. Waiting rooms have an insufficient surface area with no possibility of segregation of patients, and no contact with examination rooms. Narrow corridors in front of examination rooms will likely be filled with seating furniture. The floor plan projection of the extension is not justified in the urban concept of the whole site.